Vitra

8. September 2015

Vitra

2015
São Paulo, Brazil

Client
JHSF Incorporações LTDA

Architect
Studio Libeskind - New York, NY, USA
Pablo Slemenson Arquitectura - São Paulo, Brazil

Principal Architect
Daniel Libeskind

Principal in Charge
Carla Swickerath

Project Team
Joe Rom, Raul Correa-Smith

Architect of Record
Pablo Slemenson Arquitectura

Structural Engineer
JKMF (Escritório Técnico Julio Kassoy e Mario Franco Engenheiros Civis LTDA)

MEP Engineers
MSA Projetos e Consultoria LTDA (for ventilation and air conditioning system)
Interativa Engenharia LTDA (for electrical and plumbing system)

Landscape Architect
Gilberto Elkis Paisagismo

Lighting Designer
Maneco Quinderé e Associados Iluminação

Interior Designer
Dado Castelo Branco Arquitetura e Interiores

Contractor/Construction Manager
JHSF Incorporações LTDA

Sealing Project
Proiso Projetos e Consultoria LTDA

Windows
Schüco do Brasil

Balcony Glass Closing
Dorma

Elevators
Atlas Schindler

Site Area
1,810 sm

Building Area
14,000 sm

Drawings
Studio Libeskind

Photographs
Ana Mello

What were the circumstances of receiving the commission for this project?

It was a commission, the client approached the Studio with the project and it was a great fit.

Please provide an overview of the project.

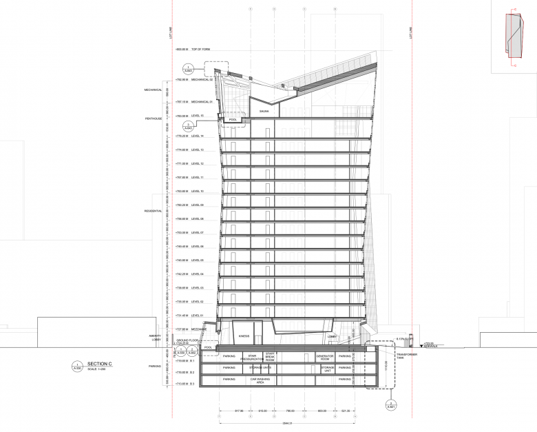
Vitra, Studio Libeskind’s first project in South America, is a luminous residential tower in the Itaim Bibi district near a number of the city’s main thoroughfares, offering quick and easy access to the popular Ibirapuera and Do Povo parks. A bold, sculptural design, the multi-faceted glass tower includes 14 floor-through apartments. A composition of glass balconies and green gardens articulates the form amidst a play of transparency and opaqueness. Vitra contains only one apartment per floor—and each floor plan is unique. A special penthouse duplex occupies the top two floors.

What are the main ideas and inspirations influencing the design of the building?

The tower design was inspired by the vibrant Brazilian culture and rich landscape. Studio Libeskind created an open, transparent and luminous tower that both reflects the city and creates a new paradigm for high-rise living in Sao Paulo.

How does the building relate to contemporary architectural trends, be it sustainability, technology, etc.?

Vitra has achieved AQUA certification making it the only Triple A residential building with this level of sustainability. It features solar panels on the roof; high-performance materials to reduce energy consumption for air conditioning and elevators; reuse of rainwater for cleaning and watering of gardens; low-emission materials; surrounding landscaping preserves ecosystem and biodiversity; intelligent building systems throughout; and during construction, sustainable management.

How did you approach designing for São Paulo/Brazil and how would you describe the process of working on the project there?

We always enjoy working in new places – Vitra is our first project in Brazil. We almost always partner with a local architect and in this case we worked with Pablo Slemenson Arquitetura. Our approach is always to make something that uses local materials and craftsmanship. In Brazil for example some complex structures, which elsewhere would be made from steel, can be expertly cast in concrete. This was an exciting new way for our team to realize the geometries in the Vitra design.

How would you describe the architecture of São Paulo/Brazil and how does the building relate to it?

The site is unique in that it is open immediately around offering an opportunity to create a jewel or a sculpture in the round. The scale of the building relates directly to the dense, existing mid-rise context. The design of the building is both refined and bold, each architectural move subtle on its own, but collectively creating a dramatic form. The façade of the project is designed to be as uniform and abstract as possible, celebrating the form of the building. The reflective glass enhances the unique geometry, helps disguise the multitude of technical elements of the envelope and also allows for privacy for the residents.

To take advantage of the temperate climate of Sao Paulo, the apartments feature floor-to-ceiling glass walls that fold away, seamlessly opening up the gardens and terraces to the living spaces within.

The urban context and security requirements required a fence around the site. To enliven and animate the pedestrian experience, the fence was designed as visually permeable as possible and planted with greenery where it had to be opaque.

Email interview conducted by John Hill.

Site plan
Eleventh floor plan
West elevation
N-S building section looking east

Vitra

2015
São Paulo, Brazil

Client
JHSF Incorporações LTDA

Architect
Studio Libeskind - New York, NY, USA
Pablo Slemenson Arquitectura - São Paulo, Brazil

Principal Architect
Daniel Libeskind

Principal in Charge
Carla Swickerath

Project Team
Joe Rom, Raul Correa-Smith

Architect of Record
Pablo Slemenson Arquitectura

Structural Engineer
JKMF (Escritório Técnico Julio Kassoy e Mario Franco Engenheiros Civis LTDA)

MEP Engineers
MSA Projetos e Consultoria LTDA (for ventilation and air conditioning system)
Interativa Engenharia LTDA (for electrical and plumbing system)

Landscape Architect
Gilberto Elkis Paisagismo

Lighting Designer
Maneco Quinderé e Associados Iluminação

Interior Designer
Dado Castelo Branco Arquitetura e Interiores

Contractor/Construction Manager
JHSF Incorporações LTDA

Sealing Project
Proiso Projetos e Consultoria LTDA

Windows
Schüco do Brasil

Balcony Glass Closing
Dorma

Elevators
Atlas Schindler

Site Area
1,810 sm

Building Area
14,000 sm

Drawings
Studio Libeskind

Photographs
Ana Mello

Related articles 

Other articles in this category