US Building of the Week

Wachholz College Center

Cushing Terrell | 26. June 2023
Photo: Heidi Long, Longviews Studios
Project: Paul D. Wachholz College Center, Flathead Valley Community College (2022)
Location: Kalispell, Montana
Client: Flathead Valley Community College
ArchitectCushing Terrell
  • Design Principal: David Koel
  • Project Architect: Shawn Pauly
  • Project Manager: Fran Quiram
Structural and MEP/FP Engineer: Cushing Terrell
Landscape Architect: Cushing Terrell
Lighting Designer and Theatrical: Schuler Shook
Interior Designer: Cushing Terrell
Civil Engineer: RPA (Robert Peccia & Associates)
Geotechnical Engineer: Alpine Geotechnical
Acoustical Engineer and Audio / Video: Threshold Acoustics
Contractor: Swank Enterprises
Building Area: 67,000 sf
 
See bottom for Important Manufacturers / Products.
Photo: Heidi Long, Longviews Studios
What were the circumstances of receiving the commission for this project?

Cushing Terrell has a long-standing relationship with Flathead Valley Community College, serving as their primary design firm for many years. This deep-seated knowledge of the client vision and priorities ultimately led to the project commission.

Photo: Heidi Long, Longviews Studios
Please provide an overview of the project.

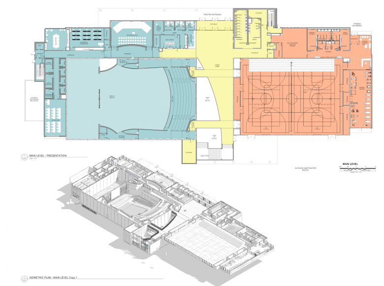
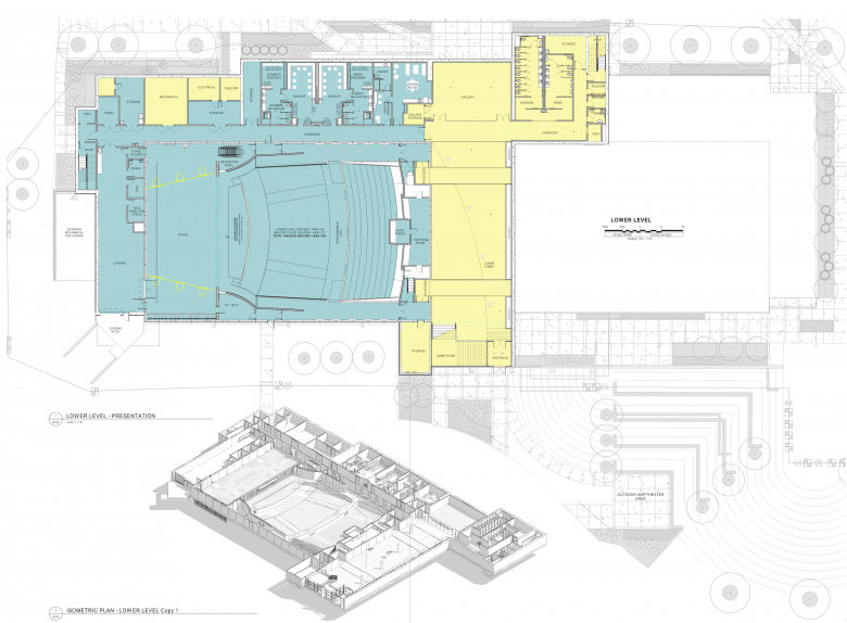
The Wachholz College Center is a 67,000-square-foot facility that melds two distinct venues that are usually separate — performing arts and athletics — into one grand facility on the Flathead Valley Community College campus in Kalispell, Montana. The project theme: “Music in Motion.” 

Designed by Cushing Terrell, with specialty consultants Schuler Shook and Threshold Acoustics, and built by Swank Enterprises, the College Center features McClaren Hall, a 1,000-plus-seat performing arts center with state-of-the-art acoustics and the flexibility to accommodate concerts, lectures, dance performances, and musical theater productions. Music classrooms and individual practice spaces support rehearsals and group collaborations. Additionally, the facility houses the Stinson Family Event Center, a dual-court gymnasium with breathtaking northeastern views, fitness center, and flexible health and wellness space for yoga, Pilates, and other classes. A reception hall and art gallery connect McClaren Hall and the Stinson Family Event Center, while an outdoor amphitheater rounds out the performance and gathering spaces.

Photo: Heidi Long, Longviews Studios

The project’s design challenges — or rather opportunities for creativity and invention — involved delivering superior acoustic performance as well as acoustic separation of the different programs, while connecting the two in a natural, harmonious manner. Leveraging the idea of music in motion, the design team worked to ensure all elements of the facility responded to and aligned with this theme — everything from the very visible exterior elements that represent musical scales and piano keys to the smallest interior details, such as balcony railings and wood accents that mirror music vibrations and convey a sense of repetition and rhythm. 

Photo: Heidi Long, Longviews Studios
How does the design respond to the unique qualities of the site?

The site itself is another interesting element of the project story, as the facility is built into a steep hill between a pond surrounded by trees and an already existing parking lot on campus. The ability to utilize the parking lot (performances tend to be in the evening, while classes are during the day) was a significant benefit of the location and building into the hillside kept the front entrance of the facility at a scale that fits in with the rest of the buildings on campus. The “wow” factor happens when you walk in through the front entrance and experience the interior volume and descend into the lower-level theater. The site also provided the opportunity to utilize the topography for the outdoor amphitheater at the back of the building with stepped seating that looks out toward a forested area and a pond.

Photo: Heidi Long, Longviews Studios
How did the project change between the initial design stage and the completion of the building?

A value engineering change done during construction was related to the shape of the parapets on the exterior entry. Originally designed to mirror the swoosh of a conductor’s baton, the design was updated to instead reflect the angles of the surrounding mountains. The change was driven by cost and the availability of materials; however, it resulted in a simple, elegant shape well-suited to the building. Another change was related to the outdoor amphitheater. Due to costs and material availability, as well as aesthetics and ambiance, the team reduced the amount of concrete used for the seating and instead created grassy, tiered seating that melds in with the environment. 

Photo: Heidi Long, Longviews Studios
What products or materials have contributed to the success of the completed building?

The two primary spaces (performance hall and gymnasium) are made of massive pre-stressed concrete panels. The concrete panels not only provide high-quality acoustics, but also a solid structure with durable finishes. Additionally, the project boasts large ductwork to create low-volume air for better acoustics. To solve for the issue of sound separation between the programs, the design team utilized an acoustic isolation joint with isolation pads that support the balcony-level bridges between the two venues. These engineering features act to split the building in half and separate the spaces acoustically. 

Email interview conducted by John Hill.

Photo: Heidi Long, Longviews Studios
Important Manufacturers / Products:

  • Precast structural concrete panels, integrally insulated: Missoula Concrete
  • Digitally printed, wood-look, aluminum siding: Longboard Products, 6” T&G, table walnut
  • Interlocking, shingle-style, flat-lock metal panel siding: ATAS International, Versa-Lok, silversmith and black
  • Fixed audience seating: Irwin Seating Company, 27.12.17.4 Allegro, upholstered seats and backs with wood veneered decorative back panel and wood armrests, fabric Maharam cherry
  • Orchestra shells and overhead reflectors: Staging Concepts, Bravado, custom wood veneer finish

Photo: Heidi Long, Longviews Studios
Photo: Heidi Long, Longviews Studios
Main Level (Drawing: Cushing Terrell)
Lower Level (Drawing: Cushing Terrell)

Other articles in this category