Watch Hill House

Watch Hill House

30. September 2013

Watch Hill House
2012
Westerly, Rhode Island
 
Client
Withheld
 
Architect
Lubrano Ciavarra Architects
Brooklyn, NY
 
Design Principal
Lea Ciavarra

Project Architect
Anne Marie Lubrano

Project Manager
Lea Ciavarra

Project Team
Tyler Caine

Structural Engineer
Site & Structure, LLC
 
MEP/FP Engineer
Silverio Mechanical, LLC

Landscape Architect
Keith LaBlanc Landscape Architecture (design)
Grandscapes (implementation)
 
Interior Designer
Sasha Nostrand Interiors
 
Contractor
Gary M. Vacca Building Contractor, Inc.

Cedar Siding Installation
Elias Baron Construction, LLC

Slate Panels
Realstone Inc.

Site Area
3.5 acres

Building Area
5,200 sf

Photographs
Chris Cooper Photographer

Drawings
Lubrano Ciavarra Architects

South elevation at twilight

What were the circumstances of receiving the commission for this project?

The owners were repeat clients for the architects. In 2004, the architects had designed their primary residence in Pelham, NY – a major renovation including the insertion of very modern interiors in a large existing Victorian house. When this lively family of five considered building a weekend home to serve as a hub for their extensive network of family and friends, they called Lubrano Ciavarra because, as they said, "They balance a bold, exciting, contemporary design aesthetic with practicality and durability. They make a complex and challenging process a fun collaboration." Many of the firm’s clients retain the firm for multiple projects, and remain friends long after the completion of the work.

West elevation at twilight

Can you describe your design process for the building?

Design innovation comes with conceptual clarity. And the process is as important as the product for Lubrano Ciavarra Architects. Each project begins with freehand sketching. For this project, we had an in-house design charrette where each member of the firm worked independently on a concept before coming together to finalize our ideas. Sketches were translated into plans and diagrams or "names" for the building. Naming and diagramming are critical components that help us to ensure conceptual clarity.

Material "lines" detail

How does the building compare to other projects in your office, be it the same or other building types?

The project in Westerly exemplifies the firm’s design approach as stated in their mission statement: Our work allows for emptiness – space to perform a field of activities but also space to exhale. Limited palettes are selected to unite each place with its idea. The manipulation of spatial surfaces create moments of delight and moments of pause. A salient theme in Lubrano Ciavarra's projects is the manipulation of individual elements, through repetition, to create resonance and texture. Examples of related projects include the Island House in the Bahamas and The Howard Greenberg Gallery in Manhattan, both of which similarly use horizontal textures and patterning .

Stair hall gallery with view to preserve

How does the building relate to contemporary architectural trends, be it sustainability, technology, etc.?

The house incorporates a geo-thermal heating and cooling system. We have three wells on the site, each drilled at 425’ deep. On the interior, we have two Climatemaster package units that are both air handlers and heat exchangers. When water is in the tube in the well it is absorbing the temperature of the earth at 50-55 degrees (in both the Summer and Winter). In the Summer, the package units are taking heat from the house and transferring it back into the water in the tubes before sending them back to be heated again by the stable temperature in the earth. From the package units, the temperature is transferred via forced air through a ducted system. We supplement this with an ERV that takes the exhaust from all of the bathroom fans and uses it to pre-temper fresh air that is brought into the house. The system is calibrated in response to our use of blown-in Icynene insulation in order to get a tight air-seal throughout the house.

Second-floor living room

How would you describe the architecture of Rhode Island and how does the building relate to it?

Similar to many Rhode Island homes, the house incorporates a limited palette of locally harvested materials – including cedar wood, bluestone and copper - however, it uses these materials in a fresh, modern interpretation versus the typical vernacular usage. Additionally, in contrast to the more common “added-on” porch volume, the architects use cedar “straps” of horizontal siding, folded in to create integrated programmed exterior spaces. Most importantly, rather than sitting “on” the site as many traditional Rhode Island homes do, this house – located on a secluded site with significant elevation changes, fronting a nature preserve – fully engages with its surroundings. Framed, long views of the Pawcatuck River and spacious panoramas of the native grasses and trees of the preserve offered unique possibilities for Lubrano Ciavarra. The slender Pool House and Main House bar buildings capture views of the preserve via their careful siting. A journey across the site unfolds as a conversation between openness and constructed site lines.

Email interview conducted by John Hill.

Night view of kitchen from exterior screened-in porch
Master bedroom
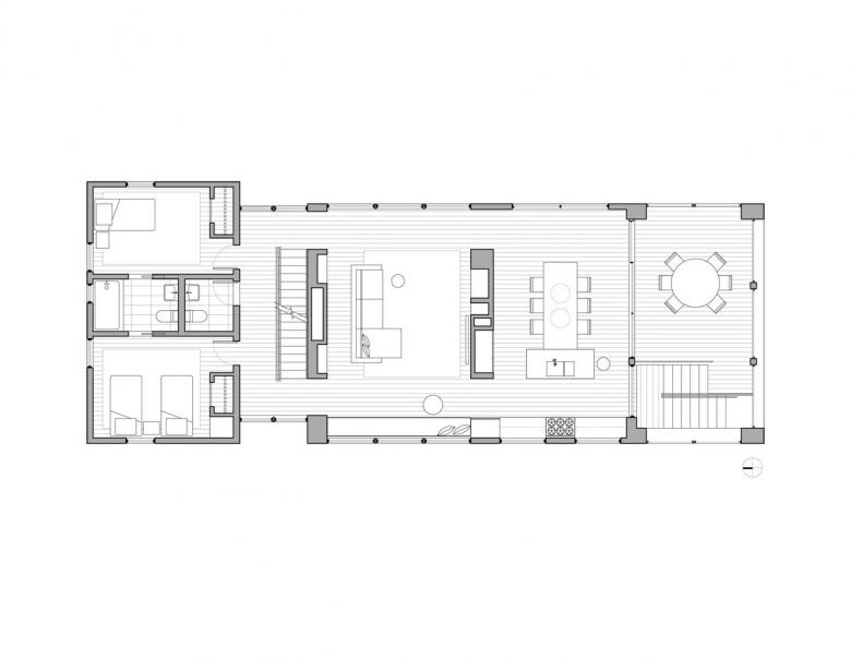
Ground floor plan
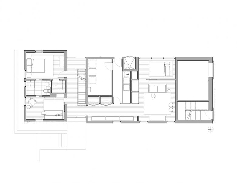
Second floor plan
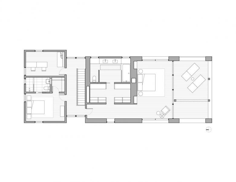
Third floor plan
Section drawing at stair hall gallery

Watch Hill House
2012
Westerly, Rhode Island
 
Client
Withheld
 
Architect
Lubrano Ciavarra Architects
Brooklyn, NY
 
Design Principal
Lea Ciavarra

Project Architect
Anne Marie Lubrano

Project Manager
Lea Ciavarra

Project Team
Tyler Caine

Structural Engineer
Site & Structure, LLC
 
MEP/FP Engineer
Silverio Mechanical, LLC

Landscape Architect
Keith LaBlanc Landscape Architecture (design)
Grandscapes (implementation)
 
Interior Designer
Sasha Nostrand Interiors
 
Contractor
Gary M. Vacca Building Contractor, Inc.

Cedar Siding Installation
Elias Baron Construction, LLC

Slate Panels
Realstone Inc.

Site Area
3.5 acres

Building Area
5,200 sf

Photographs
Chris Cooper Photographer

Drawings
Lubrano Ciavarra Architects

Related articles 

Featured Project 

Atelier KI JUN KIM

House by the Wall

Other articles in this category