Office of Architecture

Watermill House

Office of Architecture | 6. March 2017

Watermill House

2016
Watermill, New York

Client
Private

Architect
Office of Architecture
Brooklyn, NY

Design Principal/Project Architect
Aniket Shahane

Project Team
Ivan Kostic, Valentin Bansac, Tristan Walker, Edward Simpson, Joshua Eager

Structural Engineer
Blue Sky Design

MEP/FP Engineer
Altieri Sebor Wieber

Interior Designer
Friedman Moore

Contractor
Aran Construction

Landscape Contractor
Summerhill Landscape

Pool
Pristine Pools

Important Manufacturers
Duratherm Doors and Windows
VM Zinc
Clear Western Red Cedar
Jerusalem Grey Gold Limestone

Site Area
Approx. 1.5 acres

Building Area
Approx. 6,000 sf

Photographs
Rafael Gamo

Drawings
Office of Architecture

What were the circumstances of receiving the commission for this project?
A client for whom we had completed a project in the city contacted us when they were considering some lots on Long Island to potentially build a second home.  We visited some properties with them, did some massing/square footage studies, and assisted in making a decision on the lot.

Please provide an overview of the project.
The project is an approximately 6,000-sf home for a young family in Watermill, New York. The house combines careful attention to spatial qualities and material detailing with intelligent planning and siting.

What are the main ideas and inspirations influencing the design of the building?
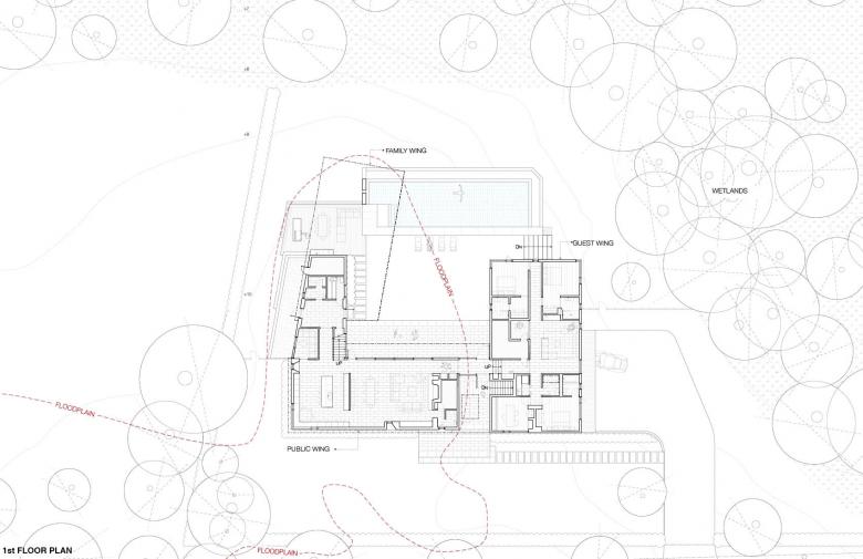
When our clients approached us, our immediate concern was that the lot – located in a FEMA floodplain, on a property that is approximately 50% unbuildable wetlands – wouldn’t deliver the square footage or the living spaces required to create a "Hamptons Home." Rather than fight the constraints imposed by the land, we saw this as an opportunity to capture a variety of spaces that could exist under, over, and between the building and the landscape.

The design of this project is literally "high-end." Three zinc-clad volumes – the Public wing, the Guest wing, and the Family wing – elevate all the heated areas and critical infrastructure above the floodplain. These volumes organize the primary indoor areas such as living rooms, bedrooms, baths and mechanical rooms, while interstitial spaces between the house and ground foster a series of outdoor rooms.

How does the design respond to the unique qualities of the site?
The volumes of the house hover above the low-lying landscape in a manner that sponsors a variety of indoor/outdoor spaces. A carport slips under the guest wing; a pool lounge is sheltered under the master wing; a terrarium is captured between the guest wing and mechanical space. The architecture works in concert with the landscape.

How did the project change between the initial design stage and the completion of the building?
The main ideas for the project arrived early on in the process. After that, it was really refinement of materials and detailing until completion.

Was the project influenced by any trends in energy-conservation, construction, or design?
We tend to be skeptical of trends in general. That said, the project is very aware of its site, the movement of the sun, and its potential for flooding. This is reflected in the massing of the house as well as its lighting/venting systems. Every room has plenty of natural daylight and ventilation, while the primary heating system is a radiant floor. The cantilevered master wing of the house naturally shelters the courtyard from strong winds off the water in the winter, while the layout of the house leaves no wasted space.

Email interview conducted by John Hill.

Watermill House

2016
Watermill, New York

Client
Private

Architect
Office of Architecture
Brooklyn, NY

Design Principal/Project Architect
Aniket Shahane

Project Team
Ivan Kostic, Valentin Bansac, Tristan Walker, Edward Simpson, Joshua Eager

Structural Engineer
Blue Sky Design

MEP/FP Engineer
Altieri Sebor Wieber

Interior Designer
Friedman Moore

Contractor
Aran Construction

Landscape Contractor
Summerhill Landscape

Pool
Pristine Pools

Important Manufacturers
Duratherm Doors and Windows
VM Zinc
Clear Western Red Cedar
Jerusalem Grey Gold Limestone

Site Area
Approx. 1.5 acres

Building Area
Approx. 6,000 sf

Photographs
Rafael Gamo

Drawings
Office of Architecture

Related articles 

Other articles in this category