World Building of the Week

WHIN Music Community Charter School

GLUCK+ Architecture | 15. September 2025
Photo: HANA / Hear And Now Agency
Exterior of the former parking garage on West 162nd Street (Photo courtesy of GLUCK+)
What were the circumstances of receiving this commission?

The journey began when WHIN secured a K-5 charter to become the first school in the East Coast developed from El Sistema, a model for social action through music founded in Venezuela. Finding a suitable site for such a unique school was challenging, particularly in New York City’s dense real estate market. After years of searching and numerous test fits, a three-story, mid-block parking garage on West 162nd Street, in Washington Heights, was identified. By then, WHIN had secured its middle-school charter, requiring a larger design to accommodate its expanded curriculum.

Photo: HANA / Hear And Now Agency

From the outset, the fundamental goal was to create high-quality space for 504 local students. However, WHIN’s mission and program pushed the task further. At the heart of its pedagogy is the musical ensemble—the teaching tool for academic, character, and leadership development. Using orchestra as a model, all students collaborate and work together with the intention of becoming active citizens empowered to affect social change. Therefore, the building took on the goal of expressing, elevating and manifesting this same mission, becoming a direct architectural statement of WHIN’s purpose.

Interior of the former parking garage on West 162nd Street (Photo courtesy of GLUCK+)
What makes this project unique?

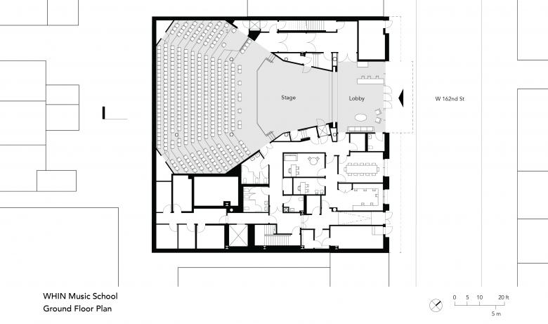
At WHIN, the architecture is purpose-driven, expressing the school’s mission at every level. The auditorium—the school’s core and unique program—is central to the design, physically and symbolically. Visible from both the lobby and the street, it forms a connection among students, teachers, and parents, while also inviting the community, and anyone walking down the sidewalk, to engage and take part in WHIN’s purpose.

Photo: HANA / Hear And Now Agency

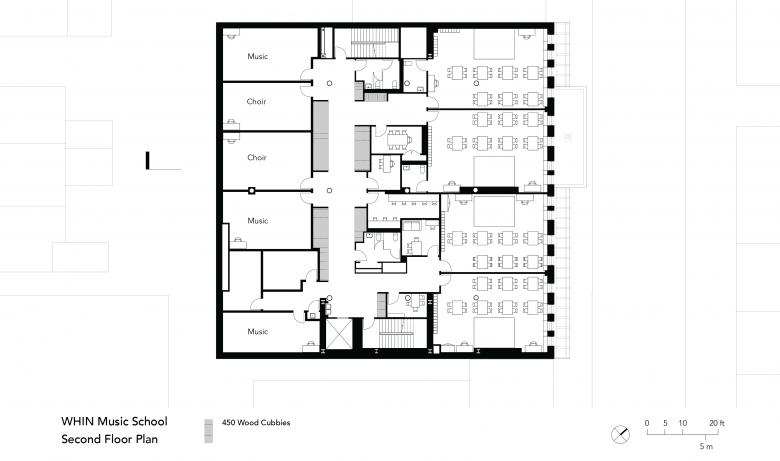
The building elevates the musical pedagogy, embedding it in every corner of the school. The second floor houses the music department. Rather than hiding the large number of instruments needed for daily instruction, the design integrates circulation and storage, making the instruments part of the spatial experience and empowering students to take responsibility for their own learning tools while streamlining transitions. The interior experience is layered to reflect WHIN’s identity, while the exterior facade establishes an institutional presence in the otherwise residential street. The yellow fins define the building facade and transform the school’s urban presence as seen obliquely from the avenues. Its design captures the musical essence, instilling civic pride, fostering community engagement, and creating an inspiring, lasting impression. This is not just a school, but the WHIN school. The architectural embodiment of the WHIN mission.

Photo: HANA / Hear And Now Agency
What is the inspiration behind the design of the building?

Due to the high cost and intense pressure of real estate in New York City, the school had to occupy a site that required a very tall building. Eight stories for a K-8 school presents challenges for operations, so several strategies were employed to address and mitigate these issues.

First, the program was organized so that the youngest students, kindergarten through third grade, occupy the lower floors of the building, effectively operating within a three-story space. As the children grow older, their world expands, continuing their academic journey through the entire building. The rhythm of windows on the exterior facade reflects this academic progression: kids on the first floor learn the fundamental, so the window variation is minimal in their classrooms. As their mastery increases, the windows in the top-story classrooms become more animated.

Photo: HANA / Hear And Now Agency

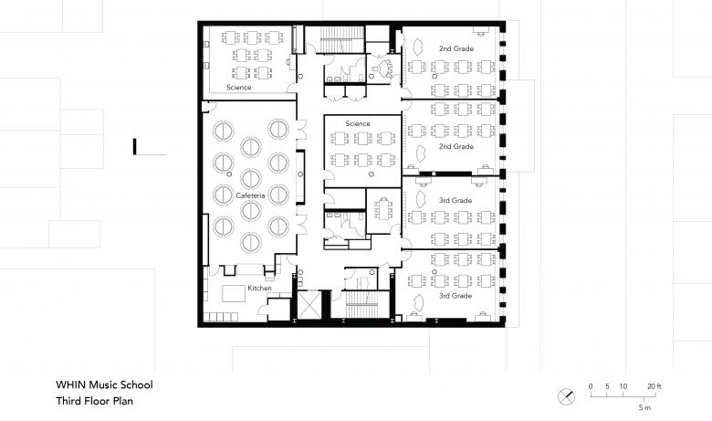
In a vertical building, stairs become as important as hallways for circulation. To aid wayfinding and integrate the experience, WHIN’s interior design establishes a blue side and a gold side—colors that reflect the school’s identity and are present in uniforms and emblems. These colors run throughout the design, creating a sense of cohesion. The hallways serve as a crossover, with blue and gold blended in the floor patterns. Smaller "alleys" off the main hallway correspond to different grades, creating more intimate, grade-specific spaces for gathering and displaying student work. This design approach extends to details like the color of the doors and even furniture in the classrooms. Furthermore, the music department is strategically located at the heart of the second floor. Music rooms and music offices sit right above the concert hall, and 450 individual, custom-made wood cubbies, just a few steps above the stage, allow each student to safely store their instrument.

These thoughtful design choices, both large and small, define a graduation of spaces that range from school-wide areas to the individual student. The result replaces the typical repetitive and institutional feel with a more bespoke, tailored, and personal experience.

Photo: HANA / Hear And Now Agency
How did the site impact the design?

A parking garage, outdated and underused, stood on a residential street—30,000 square feet of concrete dedicated to storing cars. Rather than demolishing it and contributing to landfill waste, WHIN’s building retains the garage’s structurally-sound elements. By preserving the existing walls, columns, and slabs, the design captures the embodied carbon, energy, and resources already invested in the structure, giving the building new life while minimizing environmental impact. 

Energy efficiency is just one benefit of this approach. Since the original garage occupied the entire lot—a condition no longer permitted under current zoning—its footprint allowed us to utilize the full area of the site on the first three levels. This increased the usable space in the adaptive reuse portion of the project and helped limit new construction to only five additional stories.

Furthermore, the new building's structure is supported by the original bearing brick walls at the perimeter of the garage, saving both material and labor that would otherwise have been required. The strategy also reduced the environmental impact and minimized neighborhood disruption, with shorter construction timelines, less dust, noise, and traffic. WHIN is an example of smart, sustainable, affordable and community-centered adaptive reuse.

Photo: HANA / Hear And Now Agency
To what extent did the owner, client, or future users of the building affect the design?

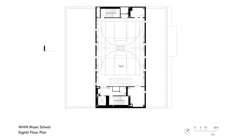
The program sought something rare for schools of this size: a full gym, cafeteria, and a 330-seat auditorium. Rejecting the “gymatorium” or “cafetorium” concepts, the program and building design focused on time-based use, the “fourth dimension,” to optimize space. Given the investment, the auditorium couldn’t sit idle during school hours, so its stage doubles as a classroom for percussion and orchestra instruction. This approach eliminates additional space needs, boosting occupancy rates to 80% and maximizing the building’s value and functionality within budget. Instrument storage within the second-floor corridors follow the same logic: circulation and space efficiency provide functional, inspiring spaces.

Equity is enhanced through a finely tuned acoustic environment that accommodates the needs of students and faculty across various activities. Isolation between spaces (STC >50) ensures minimal interference from adjacent rooms, crucial for a music-focused curriculum happening simultaneously across many different spaces. Within each classroom, high sound absorbency (NRC >0.7) diminishes noise and enhances focus and learning. In the theater, design as a concert hall for orchestral music, concert-level acoustics balance absorption and reflection to support both audience and performers. This attention to sound quality fosters an inclusive and adaptable environment, supporting a wide range of learning needs and preferences.

Email interview conducted by John Hill.

Photo: HANA / Hear And Now Agency
Project: WHIN Music Community Charter School, 2024
Location: New York, NY, USA
Client: WHIN Music Community Charter School
ArchitectGLUCK+ Architecture, New York
  • Design Principal: Thomas Gluck
  • Project Architect: Stephane Derveaux
  • Project Manager: Marc Pittsley
  • Project Team: Ross Galloway, Yoonjin Kim, Fei Li, Nick Harold, Louis Koushouris, Nick Sturm
Structural Engineer: TYLin (Silman), Nat Oppenheimer
Structural Engineer (Shoring): Blue Sky Design
MEP/FP Engineer: GEA Consulting Engineers, PLLC (Juan Carlos Toro)
Lighting Designer: Lux Populi (Thomas Paterson)
Contractor: GLUCK+ Construction (Marc Gee, Dongdong Fan)
Code Consultant: JM Zoning
Geotechnical Engineering: Geo-Technology Associates, Inc.
Acoustic and Theatrical Consultant: Harvey Marshall Berling Associates
Specifications: Construction Specifications, Inc.
Food Service/Kitchen: Kitchen Consultants, Inc.

Facade: Forst Consulting & Architecture
Elevator: Iros Elevator
Fire Protection & Life Safety: P.E.C. Associates, Inc.
BPP: Leonard J. Strandberg and Associates Consulting Engineers and Land Surveyors, P.C.
Site Area: 9,990 sf
Building Area: 55,626 sf
Photo: HANA / Hear And Now Agency

Important Manufacturers / Products:

  • Aluminum Rainscreen Panel System: Morin by Kingspan w/Sherwin Williams MX series painted aluminum concealed fastener rainscreen/wall panel system with 1.5” deep box ribs
  • Roofing: Modified SBS Roof Polyglass
  • Metal Frame: Fecara Aluminum Systems Corp in collaboration with Elvial Advanced Aluminum Solutions
  • Glass: Bird friendly glass, bullet resistant glass level 3
  • Skylights: Fecara Aluminum Systems Corp in collaboration with Elvial Advanced Aluminum Solutions
  • Acoustical ceilings: Typical: CertainTeed narrow reveal bolt slot
    Theater – Kinetics Noise Control Isolators
  • Cabinetwork and custom woodwork: Maple melamine throughout.
    Cuisine Ideal for production work. 212 Renovations for custom work.
  • Wood ceiling and theater floor: Wide plank clear maple by Kember Kreative Interiors
  • Lighting Fixtures: Mixed, Mark, Lumenwerx, PLT Solutions, Alphabet, ALW, Corelite, Eliptipar, Hevi Lite
Ground Floor Plan (Drawing: GLUCK+)
Second Floor Plan (Drawing: GLUCK+)
Third Floor Plan (Drawing: GLUCK+)
Fourth Floor Plan (Drawing: GLUCK+)
Eighth Floor Plan (Drawing: GLUCK+)
Cross Section (Drawing: GLUCK+)
Elevation (Drawing: GLUCK+)

Related articles 

Other articles in this category