White Dormitory for Il Vento

White Dormitory for Il Vento

1. January 2014

White Dormitory for Il Vento
2011
Kagawa

Client
CHC Circle House Corporation

Architects
Case Real

Design Principal
Koichi Futatsumata, Yasushi Arikawa

Director
Tsuyoshi Matsuzawa

Lighting Designer
Masaaki Sato (Ushio Specks Fukuoka)

Contractor
Naikai Archit Co., Ltd.

Furniture manufacturing
E&Y

Site Area
127.9㎡

Building Area
94.2㎡

Total Floor Area
94.2㎡

Photo
Hiroshi Mizusaki

Courtyard viewed from roof
Courtyard terrace

Please give us an overview of the project.

In order to introduce a new element to the community without destroying the appearance of the very traditional streetscape, we left the street-side façade unchanged. The Japanese-style roof, however, had become dilapidated, so we replaced it with a new roof modeled on the old one. The change is almost invisible from outside because only the materials, not the form or color, were replaced.

On the other hand, the interior rooms and courtyard that make up the new dormitory facilities are composed of delicate layers of wood, stone, plaster, and other materials, all of which are white but which differ in terms of mood and texture. In Japan the color white symbolizes not only newness and innovation, but also has religious connotations such as purity, peace, and innocence. Each interior space is made up of three private rooms and one lounge. These units surround a small courtyard with a large, white terrace that links to the lounges, achieving an expansive public space. My hope is that the interior/exterior, old/new contrast that we created in this project contributes to broadening the possibilities of the island itself and the architecture that already exists on it. 

Lounge

What was important to you in the design process? What challenges did you face and how did you handle them? 

The challenge was to pay close attention to the impact of the project on the streetscape within the context of an island community with a shrinking population. In fact, the care we took in that respect determined the design process itself. The client wanted to renovate a run-down, abandoned, hundred-year-old home, but in doing so to reduce as much as possible the degree of disruption inflicted on the surrounding area. We responded with a proposal to restore the exterior so that it would appear completely unchanged from the outside. We used the same kind of plasterwork, wood planks, and streetlamps that had originally been there. We removed the tiles and earth from the dilapidated, leaking roof and replaced them with Galvalume zinc-aluminum roofing that mimics the color and shape of the original roof, resulting in an exterior that blends in extremely well with its surroundings. Inside, however, there was a need to bring in new lifestyle elements and functions. We consciously chose white to represent newness and built an interior from all white materials. The project as a whole plays exterior against interior, experimenting with the ways in which old and new can coexist. 

Exterior viewed from street
Approach

What did you learn from this project? What will you take from it to future projects?

With this project we thought about what kind of architecture is appropriate for a place with a strong sense of community, as well as about how to take the surrounding environment and existing objects into consideration. I think we’ll be able to put that to use in future designs.

Entrance
Lounge

How does this project fit into current architectural trends?

Old, abandoned wooden houses like the one we remodeled for this project exist not just in Teshima but throughout the entire country. I think what we did here – avoiding arbitrary changes to the exterior but creating new interior spaces – suggests one way to do renovations in this kind of community.  

Room 1
Terrace and lounge seen from entrance

What is the role of architects and architecture in society?

“Society” is a very broad topic, but I believe our role is to be aware that we are creating one piece of the landscape, and to do what we can through spaces and forms to create beautiful, rich environments and ways of being. 

View of streetscape with renovated roof
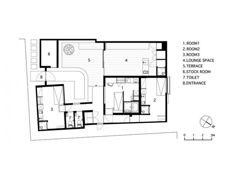
Floor plan 
Elevation 


E-mail interview by Yuna Yagi (translated from Japanese) 

White Dormitory for Il Vento
2011
Kagawa

Client
CHC Circle House Corporation

Architects
Case Real

Design Principal
Koichi Futatsumata, Yasushi Arikawa

Director
Tsuyoshi Matsuzawa

Lighting Designer
Masaaki Sato (Ushio Specks Fukuoka)

Contractor
Naikai Archit Co., Ltd.

Furniture manufacturing
E&Y

Site Area
127.9㎡

Building Area
94.2㎡

Total Floor Area
94.2㎡

Photo
Hiroshi Mizusaki

Related articles 

Other articles in this category