Tigerman McCurry Architects
Wilmette House
Although known for residential designs that are traditional in vein, this house on Chicago's North Shore makes it clear that the husband-wife firm of Stanley Tigerman and Margaret McCurry are capable of designing in the modern idiom. The architects answered a few questions about the project, which balances eastern and western cultures as a mirror of the client.
Please provide an overview of the project.
The 3,500 square-foot house was designed for a couple whose heritage represents eastern and western cultures. The house sits on an atypical suburban lot and replaces the ancient Victorian the couple had owned for over twenty years that had been unattractively altered by previous owners and neither incorporated the site nor the sustainably-minded and active life style of its owners. A Chinese red portal set in a beech screen and a front door set within the white corrugated metal siding signals a unique ownership as do the playful Reitveldt-ian color accents of the house.
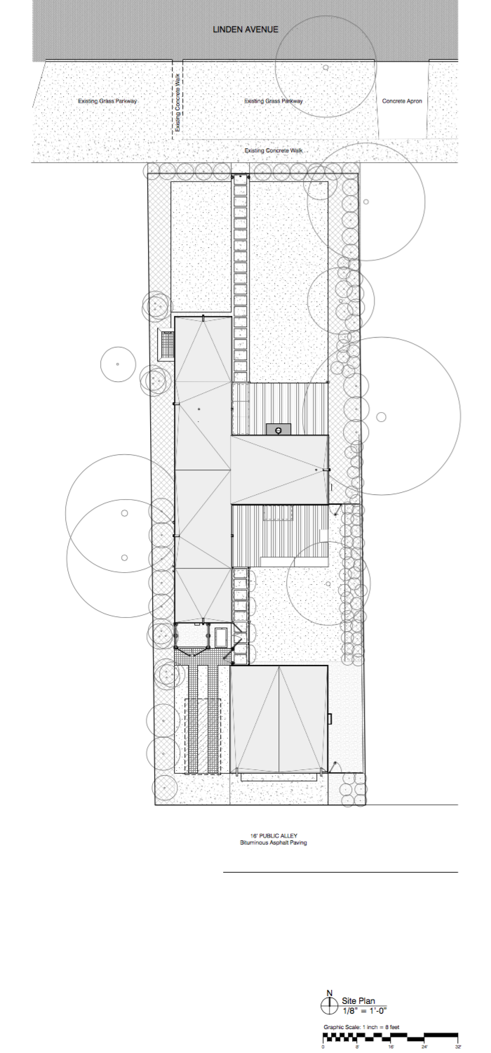
How does the design respond to the unique qualities of the site?
The Village of Wilmette on Chicago's North Shore was incorporated in 1872, hence the brick-paved streets in the historic district and the eclectic mix of traditional homes, residual coach houses and midcentury town homes. Grandfathered zoning to the west of the client's lot had produced a unique collection of deeply setback single-story condominium units. Their placement allowed for the design of an elongated T-shaped plan that capitalizes on that open sunlight. The stem of the 'T' houses the great room and benefits from cross breezes, gardens views and terraces to both the North and the South.
What products or materials have contributed to the success of the completed building?
The house envelope is completely sealed with spray foam insulation and is measured to have very little air infiltration. Corrugated metal siding requires no maintenance and has an extensive warranty. Its white color reflects solar rays in the summer and brightens grey winter days.
Email interview conducted by John Hill.
Wilmette House
2015Wilmette, Illinois
Client
Private
Architect
Tigerman McCurry Architects
Design Principal
Margaret McCurry, FAIA, FIIDA
Project Architect
Jeremy Hinton
Project Manager
Erik Martin
Structural Engineer
The Structural Shop, Ken Veach
Contractor
Bulley & Andrews
Construction Manager
Jason DeBaker
Lighting Designer
Darrell Hawthorne and Tigerman McCurry Architects
Photographs
Steve Hall/Hedrich Blessing
Drawings/Renderings
Tigerman McCurry Architects







