US Building of the Week

Winthrop Library

Johnston Architects and Prentiss Balance Wickline Architects | 27. February 2023
Photo: Benjamin Drummond
Project: Winthrop Library, 2022
Location: Winthrop, Washington, USA
Client: Friends of the Winthrop Library 
Architect: Johnston Architects
  • Design Principal: Ray Johnston
  • Project Architects: Mary Johnston, Harmony Cooper, Siyao Zhang, Mona Johnston Zellers
Associate Architect: Prentiss Balance Wickline Architects
Structural Engineer: Methow Engineering
Electrical Engineer: AWA Electrical Consultants
Mechanical & Plumbing: Sider + Byers
Landscape Architect: Karen Kiest Landscape Architecture
Lighting Designer: Ambient Lighting & Controls LLC
Interior Designer: Johnston Architects 
Contractor: Impel Construction
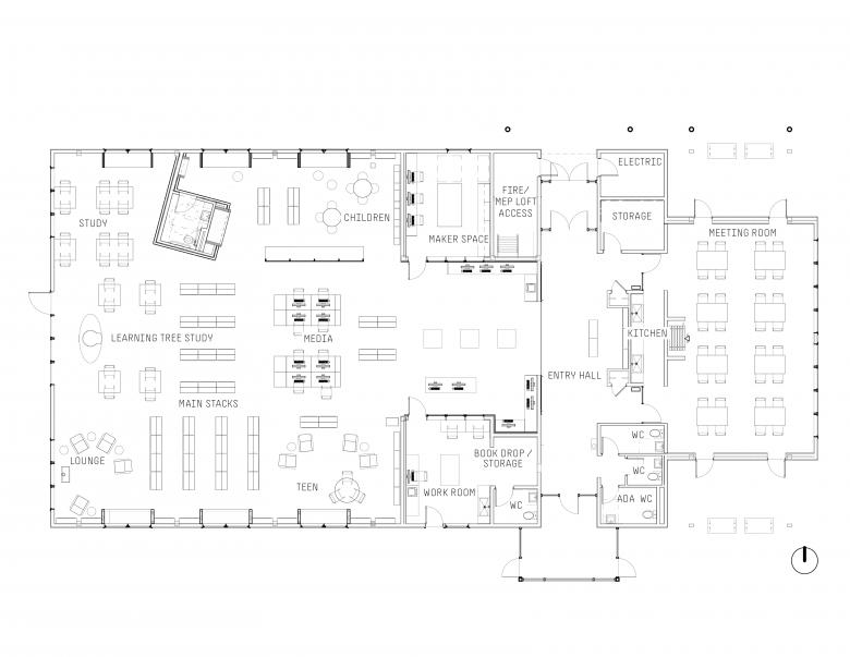
Building Area: 7,300 sf
Photo: Benjamin Drummond
What were the circumstances of receiving the commission for this project?

Washington State’s Methow Valley has a combined population of 14,000 to 20,000 part- and full-time residents. The town of Winthrop in the heart of the Valley was previously underserved by a very small library with inadequate access to resources and services, and residents were eager for enhanced public amenities.

Spearheaded by the Friends of the Winthrop Library organization, hundreds of requests were collected through Johnston Architects’ (JA) Hopes & Dreams charrette process, identifying the most important program elements desired by future patrons. To meet these needs, JA designed a new 7,300-sf library that supports the entire region.

By prioritizing community collaboration in the design process, the architects were able to quantify the community’s hopes for their new library while directly addressing what wasn’t working, creating Winthrop’s ideal civic space.

Photo: Benjamin Drummond
Please provide an overview of the project.

With considerable input from the community, specific needs of the region were met by JA with local support from Prentiss Balance Wickline Architects — namely, reimagined spaces for gathering, connection and discovery. Their existing library lacked space for community programs, did not have adequate space to manage the library’s collection of materials, and limited the community’s access to technology, with little or no space to work or study.

The new library can hold a collection of over 20,000 materials, and includes study tables, casual counter seating for studying or work, lounge seating, window seats, and a cozy fireplace. To strengthen the library’s inclusion efforts, computers with internet access help narrow the digital divide in a community with diverse economic demographics. A makerspace with 3D printer and other hands-on technology options broaden the patron pool, and a community gathering area with a large meeting room is accessible after-hours.

Entry Hall (Photo: Benjamin Drummond)
What are the main ideas and inspirations influencing the design of the building?

A strict Westernization code for buildings near the historic frontier town’s center challenged the architects to create a design befitting the community’s identity while complementing the rugged natural environment and prevailing architectural vernacular of Winthrop. Johnston Architects’ co-founders’ deep roots in and knowledge of the Methow landscape and community are reflected in the design’s intentionality and aesthetic.

Inspired by the open-air agrarian buildings in the region, the design includes broad overhangs, open roof trusses, and visible structure. Hay barns, with their wide, sheltering roofs and airy side walls, proved a perfect model for the building. The hay barn’s structural elements are elegant and exposed, usually composed of trusses and braces that give a delicate, yet strong impression. The hay barn form is historic, authentic, and practical — all qualities that were perfect for the new Winthrop Library.

Entry Hall (Photo: Benjamin Drummond)

Natural and wildlife-inspired design elements were also brought into the space, creating an immersive experience for patrons of all ages, including a sculptural “learning tree” made by a local artist that provides an interior niche. Designed by Johnston Architects, a unique, fabricated plywood-clad “cube” in the children’s area has a custom-designed animal motif, which contains activity desks and built-in reading cubbies to complete the whimsical design – and camouflage a children’s restroom. A cozy fireplace beckons patrons from the front door to the far end of the space, where large windows frame the unique Methow Valley landscape. 

Learning Tree Study and Stacks (Photo: Benjamin Drummond)
How does the design respond to the unique qualities of the site?

When searching for inspiration for the design of the new library, JA looked first at the beauty of the natural environment. The building sits with its long axis pointing to Mount Gardner, and its entrance toward the Methow River. It physically reflects the crossroads of the mountains and river, and also the crossroads of the community, where neighbors can gather, learn, and explore.

Lounge (Photo: Benjamin Drummond)
Was the project influenced by any trends in energy-conservation, construction, or design?

Completing numerous daylighting and energy studies internally, the Johnston Architects team shifted window openings, doorways, overhangs, and a slatted wooden scrim to best control heat gain and glare during the Methow Valley’s arid summers.

Teen Area (Photo: Benjamin Drummond)
What products or materials have contributed to the success of the completed building?

The Winthrop Library’s use of wood contributed to both the aesthetic and sustainability successes of the project. These include:

  • 1x6 Nickel Gap Larch exterior wood siding
  • 1x4 Larch interior wood wall and ceiling acoustic slats/baffles
  • 1x4 T&G Larch interior wood finish
  • Maple Europly Plywood – many thicknesses including custom laser cut application
  • Douglas Fir – Window and door trim and casing
  • Maple finish carpentry – cabinets and casework including the custom furniture pieces

Email interview conducted by John Hill.

Children's Area (Photo: Benjamin Drummond)
Meeting Room (Photo: Benjamin Drummond)
Site Plan
Floor Plan
Elevations and Sections

Other articles in this category