Yin-Yang House

Yin-Yang House

26. March 2012

Yin-Yang House
2011

Venice, CA

Client
Withheld

Architect
Brooks + Scarpa Architects
Santa Monica, CA

Lead Designer
Lawrence Scarpa, FAIA

Senior Designer
Ching Luk

Project Team
Emily Hodgdon, AIA

Structural Engineer
Charles Tan

MEP/FP Engineer
Antieri Halloossim

Landscape Architect
Zack Freedman

Lighting & Interior Designer
Lawrence Scarpa, FAIA

General Contractor
Glenn Lyons Construction

Solar Panels
Schüco PV S SPU-4 Series

Site Area
8,200 sf

Building Area
4,700 sf

Rear of house

What were the circumstances of receiving the commission for this project?

This nearly net-zero energy single-family home in a quiet Venice, CA neighborhood of single and multi-family residences was designed to create a space for a large and growing family with several children, which would create a calm, relaxed and organized environment that emphasizes public space and changes the stereotype of a home for a large family with young kids.   The home is also meant to serve as a place to entertain and a welcoming space for teenagers as they seek social space with friends. It was designed to incorporate sustainable design as a way of teaching a green lifestyle. The home is designed to passively reduce energy demand by more than 50%. This sound passive design strategy combined with a very tight perimeter building envelope and other active sustainable features such as the 12kw solar system make this home a zero energy consumption home.  It produces 100% of it's energy needs and since completion, has never received an electric bill.

The large cantilevered roof overhang

Can you describe your design process for the building?

A commitment to minimizing the project's ecological footprint informed all aspects of the home's design. The project goals of the Yin-Yang house focused on what was can be described as the “six zeros”: zero waste, zero energy, zero water, zero carbon, zero emissions, and zero ignorance.

The existing site location was analyzed for proper orientation and heat gain and differences between the local and regional climate.  We saw the potential of employing numerous passive strategies that would dramatically enhance the building’s relationship with the street and the neighborhood while maintaining privacy for the residents and conserving precious open space. This also included an analysis that would conserve building resources and saved time and money. The decision during pre design to make the bedrooms smaller than normal allowed the owners add more functional public family areas within their budget.  

Numerous environmental considerations were incorporated in the early planning and design stages of the project. We collaborated with an energy consultant from the outset to minimize energy use and best utilize natural features such as the sun and prevailing winds. Engineering design criteria and over conservative engineer factors were analyzed to reduce "over designing" the building and therefore wasting precious material. This alone saves miles of electrical wiring, thousands of feet of plumbing pipes and tons of steel reinforcing and concrete.

The orientation and shape of the building and the placement of windows maximized natural daylighting and natural ventilation and provided shading where needed.  The building’s design and technologies were tested and verified in the design process using simulated 3D computer modeling.

View of dining/livng area from patio

How does the completed building compare to the project as designed? Were there any dramatic changes between the two and/or lessons learned during construction?

The construction process was managed to be as resource efficient as possible.  We provided the contractor with a waste management plan that resulted in over 80% of the construction waste being recycled.  A waste removal company did not sort and recycled construction debris, however, contractors were required to recycle their own construction waste. Specifications were written for strict resource management, conservation, recycling procedures and protocols.

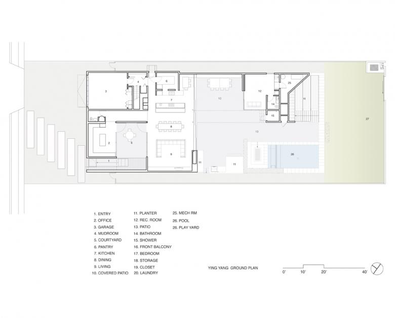
First Floor Plan

How does the building compare to other projects in your office, be it the same or other building types?

We have previously completed several LEED certified buildings, including pioneering certification baseline testing procedures in sectors (multi-family housing) of the building industry where the USGBC had not yet developed certification standards.  Although not submitted for certification at this time, it is the policy of the firm to follow the LEED certification process whether or not their clients choose to actually submit their project for certification. These procedures are standard practice as we have adopted the 2030 challenge and have been exceeding its goals for more than a decade.

Second Floor Plan

How does the building relate to contemporary architectural trends, be it sustainability, technology, etc.?

Yin Yang is 50% more energy efficient than California’s Title 24, the most demanding energy code in the United States. Advanced Heating Comfort System cools and warms floors, ceilings, and walls to create a perfectly temperate environment better for respiratory systems, skin, overall health, comfort and energy efficiency. Passive solar design strategies and proper building orientation, using the central courtyard between the two residential structures, allows for day lighting on both sides of every unit and shading, while allowing prevailing breezes to fully pass through the units for natural ventilation. Green Roof provides greenery for occupants to enjoy while keeping the building better insulated, cleaning the air, and reducing storm water runoff. Water Conservation is accomplished with dual flush toilets, efficient plumbing fixtures, hot water circulators, and drought tolerate landscaping.  All stormwater runoff is collected in an underground retention basin. A 12kw PV solar system powers all common area electrical loads and approximately 11.5% of the heating and hot water needs for the building. Green Materials and Products are used throughout that are recycled, renewable, and contain low or no VOC’s.

Email interview conducted by John Hill

Concept Diagram

Yin-Yang House
2011

Venice, CA

Client
Withheld

Architect
Brooks + Scarpa Architects
Santa Monica, CA

Lead Designer
Lawrence Scarpa, FAIA

Senior Designer
Ching Luk

Project Team
Emily Hodgdon, AIA

Structural Engineer
Charles Tan

MEP/FP Engineer
Antieri Halloossim

Landscape Architect
Zack Freedman

Lighting & Interior Designer
Lawrence Scarpa, FAIA

General Contractor
Glenn Lyons Construction

Solar Panels
Schüco PV S SPU-4 Series

Site Area
8,200 sf

Building Area
4,700 sf

Related articles 

Featured Project 

Atelier KI JUN KIM

House by the Wall

Other articles in this category