Yojisan

Yojisan

29. October 2012

Yojisan
2012

Beverly Hills, CA

Client
Giacomino Drago

Architect
Dan Brunn Architecture
Los Angeles, CA

Design Principal
Dan Brunn

MEP/FP Engineer
Perfect Design & Development

Lighting/Interior Designer
Dan Brunn Architecture

Contractor
Tokyo Construction


Construction Manager
Ken Nishio

Resin Panels (at cove lights)
Lumicor

Solid Quartz Surface (sushi bar counter)
CaesarStone

Self-Leveling Floor
Ardex

Building Area
1,700 square feet

Photographs
Taiyo Watanabe

Drawings
Dan Brunn Architecture

View of front façade from street

What were the circumstances of receiving the commission for this project?
 
I met the client, chef Giacomino Drago, about seven years ago in one of his other restaurants, and we became friends. He mentioned that he was interested in opening up a new Japanese concept in Beverly Hills and took me to visit the site. DBA was hired the next week.

View of main dining area from host desk

Can you describe your design process for the building?
 
Having visited Japan on a two-week architectural research trip, I looked back upon my travels and photos for inspiration. I wanted to capture a Japanese identity through materials, geometry, detail and light instead of typical Japanese motifs that are omnipresent in Japanese restaurant design. I was also strongly inspired by the food prepared by chef Yoji Tajima. He blends Japanese tradition with Italian and L.A. influences to surreal, refined (and delicious) results.

View of bento box and light wall

How does the completed building compare to the project as designed? Were there any dramatic changes between the two and/or lessons learned during construction?
 
The completed design is a one-to-one execution of the design intent, so much so that some of the renderings and photos can be interchanged.  

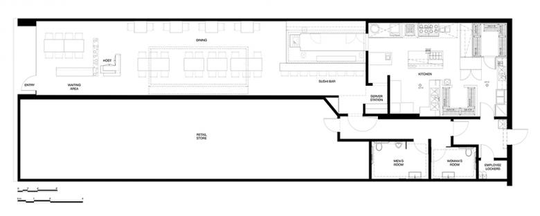
Floor Plan

How does the building compare to other projects in your office, be it the same or other building types?
 
Yojisan’s design adheres to my design philosophy of elegance and clarity. Every project should be easily understood and appreciated by its inhabitants. Yojisan is very rooted in the pure essentials. 

Perspective section showing the overall space

How does the building relate to contemporary architectural trends, be it sustainability, technology, etc.?
 
Referring back to traditional Japanese materials, we used some repurposed wood and steel. The wood was sourced from old farming barn houses, and the steel from ship yards.

Email interview conducted by John Hill

Yojisan
2012

Beverly Hills, CA

Client
Giacomino Drago

Architect
Dan Brunn Architecture
Los Angeles, CA

Design Principal
Dan Brunn

MEP/FP Engineer
Perfect Design & Development

Lighting/Interior Designer
Dan Brunn Architecture

Contractor
Tokyo Construction


Construction Manager
Ken Nishio

Resin Panels (at cove lights)
Lumicor

Solid Quartz Surface (sushi bar counter)
CaesarStone

Self-Leveling Floor
Ardex

Building Area
1,700 square feet

Photographs
Taiyo Watanabe

Drawings
Dan Brunn Architecture

Related articles 

Other articles in this category