Yomogino Hot Spa Renovation

Yomogino Hot Spa Renovation

27. February 2013

Yomogino Hot Spa Renovation
2011
Fukushima

Client
Yugengaisha Hanarenoyado Yomogino

Architects
Ryuichi Sasaki + Sasaki Architecture, Inc.
Tokyo

Design Principal
Ryuichi Sasaki

Project Team
Kei Kawai, Masahiro Tomita

Planning
TIOS Group Ryutaro Ishibashi

Advisor
Kiyoshi Iwabuchi

Contractor
OBA Company, Ltd.

Constr. Manager
OBA Company, Ltd / Katsuo Nagakubo, Yuichi Shinozuka

Stainless steel window frames
Heartland Engineering

Aluminum polishing
Shinko Stainless Kenma Co., ltd.

Heated glass
Monoha

Photos
Ryota Atarashi

Interior view 

What was the basic concept and design process for this project?

When this Fukushima hotspring inn was damaged in the March 2011 earthquake, the owners decided they not only needed to fix the damage but also to do something to distinguish themselves from other hotsprings nearby. The re-opening date was set for five months after the earthquake, on August 11. This decision was made in early May, so time was limited, and repairs to the roof and other areas hadn’t even been completed.

In addition to the large baths slated for rennovation, the facility included a Japanese-style ryokan,or inn, set in an pleasant natural environment near Mt. Yomogi. We decided to focus on creating a place where visitors could relax and enjoy time away from their everyday routine.

The interior space incorporates a peaked frame that echoes the shape of the mountains and the sloped roofs of the inn. Light filters into the rooms through the gaps in this frame, meeting the reflected scenery on the surface of the water. The design is an attempt to re-think concepts of space and scale.

Interior view 

Did the structure that was actually built differ in any way from your design? How did you solve any problems that arose?  

Some of the walls and ceilings are finished in bronze-colored aluminum panels, but in our original plan we had actually intended to use hinoki (Japanese cypress). After taking into consideration the height of the ceiling – which reaches four meters in places – and the need for regular cleaning and maintenance due to the minerals released by the hotspring, we decided to use weather-proof aluminum with an anodized finish. I think the glossy bronze-colored panels ended up contributing a sense of translucency to the space.

Another issue was that in the pre-renovation bath, the steam from the hot water clouded the windows and made the view outside nearly invisible. By using heated glass we were able to solve the condensation problem. The 6-meter-wide concealed stainless-steel window frames also play a role in letting visitors fully enjoy the natural scenery.

Night view 

How is this project similar or different from previous projects?

In this project we used a peaked frame that shifts its alignment slightly from one section to the next. An identical unit is repeated and light is scattered from the spaces between them. You can consider each unit independently, or look at them all together and see something different. The changing seasons of the natural scenery also become a part of that layered whole. 

Model 
Peaked frame 

How does this project fit into contemporary architectural trends?

While both the exterior and interior environments are directly visible, they are also reflected on the surface of the water, creating a sensation of floating or of being inside an illusion. It’s a surreal space that almost makes you feel a little drunk. 

Dressing room 

What did you learn from this project? What will you take from it to future work? 

I sensed once again the magnificence, the gentleness, and also the severity of nature, which are wrapped up with the passing of time and seasons.

Although it is difficult to produce a single architectural solution that responds to these conditions, I hope to continue searching for designs that draw as close as possible to that essential truth.  

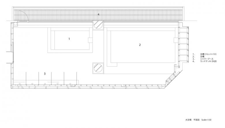
Floor plan 
Sectional drawing 

E-mail interview by Yuna Yagi (translated from Japanese) 

Yomogino Hot Spa Renovation
2011
Fukushima

Client
Yugengaisha Hanarenoyado Yomogino

Architects
Ryuichi Sasaki + Sasaki Architecture, Inc.
Tokyo

Design Principal
Ryuichi Sasaki

Project Team
Kei Kawai, Masahiro Tomita

Planning
TIOS Group Ryutaro Ishibashi

Advisor
Kiyoshi Iwabuchi

Contractor
OBA Company, Ltd.

Constr. Manager
OBA Company, Ltd / Katsuo Nagakubo, Yuichi Shinozuka

Stainless steel window frames
Heartland Engineering

Aluminum polishing
Shinko Stainless Kenma Co., ltd.

Heated glass
Monoha

Photos
Ryota Atarashi

Related articles 

Featured Project 

Atelier KI JUN KIM

House by the Wall

Other articles in this category