US Building of the Week

Youngmeyer Ranch Field Station

Hutton | 21. August 2023
Project: Youngmeyer Ranch Field Station, 2022
Location: Flint Hills, Kansas, USA
Client: Wichita State University | Youngmeyer Family Foundation
Architect: Hutton
  • Project Architect: Emily Taylor, AIA
  • Project Team: Matt Byrum, AIA; Josh Herrman, AIA
Structural Engineer: Professional Engineering Consultants (Ryan Taylor, PE)
MEP/FP Engineer: Professional Engineering Consultants (Kelby Ewert, PE; Kyle Pfannenstiel, PE)
Civil Engineer: Engineering Consultants (Vance Voth)
Interior Designer: Hutton (Mattie Lane)
Construction Manager: Hutton (Todd Wedel, design-builder)
Solar Power Design, Supply & Installation: King Solar (Mark Horst)
Site Area: 10 acres
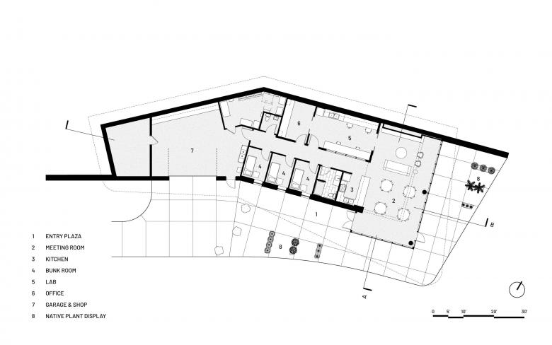
Building Area: 3,400 sf
Photo: Brad Feinknopf
Please provide an overview of the project.

A field research and retreat center in the Flint Hills demands both integration with the natural environment and the fortitude to withstand natural forces. The Youngmeyer Field Station — an entirely off-grid, 3,400-square-foot cast-in-place concrete structure in rural eastern Kansas — appears to grow out of a rocky bluff.

The reaching cantilevered concrete roof form tapers at the edge, all but disappearing when viewed from the closest neighboring property a few miles down the road. Four varieties of locally quarried limestone wrap the exterior (and sneak inside) in stratified bands, emulating the subterranean layers of sediment that sit below and peek out of the surrounding hillsides.

Photo: Brad Feinknopf
What are the main ideas and inspirations influencing the design of the building?

Form, materials, and interior details are inspired by the stratified stone underneath the Flint Hills and other natural marvels that can be observed from the building. The building’s exterior emulates a cutaway hillside, seemingly rising from the earth like the natural limestone crests that peek out of the ground.

The appearance and interior details of the Youngmeyer Ranch Field Station are inspired by the stratified stone underneath the surface of the Flint Hills. Finish materials are all natural tones, organized in patterns to evoke layers of sediment, heads of grain, or even the night sky.

Photo: Brad Feinknopf
How does the design respond to the unique qualities of the site?

To protect against wind and wildfire, the entire structure — including the roof — is cast-in-place concrete, clad with a palette of only durable, noncombustible exterior materials: concrete, limestone, and glazing systems. The form folds towards the eastern views of the sunrise and the water, opening the main gathering space to the panoramic scenery. Sloping walls and a thin tapered roof further the camouflaging effect.

“Being a good neighbor” in the Flint Hills requires minimizing any building’s impact on natural views, so keeping a clean roof line was a top priority. 

Photo: Brad Feinknopf
Was the project influenced by any trends in energy-conservation, construction, or design?

“Being a good neighbor” in the Flint Hills also means consuming resources responsibly. The field station is run entirely off-grid with no connections to public or rural utilities.

Primary power for the building is generated by an array of 30 photovoltaic panels on the roof and is stored in four Tesla batteries. All plumbing is served by well water, with 2,000 gallons of storage for general use and 450 additional gallons for the fire sprinkler system.

Because of the facility’s location in a remote, wildfire-prone area, the building is protected by an NFPA 13D fire sprinkler system, with stored water to support 30 minutes of run time — just longer than the travel time to the nearest rural fire department.

Photo: Brad Feinknopf
What products or materials have contributed to the success of the completed building?

Utilizing the same limestone quartz that exists in the area allows the building to use a sustainable, functional building material while maintaining the intended camouflage effect. Four varieties of natural limestone were used on the project, all harvested from Kansas quarries. One variety, Prairie Shell, includes many fossilized shells that tell the story of a prehistoric era. Visitors can take a scavenger hunt around the building for fossils preserved and on display in the walls.

Email interview conducted by John Hill.

Photo: Brad Feinknopf
Photo: Brad Feinknopf
Photo: Brad Feinknopf
Drawing: Hutton
Drawing: Hutton
Drawing: Hutton
Drawing: Hutton
Drawing: Hutton

Other articles in this category