A Curtain-like Facade in Ulm

John Hill, Thomas Geuder | 1. February 2016

PROJECT DETAILS

Project

Sports Hall for Kepler- and Humboldt-Gymnasiums
Ulm, Germany

Architect
h4a 
(Martin Gessert, Albrecht Randecker, Klaus Legner)
Stuttgart, Germany

Manufacturer
HD Wahl GmbH
Jettingen-Scheppach, Germany

Product
Surface two-component liquid coating in shades RAL 9016 und RAL 9007

Client
City of Ulm, Central Building Management

Facade Consultant
Gerhard Weber & Partner GmbH
Argenbühl, Germany

Competition
1st Prize, 2011

Start of Construction
2013

Completion
2015

Gross Floor Area
2,695 sm

Photo: Conné van d´Grachten / HD Wahl
Photo: Conné van d´Grachten / HD Wahl

The new building sits on Olgastraße, a boulevard that leads through the city center of Ulm to its train station, and which coincides with the border of what was once the city's remarkable weir system. Directly opposite one of the city's most iconic buildings, the Landgericht (District Court), the gymnasium was designed by h4a to follow Ulm's 2020 urban development strategy, which calls for strengthening Olgastraße's character through buildings and landscape. Serving the adjacent Kepler and Humboldt Gymnasium, the new corner building forms a gateway to the institution. 

Photo: Conné van d´Grachten / HD Wahl

The architects harmoniously fit the new building into its heterogeneous environment of opulent, Wilhelm-era buildings and formally simple houses from the 1960s and 1970s through its dimensions, color and materiality. Most overtly, they disguised the compact structure with a pattern of vertically arranged aluminum fins that are given a layer of visual interest through a slight twist. The 232 bands were coated by HD Wahl with a two-component liquid coating (HD Quality) in shades RAL 9016 and RAL 9007; this results in a brilliant white surface that appears almost tender and delicate. According to the architects at h4a, "The closer the visitor gets to the building, the more the facade opens and makes the events inside recognizable." This is particularly the case at night, when the illuminated interiors come shine through the glass openings.

Photo: Conné van d´Grachten / HD Wahl

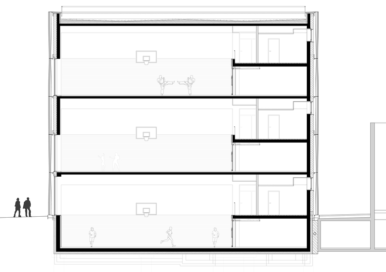
Inside the building are three full gyms, each with its own changing rooms, toilets, storage, mezzanine and color scheme. All three gyms are connected through a winding staircase that seems to float in its column-free, three-story space. The staircase doubles as an entrance foyer that is located on the north side of the building. Here, it connects to the existing school buildings at the lowest, below-grade level – the level of the former Ulm moat. 

Photo: Conné van d´Grachten / HD Wahl
Photo: Conné van d´Grachten / HD Wahl
Site Plan – The new building connects to the existing on the north (dashed lines) (Drawing: h4a)
Floor plans – The rectangular plan is approximately 34 x 23 meters (Drawing: h4a)
Cross Section – The building is approximately 18 meters tall (Drawing: h4a)

Published originally as "Drei übereinander" on German-Architects.  

PROJECT DETAILS

Project

Sports Hall for Kepler- and Humboldt-Gymnasiums
Ulm, Germany

Architect
h4a 
(Martin Gessert, Albrecht Randecker, Klaus Legner)
Stuttgart, Germany

Manufacturer
HD Wahl GmbH
Jettingen-Scheppach, Germany

Product
Surface two-component liquid coating in shades RAL 9016 und RAL 9007

Client
City of Ulm, Central Building Management

Facade Consultant
Gerhard Weber & Partner GmbH
Argenbühl, Germany

Competition
1st Prize, 2011

Start of Construction
2013

Completion
2015

Gross Floor Area
2,695 sm

Other articles in this category