The Coded Facade
The facade of SEHW Architektur's design for the Fraunhofer Institute for Secure Information Technology (SIT) in Darmstadt, Germany, appears to form some kind of secret code, appropriate given the site's history.
The IBM 704, a large-scale, high-speed electronic calculator that was used by NASA, Bell Labs and other companies, was introduced in 1954. The machine could handle 40,000 instructions per second (a small fraction of the billions that modern computers can handle), making it the best computer at the time for complex math. One of them was gifted from IBM Germany to the "Deutsches Rechenzentrum" (German Data Center) in Darmstadt in 1963, housed in a two-story modern building devoted to scientific operation and computing technology.
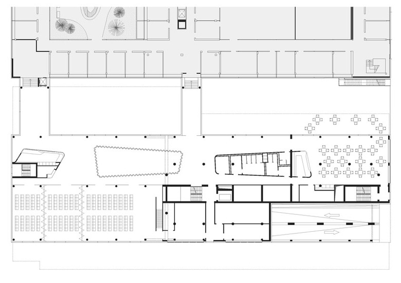
The plain yet elegant courtyard building now houses the Fraunhofer SIT, which tasked SEHW of Berlin with creating an addition that would not form a contrast to the existing but would exude a contemporary language. This task was not an easy one, considering that the 1960s building comprised a whole, an introverted world upon itself. But SEHW responded by creating a plinth upon which the six-story box articulated with the code-like facade rests. Further, the new building is set apart from the exiting and linked by enclosed walkways, a means of creating more outdoor space akin to the old courtyard.
The horizontality of the existing building and the addition's plinth is reflected in the facade of the white box's irregularly composed rows of windows and metal panels set in relief. The latter are articulated in three depths, formed into boxes from aluminum sheets that are mounted to concealed vertical supports. Werner Sobek Group from Stuttgart engineered the facade, which is made up of 2mm-thick, powder-coated aluminum white panels manufactured by Apliband/Aplimax and installed by Prudens GmbH. Though contemporary in their expression and construction, the facades recall the punch cards that were used from the 1950s until the 1980s by computers like the IBM 704.
Thinking of SEHW's aluminum facade as a code to be broken is apt, given that Fraunhofer SIT calls itself "the leading expert for IT Security." Just as computer code is encrypted so people can make secure transactions online, the facade resembles a pattern that can be broken only with the proper computation and effort. Yet as a counter to this analogy, the addition's ground floor is open, transparent. Glass walls overlook the new courtyard formed between old and new, an outdoor space that is an extension of the cafe and a place for the institute's 160 employees to congregate. Taken together with the coded facade, SEHW elevates the importance of transparency and communication, a clear statement in times of increasing uncertainty in the handling of data.









