SAOTA

CLIFTON 2A

SAOTA | 3. February 2015
Photo: Adam Letch

The site is positioned on the ridge below Lions Head with 270° views of the Atlantic Ocean, Camps Bay and the Twelve Apostles beyond.  It is an extreme corner site – a compact wedge of steep, predominately south-facing hillside with exposure to prevailing winds and its longest boundary on a busy road. Careful analysis of all site conditions largely informed the design.

Photo: Adam Letch

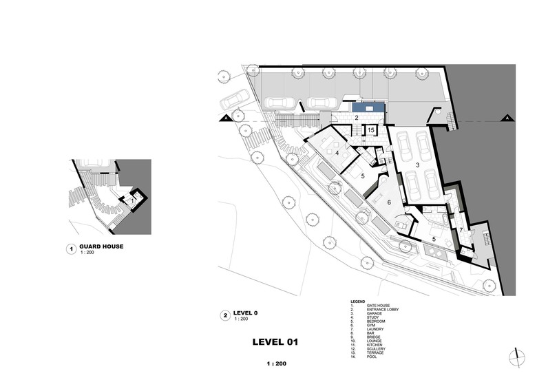
A key strategy to create a generous level for principal living rooms was to elevate the main level on a plinth comprising of guest bedrooms and secondary spaces such as the gym, study, garage and all plants.  This ground floor is partially set into the steep site thereby maximizing the living level and raising it above the noisy provincial road.  The first and second floors were then set back, fragmented and rotated to create a central but sheltered external terrace.  A glass bridge forms the link between the fragmented structures at the upper levels and permits north sunlight to shine between the bedroom wings and into the central areas on the south side of the house.

Photo: Adam Letch

By elevating the main living areas and with careful consideration of the landscaping around the ground floor - privacy from the road and noise reduction was achieved.  The ground floor rooms all have double glazing.
 
Generous overhangs, external sliding shutters and perforated steel and aluminium eaves assist with naturally shading the facades.  All doors and windows have performance glazing and are mostly full height which, together with the careful arrangement of internal spaces, ensured that the magnificent views are optimized for all rooms.

Landscaping was also a priority: Seven yellow wood trees soften the verge and lush vegetation conceals retaining structures; on the level above a more formal lawn helps relocate the living areas on their elevated plinth.

Photo: Adam Letch

On arrival one is led up delicate cantilevering concrete stairs alongside an immense off-shutter concrete wall which tapers dramatically towards its base - and thence into a triple volume  entrance foyer.  Here visitors are welcomed by a sculpture set into a water feature and, through full height glazing, glimpses of mountains beyond.  Monolithic stairs are suspended above and filter shafts of refracted morning light creating a sense of calm.  The study, gym, massage room and luxurious guest bedrooms are all situated on the ground floor behind vegetation, screens and double glazing considerately layered to provide privacy and peace.

Photo: Adam Letch

North from the main stairs is the entrainment room with its faceted weathered copper bar, natural stone tops and custom laser-cut aluminium screen behind presents a rich, detailed contemporary living space.  The family room, kitchen, dining and lounge are to the south and all flow seamlessly onto the centrally positioned external terrace which, though elevated, is sheltered by the carefully rotated bedroom wings above- whilst views out are vastly improved.  A blue mosaic rimflow pool runs the length of the terrace and brings sea and sky into the living spaces.
 
The family bedrooms are strategically positioned at the second floor with expansive views and opulent interiors.  All have their own dressing rooms, en-suite bathrooms and private balconies. 

Photo: Adam Letch

The main en-suite enjoys lush tranquillity of all white finishes complete with an outside shower and views onto the national park.  The linearity of the dressing room is accentuated by central skylights which scoop natural light into an internal space surrounded by full-height joinery.  The master bedroom is set forward as if propelled towards the view of the coast while clerestory glazing perfectly capture another view up to the cable station and Table Mountain.  A customised fireplace with a weathered Cor-ten conical flue and polished concrete plinth complete the luxurious live-in haven whose off-shutter concrete wall contrast with slick stained oak panelling and natural timber floors.

Photo: Adam Letch

PROJECT DETAILS

Project Name: CLIFTON 2A
Location: Clifton, Cape Town, South Africa
Architect: SAOTA
Project Team: Philip Olmesdahl, Tamaryn Fourie & Thaabe Ramabina
Interior Design: Janine Lazard Interiors
Completion Date: 2014
Site Area: 1120m²
Photographer: Adam Letch

Level 01 Floor Plan
Level 02 Floor Plan
Level 03 Floor Plan

Related articles 

Other articles in this category