World Building of the Week

W MISSION HQ

Behet Bondzio Lin Architekten + BCHO Architects | 29. September 2025
Photo: YuChen Chao Photography
What were the circumstances of receiving this commission?

Our client, Mrs. Choi, CEO and founder of W MISSION, loved our design for the building of the Association of the Northwest German Textile and Garment Industry. She flew all the way from Seoul to Germany with her family and part of the team to see the building in person and meet Martin, Roland, and Michael. After that trip she commissioned the design of their new HQ.

Photo: YuChen Chao Photography
What makes this project unique?

W MISSION is a material-based, objective design. Our approach emphasizes designing the process of making, rather than pursuing a subjective aesthetic agenda. We envision the building as a representation of collaborative dignity—the coming together of diverse Korean crafts. Every act of construction was left exposed, with even mistakes embraced as part of the aesthetic of making. It is both unpredictable and beautiful. This unpredictability is challenging, yet ultimately the most rewarding aspect.

Photo: YuChen Chao Photography
What is the inspiration behind the design of the building?

The departure for this design was the three main existential concepts that best represent the spiritual character of the client: sacredness, sanctuary, and community. The inspiration for it reflects on the ocean waves of the birthplace of our client in Jeju Island. It reflects on the material properties of textiles, to which our client has dedicated her entire life. The lightness of fabrics, their weaving patterns, undulation and enclosure as well as disclosure. Finally, it reflects on the architectural features that heighten the feeling of spirituality—the main one being the reversal of a traditional gothic high arched facade from the interior (of a cathedral) to the exterior urban street.

Photo: YuChen Chao Photography
How did the site impact the design?

Seongsu-dong is intuitive and spontaneous— a stark contrast to the time-bound, monotonous commercial districts found elsewhere in Seoul. Here, the vibrant colors of time unfold against the humble backdrop of emptied warehouses and factories, transformed through imaginative reuse. Porous and therefore deeply human, Seongsu-dong feels unpretentious, its bohemian spirit charming us with carefully woven layers of character.

The characteristics of the buildings—particularly the old brick warehouses and factories—are unmasked, without facades meant to tell stories. Their neutrality and generality are the key design elements of the warehouse typology, unlike other building types that rely on visual expression to convey their purpose. Because these structures were never intended to be “read,” they invite us to interpret them with an open heart. Our built environment is often defined by closure; yet here in Seongsu-dong, the unpretentious presence of these remarkable old warehouses offers us the opportunity to rediscover the value of openness—whether of space or of time.

Photo: YuChen Chao Photography

The new W MISSION building is designed to be part of this unmasked warehouse/storage building type.

To what extent did the owner, client, or future users of the building affect the design?
Our clients wanted a building that could not only represent their corporate identity but also serve as a spiritual sanctuary. W MISSION was built to protect and preserve the shared values of the textile and religious community.

Photo: Roland Halbe
Were there any significant changes from initial design to completion?

Throughout the project, we chose to foreground the process rather than conceal it, allowing each adjustment, trace, and imperfection to become part of the architectural narrative. The concrete pours and brick layering revealed not only craftsmanship but also the dialogue between design intention and material reality. Subtle shifts in the curvature, determined by the chosen brick type, redefined the wave’s rhythm and gave it a unique character. Even the limits of the curtain wall system—its structural capacity and the degree of protrusion it could support—shaped the building’s final form. In embracing these constraints, the architecture became a record of negotiations, dignifying mistakes and transforming them into moments of authenticity.

Photo: YuChen Chao Photography
How does the building relate to other projects in your office?

Stone drapery has a long history in the art of sculpture. The reproduction of drapery in stone, as studied during the design process of the Administrative Building for the Textilverband, has always embodied a captivating paradox: expressing ephemeral softness through a material of lasting hardness. In this project, the traditional brick masonry system revealed its remarkable capacity to depict and adapt to the desired undulating curves. For the Administrative Building, we designed with the gradient shades that emerge along these curves. For W MISSION, our goal is to achieve a similarly fortress-like presence through the curving brick wall.

Email interview conducted by John Hill.

Photo: YuChen Chao Photography
Photo: YuChen Chao Photography
Photo: YuChen Chao Photography
Photo: YuChen Chao Photography
Photo: YuChen Chao Photography
Project: W MISSION HQ, 2024
Location: Seongdong-gu, Seoul, Republic of Korea
Client: W MISSION
ArchitectBehet Bondzio Lin Architekten (Münster) + BCHO Architects (Seoul)
  • Design Principal: Yu-Han Michael Lin + Roland Bondzio
  • Project Team: Chen Yu Tang, María Eugenia Carrizosa, Rodrigo Reverte, Jihyun Lee, SeungJae Lee, Byounghyun Jeon
Structural Engineer: Eun Structural Engineering Co., Ltd.
MEP/FP Engineer: Smtec & Dongnam Mec + Sahmwon Mechanical Engineering Co., Ltd.
Landscape Architect: Landscape Design Studio KNL
Lighting Designer: Behet Bondzio Lin Architekten + Fuse Inc.
Interior Designer: Behet Bondzio Lin & Byoung Cho
Contractor: Janghak Engineering & Construction Co., Ltd.
Local Architects: HNSA Architects and Designers
Furniture Design: Joh Yun Seok
Acrylic Artist: Rahee Yoon
Graphic Designer: MYKC Studio
Site Area: 1,363.78 m2
Building Area: 9,483.14 m2
First Floor Plan
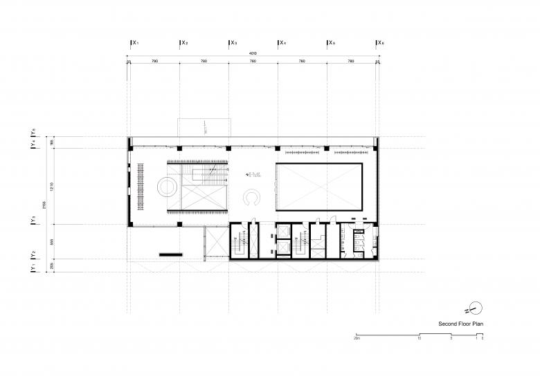
Second Floor Plan
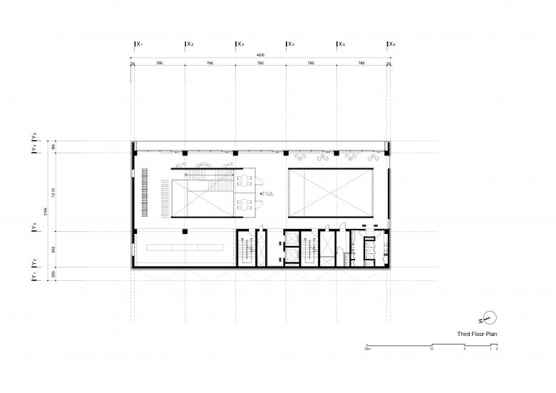
Third Floor Plan
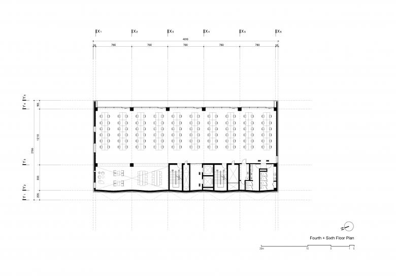
Fourth + Sixth Floor Plan
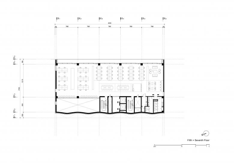
Fifth + Seventh Floor Plan
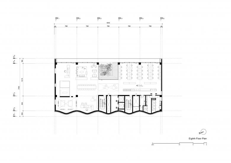
Eighth Floor Plan
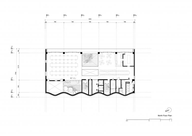
Ninth Floor Plan
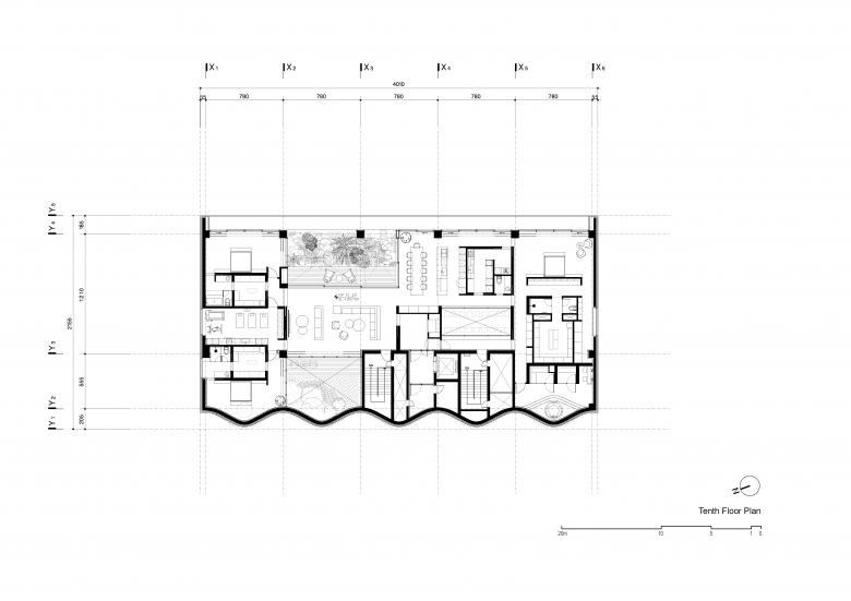
Tenth Floor Plan
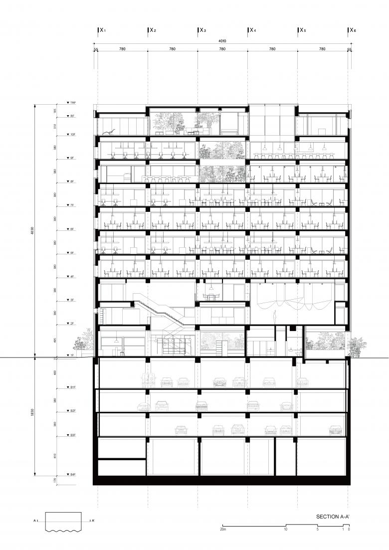
Section A-A
Section B-B
Axonometric
Facade Detail
Window Detail

Related articles 

Other articles in this category