World Building of the Week
A Catalyst for Renewal
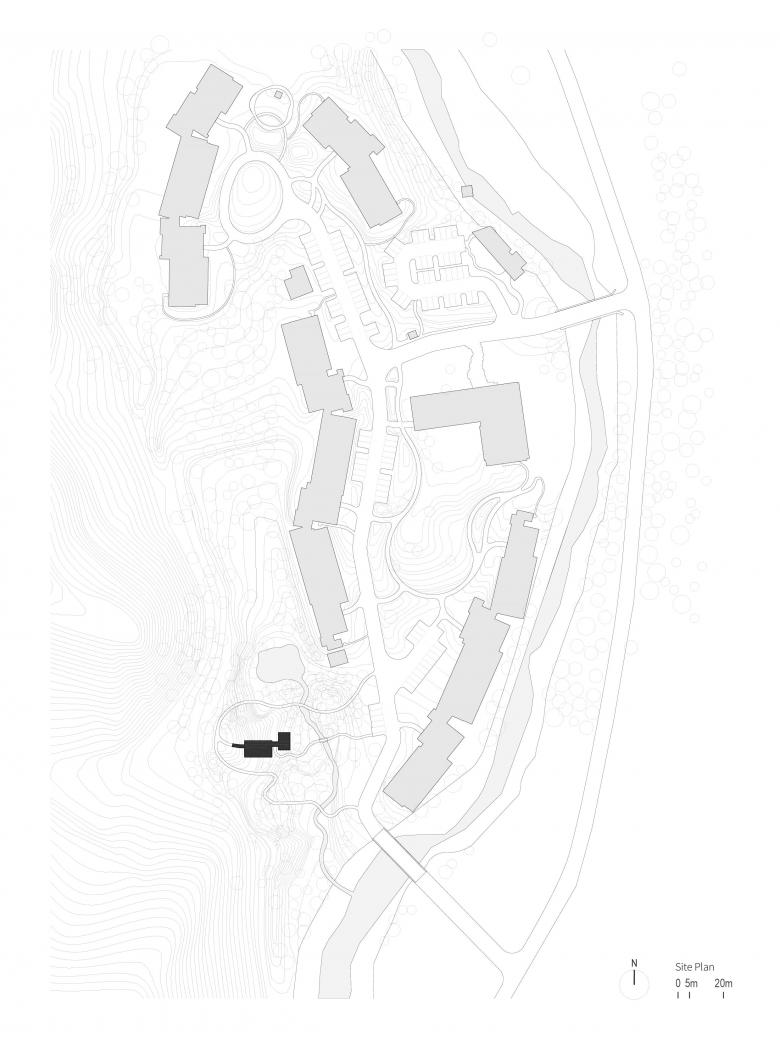
Vector Architects from Beijing has realized several special cultural buildings for the development company Aranya. The most recent, in Wulingshan 2.5 hours northeast of Beijing, is a small spa and bathhouse embedded in its immediate surroundings at a hot spring.
Aranya has been building cultural tourism resorts for the middle to upper-middle class in China and Japan since 2013, promising to look after stressed-out city dwellers in variously themed wellness centers. The project in the Wuling Mountains addresses the theme of hot springs as well as the connection to nature. Several dispersed building clusters have been inserted into the topography over the past few years.
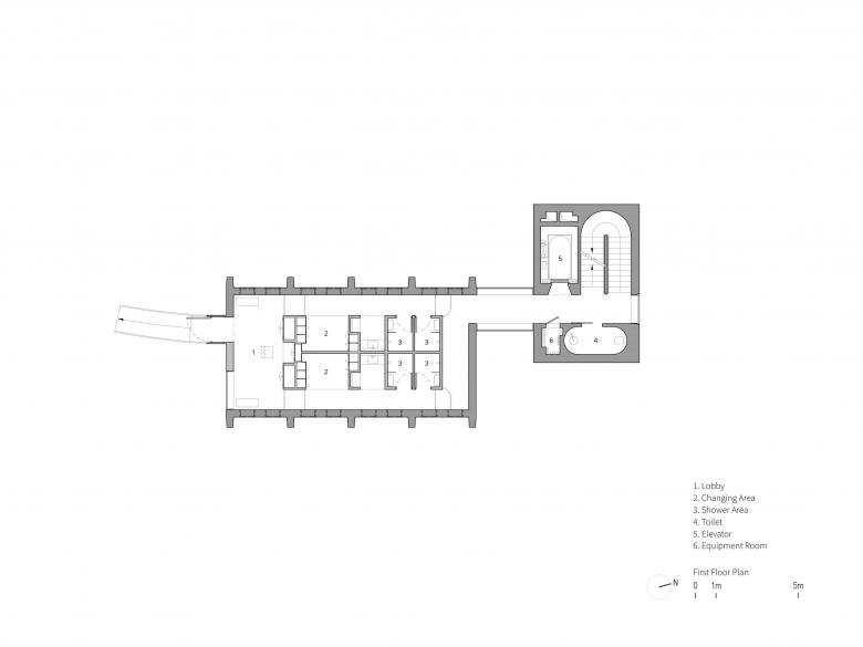
3 North elevation (c) Liu Guowei/Vector Architects.jpgThe bathhouse is positioned in a complex topographical situation, on a small slope between tall poplar trees and grass-covered rocky ground. The requirement to build on as little ground as possible resulted in the functions being stacked over each other in an unconventional tower. Additionally, the arrival level was left open to ensure that the natural contours of the landscape were untouched, adding to the vertical emphasis of the building volume.
The main ground floor, where the changing rooms with 20 cubicles are located, has relatively few openings to ensure privacy. Usually, only eight pre-registered people are admitted at any one time. The transparent middle level above this contains an open outward-looking lounge area where guests can relax. As this level is at the same height as the canopy of the surrounding poplars, it gives the feeling of being surrounded by trees. In summer, dense green foliage envelops the ‘glass box’, making visitors feel like they are in a fairytale land. The frequent fog in Wulingshan enhances this atmospheric quality.
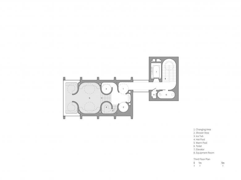
The water baths are located on the upper level, where vertical light shafts provide connections to the sky. Each of these eight cylindrical light shafts fulfils a specific function. Four have skylights above the water basins to give guests a view of the sky while bathing. These also serve as smoke vents in case of a fire. The other cylindrical shafts serve different purposes, such as an eight-meter-high shower that gives the feeling of standing in the rain, a cold plunge pool and an area for an ice pool.
The bathhouse is built with purpose-treated concrete. The material texture was intended to convey a ‘naturalness’ akin to the context of the surrounding cliffs. To this end, the exterior concrete was hewn by hand to make a surface texture reminiscent of rocks. In the interior, the concrete surface was partly hewn like the outside and partly polished, thereby utilizing the same material to create different surface qualities. As they pass through outside spaces, the columns were given the dimensions of the neighboring tree trunks to reinforce the sense of integration into the existing grove of trees.
The bathhouse is surrounded by dense trees on the east and south sides and is close to a rocky cliff face on the west, which significantly affects daylight conditions. Sunlight is neither abundant nor evenly distributed here. Especially in summer, the area is heavily shaded by the 20 to 30-metre-high poplars. Natural light decreases from the top of the building to the bottom, becoming weaker and weaker near the ground. This permanent twilight state enhances the calming effect and the feeling of being part of nature itself.
The bathhouse in Wulingshan follows Aryana’s concept of establishing a lifestyle brand with unusual, signature architecture that stands out from the general trend and gives it a special position in the market. This has enabled this property development company to successfully market their residential neighborhoods even during a general market downturn. With almost missionary fervor, aesthetic ‘culture’ is celebrated and staged as the bearer of a new way of life, allowing the commissioned architects a freedom that is very rarely offered elsewhere. The apparatus for the wellness bathhouse that Vector Architects has designed shows how the inherent potential of a specific place can be utilized in such a way that visitors can actually dream of new experiences with a feeling of atmospheric renewal; in this instance, among the foliage of the poplars that are commonplace in northern China.
Text by Eduard Kögel.
Location: Chengde Xinglong County Wulingshan Aranya, Hebei, China
Architecture/Interior/Landscape Design: Vector Architects
Principal Architect: Dong Gong
Project Architect: Zhao Liangliang, Tan Yeqian
Design Management: Zhang Han
Construction Management: Zhao Liangliang, Li Jinteng
Site Architect: Tan Yeqian, Zhang Zhiyi (Intern), Wang Weichen (Intern)
Design Team: Li Jiahui, Sun Yingyi, Zeng Zihao, Wang Feiyu, Zhang Liwen
LDI: Shanghai Urban Architectural Design Co., Ltd.
LDI Project Architect: Xiao Zunshi
LDI Architect: Chen Taian
Structural Design: Cheng Jun, Yang Yuwei, Peng Li
MEP Design: Shi Xinkai, Xu Dingding, Zhang Jie
Lighting Design: Toryo International Lighting Design Center
Facade Consultant: RFR Building Design Consulting (Shanghai) Co., Ltd
Landscape Design: Horizon & Atmosphere Landscape Co.
Spring Technical Consultant: DSL Technology Group Ltd.
Furniture Design: ziinlife
Signage Design: Beijing SEED Cultural Media Co., Ltd., Beijing Tushi Space Creative Design Co., Ltd.
Client: Aranya, Chengde
Construction Contractor: Chengde County Hongsheng Construction & Installation Engineering Co., Ltd., Beijing Wandanhui Building Decoration Engineering Group Co., Ltd
Structure System: Concrete Frame Structure
Materials: Fair-faced Concrete, Glass, Steel, Brass, Teakwood, Terrazzo, Stone
Building Area: 560 sqm (Ground Area: 360 sqm, Underground Area: 200 sqm)
Footprint Area: 131 sqm
Site Area: 600 sqm
Design Period: 2019.10–2021.02
Construction Period: 2021.03–2024.07
Related articles
-
The Three-Body Problem: Trapped in a Wave Sandwich
Eduard Kögel, Scenic Architecture Office | 13.04.2026 -
-
A Loop for the Arts: The Xiao Feng Art Museum in Hangzhou
Eduard Kögel, ZAO / Zhang Ke Architecture Office | 15.12.2025 -
-

















