US Building of the Week
ADU:RE-THINK
This ADU, or "Accessory Dwelling Unit," is the second such project featured as a US Building of the Week in 2022, evidence of the growing popularity of the typology and the increasing number of jurisdictions making them legal means of adding density to residential neighborhoods. The architects at Yeh-Yeh-Yeh answered a few questions about the ADU they built behind their own Los Angeles house.
Location: Los Angeles, California, USA
Client: Jooyoung Chung & En Jang
Architect: Yeh-Yeh-Yeh Architects
- Design Principal: Jooyoung Chung
- Project Manager: En Jang
Contractor: Juan Velasquez
Energy Consultant: Perfect Design
Building Area: 1,000 sf
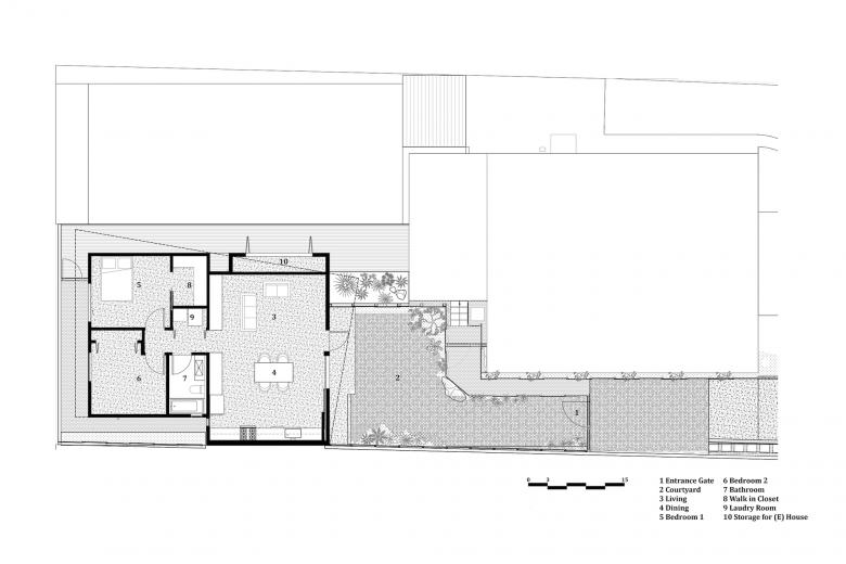
This project is an ADU (Accessory Dwelling Unit) at the architects’ own residence. The existing main house is located in the front and the project is a garage conversion plus addition in the backyard: a two-bedroom, one-bathroom rental unit.
ADU, as we understand from the term “Accessory Dwelling Unit,” implies an accessory house that belongs to the main house. Our initial design was driven by rethinking the value of ADU not as a secondary house, and discovering any overlooked aspects that might be interesting and effective in the design. There are many reasons people are building ADUs, but the intended use of this ADU is for a rental unit. Therefore, we constantly envisioned the future potential renters and their lifestyle when we designed the building.
Building shape and material are essential components of the design that we initiated. We tried to integrate the ideas with the functional and realistic aspects to make the project unique and distinguishable.
The volume, initiated from a minimum length of overhang by the code, is created into an angled geometry. It is attractive and functional. The exterior angled line of overhang continues an interior ceiling line to complete the rectangular shape. This creates soffit lights in the living/kitchen open space. The skylight in the hallway brings daylight into space with minimum wall windows for privacy and acts as a focal design feature.
The material palette of the interior is limited to white and light birch plywood to make the small space more expansive and recognizable by light and shadow and to give a canvas for furnishings.
Turfstone pavers laid in herringbone pattern generate natural edges for the landscape; the gravels contrast with the pattern. Functionally, the turfstone permeable pavers allow rainwater to be gradually filtered back into the soil naturally, resulting in the control and stabilization of soil erosion.
The location of ADU has a beneficial effect on the design. One of the typical locations of the garage in old houses of Los Angeles is the rear end of the property after a long driveway. The driveway is used as a parking space for the front house also as a walkway leading to the back house. We want to make this walkway for the renters to feel entering to their own place by designing a gravel path and gate with a front garden.
We applied a new building finish technique to make this hidden monolithic object grounded between two houses. Regarding the materials for the exterior, the old-time construction technique from Korea was experimented in the walls of the house: called “Jongseok Mijang,” it is a scraping process done a few hours later after the cement/gravel mixture is applied to the wall. The mock ups had been implemented before it was actually applied to the walls. The variation of gravel sizes and shapes, the cement color, and amount of sand affect the result of the finish. It is also affected by the weather. Its strong and brutal finish is visual when the scraped-out pocket gets a shadow effect in a metal-trimmed volume.
The finish also becomes energy efficient. The thermal mass that the walls provide to the building are able to absorb heat during the day and release it at night. This passive transfer smooths out heat transmission through the walls and limits the need for mechanical systems.
Email interview conducted by John Hill.













