Chris Pardo Design Elemental Architecture

ARRIVE Hotel

Chris Pardo Design Elemental Architecture | 3. May 2017
Aerial (Photo: © Chris Miller)

Location: Palm Springs, California
Client: Palm Grove Group, LLC
Architect: Chris Pardo Design Elemental Architecture
Design Principal: Chris Pardo
Project Architect: Steve Turley & Peter Greaves
Project Manager: Nate Allen
Project Team: Shane Herzer, Derry Betts, Jason Schmidt, Forrest Agnew, Robin Abrahams
Structural Engineer: ZCS Engineering
Landscape Architect: Elena Peterson
Lighting Designer: Studio Lux – Christopher Thompson
Interior Designer: Chris Pardo
Contractor: DW Johnston Construction
Construction Manager: Martin Sterud
Custom Tile: Modern Home
Custom Steel Planters, Landscape Furniture: Dahlstrom Designs
Site Area: 1.28 acres
Building Area: 168,00 sf of conditioned space

Pool area (Photo: © Jaime Kowal)

Please provide an overview of the project.
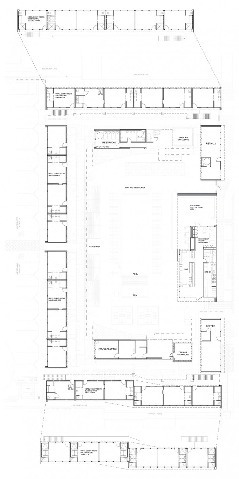
ARRIVE consists of a 32-room boutique hotel, Reservoir restaurant (seating 120), Ice Cream & Shop(pe) (an ice cream store and retail boutique), and Customs coffee shop. The hotel is designed around a central community space including a pool, fire pits, cabanas, ping pong tables, bocce ball court and associated recreational activities.

Front (Photo: © Jaime Kowal)

What are the main ideas and inspirations influencing the design of the building?
The ARRIVE brand is to fully engage place, neighborhoods and community. This is evident in the mid-century modern building forms and use of textured materials, referencing Palm Springs’ architectural heritage while still developing a modern language of its own.

Reservoir (Photo: © Jaime Kowal)

How does the design respond to the unique qualities of the site?
The site is positioned on the main commercial street in Palm Springs but also straddles a residential neighborhood, so careful consideration was made to maintain a public open façade but also be in scale with the residential properties. The buildings were massed to maintain a strong connection with the existing urban fabric.

Pool (Photo: © Chris Miller)

How did the project change between the initial design stage and the completion of the building?
The project was conceived four years prior to being completed. During that time, the construction type changed from prefabricated (modular units) to stick built site construction. In addition, retail components/buildings were added to the site plan.

Reservoir (Photo: © Jaime Kowal)

Was the project influenced by any trends in energy-conservation, construction, or design?
The project was designed with energy efficiency and long-term durability as a driving force. The majority of decisions were guided by the harsh environment and extreme heat in Palm Springs, shading, window placement and landscaping.

Email interview conducted by John Hill.

Pool area (Photo: © Chris Miller)
Floor plans (Drawing: Chris Pardo Design Elemental Architecture)
Studio + Patio room (Drawing: Chris Pardo Design Elemental Architecture)

Related articles 

Other articles in this category