Studio B Architecture + Interiors
Aspen Community School
The Aspen Community School is one of two charter schools in Colorado's Roaring Fork Valley run by Compass, a nonprofit educational organization that has served the area since 1970. Located on a beautiful site in Woody Creek, the K-8 school recently expanded, adding a new classroom building and gymnasium designed by Aspen's Studio B Architecture + Interiors. Although modern designs, the buildings nevertheless fit well with the natural surroundings and the earlier school buildings. The architects at Studio B answered a few questions about the project.
Location: Woody Creek, Colorado
Client: Aspen Community School
Architect: Studio B Architecture + Interiors
Architect of Record: Cuningham Group
Structural Engineer: KL&A, Inc.
MEP/FP Engineer: BG Buildingworks
Landscape Architect: Shannon Murphy
Lighting Designer: BG Buildingworks
Interior Designer: Cuningham Group
Contractor: Evans Chaffe Construction Group
Construction Manager: Chris Penney
Building Area: 28,000 sf (5 buildings + sitework)
What were the circumstances of receiving the commission for this project?
A response to an RFP (Request for Proposals) by the Aspen Community School. Studio B followed an interview process and got short-listed.
Please provide an overview of the project.
The Aspen Community School offers a unique and stimulating K-8 learning environment surrounded by the mountain landscape of Woody Creek, Colorado. Established as a charter school in 1970, ACS provides its students with an education focused on a diversity of experiences, freedom of expression and trust in a child’s intrinsic curiosity.
The elevated rural site provides expansive views of the Roaring Fork Valley and opportunities for abundant daylight and connectivity to the surrounding natural environment. Since 1972, ACS has occupied several small-scale wood framed and log buildings that created many challenges to the school’s evolving needs. A new campus master plan supports the school’s educational mission by providing a new 13,500 SF K-8 classroom building, a new 6,500 SF gymnasium, and the renovation of other existing school structures.
Site and landscaping improvements result in safer vehicular/pedestrian circulation, enhanced play areas and a reinforced sense of campus and community. Substantial site utility upgrades to this rural site have also been realized.
Studio B Architecture + Interiors (the Design Architect) and Cuningham Group (Architect-of-Record) directed a collaborative process to achieve campus facilities that support innovative learning, that reinforce the cultural and historical identity of the school, and that fit comfortably in the natural landscape of the existing school campus.
The school administration, teachers, students, parents and the community at large were instrumental in the design process that included many small-group worksessions, regular Design Advisory Group meetings, and frequent public presentations. The result of this consensus-building effort is a design that achieves the vision and goals of the school, satisfies the desired current and future programmatic requirements and is truly the product of all community members that participated.
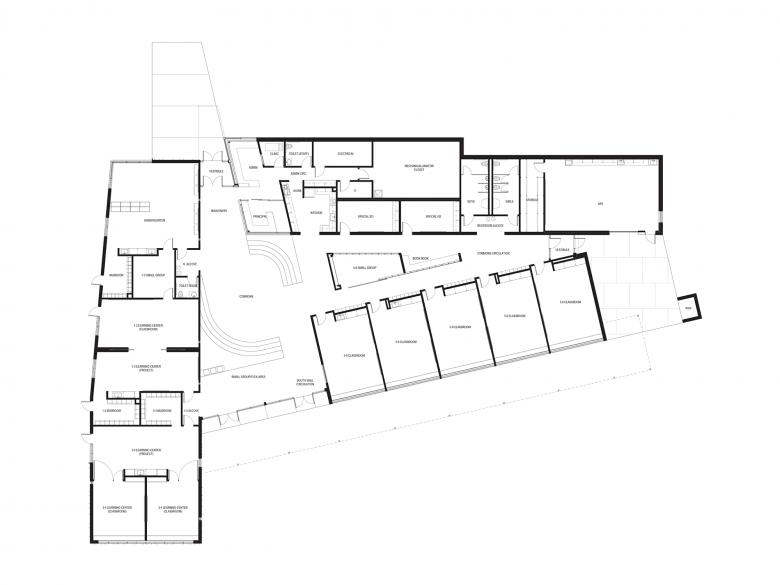
The classroom facility is organized around a central gathering space that is the heart of the school in which all-school meetings, student performances and presentations, and other spontaneous group activities can take place. Classrooms, group study rooms and administrative activities are in three volumes that surround and define the central space.
What are the main ideas and inspirations influencing the design of the building?
- A central gathering space (heart of the school) to hold all school meetings and other spontaneous group activities, promoting interaction and mentorship among all students from first to eight graders.
- A palette of modest and durable materials.
- To support innovative learning, reinforce the cultural and historical identity of the school, and fit the school comfortably in the natural landscape of the existing school campus.
How does the design respond to the unique qualities of the site?
First, the building is partially buried, hidden from main highway, blending with the landscape. Second, big windows celebrate spectacular views and allow natural light into the space.
How did the project change between the initial design stage and the completion of the building?
A couple items were deleted from the initial design due to financial concerns: an organizing datum-wall of rammed earth; and an expansive green roof.
Was the project influenced by any trends in energy-conservation, construction, or design?
Sustainable features include:
- Low maintenance materials: red western cedar, weathered steel, fiber cement board
- Solar panels
- Partially buried building to keep it cool
- High efficiency windows
- Cupolas allow natural light in and draft air
- Use of energy modeling throughout the design process
- Building is LEED Gold.
What products or materials have contributed to the success of the completed building?
A palette of modest but durable materials (rusted metal shingles, fiber cement board and western red cedar siding) were selected for their compatibility with the existing campus context and for low maintenance. Kalwall skylights and clerestory windows maximize daylighting throughout the building.
Email interview conducted by John Hill.
Related articles
-
-
The Three-Body Problem: Trapped in a Wave Sandwich
Eduard Kögel, Scenic Architecture Office | 13.04.2026 -
-











