U.S. Building of the Week
Bienville House
This two-unit house designed by an architect for his family features a generous indoor/outdoor living space removed from the street. Contemporary in materials and architectural expression, the house nevertheless looks to historic houses in New Orleans for inspiration. Architect Nathan Fell answered a few questions about Bienville House.
Location: New Orleans, Louisiana, USA
Client: Fell Family
Architect: Nathan Fell Architecture
- Design Principal: Nathan Fell
Contractor: Deltatech Construction
Construction Manager: Sandra Tomasetti
Site Area: 3,360 sf
Building Area: 4,250 sf
Photography: Justin Cordova Photography
This project was started by architect Nathan Fell for his family. It was designed after work and on the weekends.
Logistics of this New Orleans-based working family (homeowners) required them to be home indoors for long periods, which in addition to work and school became disruptive to their wellness. They began to contemplate, like many families, whether a move to the suburbs — exchanging proximity to great citywide amenities for a larger backyard to increase outdoor access — was necessary. Rather than moving far away, they decided to build a new house that would reconsider the limitations of indoor home life on a small urban lot.
The organizing principle of the project was to create as much outdoor access from communal areas as possible. Communal areas also needed to remain spacious despite the necessity for density due to lot size and additional project needs.
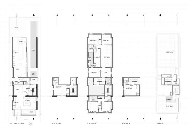
Built on a 32’x105’ site, the rear unit is 4-bedroom/3.5-bath and the front is 3-bedroom/2.5-bath. The layout orients the front unit as its public face, actively engaging travelers with the city, while mirroring the position of the primary unit to connect with the rear yard favoring seclusion.
The design is patterned after historic 2-to-4-story urban townhomes, where the first floor is most transparent and open to the street. The forms are configured to convey a transparency of internal use. The upper floors contain private spaces wrapped by exterior surfaces forming an echelon of suspended cubic forms legible from multiple viewpoints including the underside. Exterior cladding wraps as a ceiling to materially connect the outside within. The cubic forms are supported by a series of exposed concrete walls with a gap between to visually render each form distinctly. The static forms juxtapose animated interior space as a frame to reinforcing the transparency of the first floor interior.
The site is urban, located in a mixed commercial and residential zoning district within the Mid-City neighborhood of New Orleans. Like many burgeoning areas of New Orleans, there is a lot of new development near the project site that seeks to maximize density. While the design itself looks to the past to establish patterns, it also maximizes height and density as a projection of what the neighborhood will become. Seeing a neighborhood for what it will be is a very non-New Orleans way of thinking: During construction of the home both a three story 20-unit condo building and a four story, 300+ unit multi-family project were completed across the street.
There were a lot of changes that fortunately were small enough to not impact the core concept. Although it is a small residential project, many of the materials and ideas are more typical to larger commercial projects. Accessing these types of materials in such small quantities is more problematic in New Orleans that in larger cities. Options were more limited than expected when it came to how the cladding panels were fastened, and the concrete floors were compromised in order to expedite the construction. However, the sliding glass walls in both units ended up better than originally conceived, with larger panel sizes than expected.
The big driver here was to use the thermal mass of the concrete walls to stabilize indoor temperature swings. Using the Thermomass system, insulation is sandwiched between a thinner outside segment of wall that is clipped to the thicker inside structural wall using plastic ties to reduce thermal transfer. The wall has continuous insulation and a larger section of concrete forms a thermal mass facing the interior of the space. The downstairs has a separate mechanical system operating its (relatively small) area, so the more vast upstairs space can maintain a stable temperature when doors are open on the first floor.
The fiber cement panels were successful in helping the upper mass of the building to read as a monolithic piece. The panels are large, and were cut in a way to minimize the amount of waste. The fact that they can be installed vertically and horizontally provided a weight to the mass that helps the 1st floor feel more open and transparent. The Thermomass wall system was crucial to allowing for the concrete walls to be exposed within interior spaces.
Email interview conducted by John Hill.
- Cast in Place Concrete Walls: Thermomass, System CIB
- Exterior Cladding: American Fiber Cement, Cembrit Patina Board-Flint
- Sliding Glass Walls: LaCantina, Aluminum
- Linear Downlights: Lumenwerx, VIA 4 LED
- LED Strip Lighting: Environmental Lights, Waterproof Performance 2835













