I-Kanda Architects
Cabin on a Rock
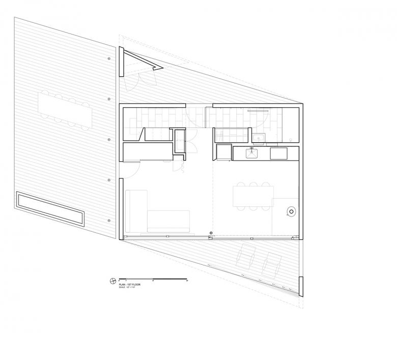
This cabin, perched on a granite outcropping in New Hampshire's White Mountains, is shaped by the landscape. A faceted form bends to the terrain and distant views, and conceals a simple rectangular plan that later accommodates the client's family of four on their weekend outings. I-Kanda Architects answered a few questions about this small gem.
Project: Cabin on a Rock, 2017
Location: White Mountains Region, New Hampshire, USA
Client: Private
Architect: I-Kanda Architects, Charlestown, MA
Design Principal: Isamu Kanda
Project Team: Chris Sledziona, Steven Hien, Sangsuri Chun
Structural Engineer: Fire Tower Engineered Timber
General Contractors: Nest Woodworking (Phase 1), Latulippe Carpentry (Phase 2)
Prefabricated Framing Elements: Bensonwood
Windows & Doors: Architectural Openings
Metal Panel Roof & Siding: Latulippe Carpentry
Stainless Steel Railings & Kitchen Counter: Seidman Brothers
Site Area: 9.5 acres
Building Area: 900 sf (85m2)
Please provide an overview of the project.
For the owner of Q-Drinks, a company specializing in making superior cocktail sodas out of only authentic ingredients, it was imperative that the design for a weekend retreat nestled in the mountains of New Hampshire be equally authentic.
The White Mountains are amongst the most rugged in New England, with granite outcroppings populating the range. While the site, selected on one of several scouting hikes, was seemingly treacherous and unbuildable, the design solution by I-Kanda Architects proves this untrue.
How does the design respond to the unique qualities of the site?
The 900 square-foot cabin perches on one such piece of granite, projecting precariously over a steep drop-off to afford dramatic eastern views across the valley below. Instead of leveling the granite ledge, the topography is embraced; the structure is lifted on 9 hand-poured concrete footings – a system selected in order to tread lightly on the sloped site. Working with Fire Tower Engineered Timber and Bensonwood, all wood framing members were engineered and CNC-cut before being delivered to site wrapped, labeled, and ready for assembly, thus shortening construction time and reducing site disturbance. Once construction was complete, minimal trees were cleared – just enough to provide specific views of the prominent peaks through a 24-ft wide sliding glass window-wall.
How did the project change between the initial design stage and the completion of the building?
It was not only the site that would prove to be complicated; the cabin design was initially conceived as a rugged weekend getaway for two. However, during the course of the design process, the two grew to become a family of three, then four. The growing needs of the young family required maximizing the footprint while responding to the strictly limited availability of granite on which to build.
The faceted geometry of the cabin reflects this evolution – a cantilevering form that is both elemental yet appears to be in constant transformation depending on one’s vantage point. It is shaped both by its surroundings and by its occupants, making a lasting connection between what is there and what is to come.
Was the project influenced by any trends in energy-conservation, construction, or design?
In the initial discussions with Bensonwood, we considered treating this cabin as a prototype for future mass production. Hence our design process was empowered by prefabrication technologies and techniques, allowing a freedom to explore complex geometries, renouncing the often heard limitation of a design being too complicated or expensive to build.
With this project, we were able to do more for the cost of conventional construction – an alternative take on the conception that prefab simply allows one to do the same for cheaper. Enhanced by skewed geometries and bold angles, the end product is truly customized, both for the client and for a uniquely precarious site.
What products or materials have contributed to the success of the completed building?
This project was site-built, but all framing was prefabricated. The successful execution of this project is thanks to the crucial team members listed below:
- Fire Tower Engineered Timber: Computer-modeling and calculations of all structural elements, including the decks that cantilever over the drop-off.
- Bensonwood: Prefabrication and delivery of the entire framing package.
- Architectural Openings: Fabrication and installation of all windows and doors, including the custom 24-foot wide, sliding window-wall.
Email interview conducted by John Hill.










