US Building of the Week

Chicago Park District Headquarters

Ulf Meyer, John Ronan Architects | 18. September 2023
Photo: James Florio

In other cities, the park district may be just another city department, but in Chicago it is a central part of the city’s identity. The Chicago Park District runs hundreds of parks in the city, Lincoln Park being the largest and most famous among them. The parks include grass and trees but also beaches, pools, sports facilities, even zoos. Most importantly, the Park District keeps Chicago’s 26 miles of beaches and open space along Lake Michigan shore free of private buildings and maintains this impressive urban open space. 

The round Park District building within the new park (Photo: James Florio)

The Park District was headquartered at the Time-Life Building in the depths of the city’s “concrete jungle,” far from any of the major urban parks that serve the recreational purposes of the city’s residents. The Cor-ten steel-and-glass high-rise building, designed by Harry Weese in the late 1960s, was rust-red rather than bucolic-green.

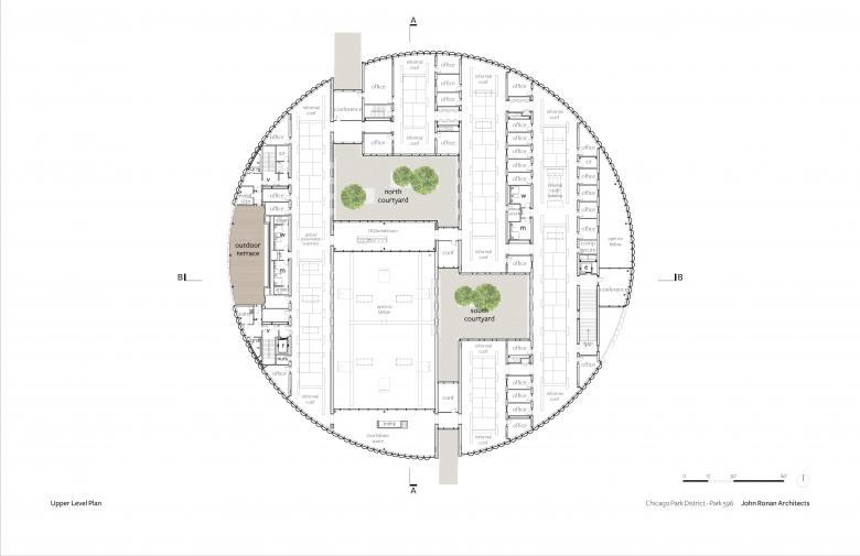
Fifty years later, John Ronan Architects was asked to design the new Chicago Park District Headquarters on a new 17-acre park in the park-deprived Brighton Park neighborhood on the city’s Southwest Side. The site is not too far from Midway Airport and there is a near-constant stream of aircraft over the new building, as well as noise from the “El” to the south. Yet, Ronan’s building acts like an urban anchor. This is partly because of its circular plan and party because of the homogenous palette of colors. The round building acts like this because there is no urban context worth relating to nearby. 

The approach to the zig-zag path that cuts the building in two (Photo: James Florio)

The 200 employees of the Park District share their new headquarters with the general public. Roughly half of the building is a field house that connects to the sports grounds in the new park outside of the new building. In addition to two turf fields and a playground outside, the public has access to indoor basketball courts, a fitness center, and club rooms inside the building. 

Cutting the two-story building in half is a zig-zag path that widens to form two courtyards in the middle of the floor plan. Without them, the 256-foot-diameter building would have been far too deep. The administrative areas combine smaller offices with larger groups of desks organized into long bars. The views towards the park enhance the work environment and also lets staff focus on the subject of their work. From the break room, employees can watch people in the gym through a glazed wall. Their terrace overlooks the park soccer fields, open lawns, playground, and a water feature, all designed by Site Design Group.

One of the two courtyards along the path in the middle of the building (Photo: James Florio)

Not only is the location and standalone building new for the Park District. Ronan also chose materials and shapes that mark the beginning of a new era for the administration. While the former brownfield site that the building stands upon has turned green, the building opts for brownish-bronze colors. Convex metal screens give the facades depth and shade the building. The metal is combined with salvaged Chicago brick. 

While the lattice screens are made of anodized aluminum, the load-bearing walls are made of concrete masonry and faced with bricks that include reclaimed Chicago common brick. An irregular pattern of protruding bricks structures the facades and adds a nice shadow play to the brick surfaces. Metal bar joists span between the walls inside, and hallways have terrazzo floors.

Fitness room next to one of the courtyards (Photo: James Florio)

Other buildings designed by John Ronan, such as the Poetry Foundation and the Ed Kaplan Family Institute for Innovation and Tech Entrepreneurship on the Illinois Tech campus, are more orthogonal, but with the new Chicago Park District Headquarters Ronan proves his versatility with other geometries. Still, all of these have similarly scaled courtyards and stand out in their urban contexts. For the Park District, it is the play of light and shadow that makes this building really special.

The Park District HQ lobby (Photo: James Florio)
Park District office space and the path cutting through the building (Photo: James Florio)
Park District break room overlooking a courtyard and the gymnasium (Photo: James Florio)

See also: “The Poetic and the Pragmatic,” Ulf Meyer's 2022 interview with John Ronan

Gymnasium and bleachers (Photo: James Florio)
Club rooms overlooking the park (Photo: James Florio)
Park District office overlooking the park through the lattice mesh (Photo: James Florio)
Project: Chicago Park District Headquarters, 2023
Location: Chicago, Illinois, USA
Client: Chicago Park District
Architect: John Ronan Architects
  • Design Principal: John Ronan
  • Project Architect: Marcin Szef
  • Project Team: John Kerner, Eric Cheng, Maranda Gerga, Sam Park, Phil Syvertsen
Structural Engineer: Thornton Tomasetti
MEP/FP Engineer: dbHMS
Landscape Architect: Site Design Group
Lighting Designer: Charter Sills
Contractor: F.H. Paschen, ALL Construction Group
Civil Engineer: Terra Engineering
Site Area: 17 acres
Building Area: 78,000 sf
Site Plan (Drawing: John Ronan Architects)
Ground Level Plan (Drawing: John Ronan Architects)
Upper Level Plan (Drawing: John Ronan Architects)
Section A-A (Drawing: John Ronan Architects)
Section B-B (Drawing: John Ronan Architects)

Related articles 

Other articles in this category