US Building of the Week

Covenant House

FXCollaborative | 25. July 2022
Photo: Chris Cooper
Project: Covenant House, 2022
Location: 460 West 41st Street, New York City
Client: Covenant House International (Client Representative: Angela M. Howard)
Architect: FXCollaborative
  • Leadership: Heidi Blau, FAIA (Partner-in-Charge), Dan Kaplan, FAIA (Masterplanning Partner), Nicholas Garrison, FAIA (Design Partner), Ann Rolland, FAIA (Program Advisor)
  • Project Architect: Eric Van Der Sluys
  • Project Manager: Cristina Rodriguez
  • Project Team: Alp Bozkurt, Frank Lindemann, Mercedes Armillas, Jodie Quinter, Leslie Infanger, Justyna Murowiec-Chun, Daniel Chilcote, Korantemaa Larbi, Jaehee Lee
Structural Engineer: DeSimone Consulting Engineers
MEP/FP Engineer: Cosentini Associates
Landscape Architect: Starr Whitehouse Landscape Architects
Lighting Designer: Horton Lees Brogden Lighting
Interior Designer: FXCollaborative
Development Partner: The Gotham Organization
Acoustics: Longman Lindsey
Food Service: Cini Little International Inc.
Code: Design 2147 Ltd
Vertical Transportation: VDA
Civil, Environmental, and Geotechnical: Langan 
Exterior Envelope: Frank Seta & Associates 
Accessibility: Code Consultants, Inc.
Commissioning: Loring Consulting Engineers, Inc.
Fire Alarm: Walter T. Gorman & Associates
Health Clinic Expeditor: Cicero Consulting Associates 
Audio Visual Consultant: Sage Audio Visual Technology 
Construction Manager: Monadnock Construction (David Schloss, Yongjie Jin, Greg Bausco, Anthony O’Haire, Thomas Barker, Bobby Hempfling, John Bissell, Billy Stila)
Building Area: 80,000 sf
 
See bottom for Important Manufacturers / Products.
Photo: Chris Cooper
What were the circumstances of receiving the commission for this project?

For decades, Covenant House New York was headquartered in the shadow of the Port Authority Bus Terminal. While the 3-building campus (a former library, juvenile detention center and hotel) provided considerable physical space, the makeshift campus was not properly designed to support the 50-year-old not-for-profit’s mission of providing residential services to vulnerable homeless, runaway, and exploited youth.

When the far west side of Manhattan was transformed by the Hudson Yard development, the land value of the Covenant House New York campus increased significantly. FXCollaborative was retained in 2013 to review the development rights for the site and to envision a new home for Covenant House that would support their mission. The recommendation was that that they remain on their underdeveloped site, but in a new facility that would meet their current and future needs. The rest of the site development would be sold for other uses.

Photo: Chris Cooper

In 2015, Covenant House focused on creating a new building on the site with FXCollaborative to provide shelter and services for 120 vulnerable youth. In 2016, real estate developer Gotham Organization negotiated to buy part of Covenant House’s property to build a mixed-use tower on 10th Avenue. As part of the deal, Gotham agreed to build a new facility for the non-profit. This same co-development arrangement with for profit/not-for-profit partners, each seeking to maximize their land value, has been the generator for many of our recent projects in New York City.

The new building balances the dualities at the core of Covenant House’s mission: to be open and welcoming yet safe and secure; to celebrate community and never forget the individual; to stand out yet blend in; and to serve a specific purpose yet be flexible enough to allow for change. The building shell is expressed with strong materials of brick, metal, and glass, while inside, elements of wood and fabric create warmth and comfort. The design creates a place where youth feel at ease, and the building is at home in its rapidly changing West Side context.

Photo: Chris Cooper
Please provide an overview of the project.

Covenant House New York’s elegant, compact 80,000 square foot building (approximately 54,400 square feet above grade and 26,100 square feet below) contains everything the at-risk young adults need to transform their lives: a safe and respectful place to live, access to legal, physical, and mental health services along with educational and spiritual support.

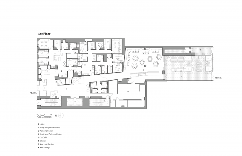
The main lobby welcomes all users into the building, providing a singular identity and a central security point. A Welcome Center, a Wellness Center and the CovCafé are all located on the first floor. The Café opens directly to a landscaped courtyard space that is a private gathering space for relaxation or engagement.

Photo: Adam Kane Macchia

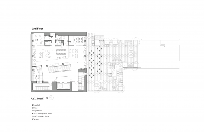
At the top of a gracious entry stair, inspired by a townhome entry stoop, Pride Hall reveals itself and extends out to a large, landscaped terrace. The Hall is light filled throughout the day with large windows facing both North and South and a variety of seating types and groupings. An Art room and Hope room are provided for youth expression and contemplation.

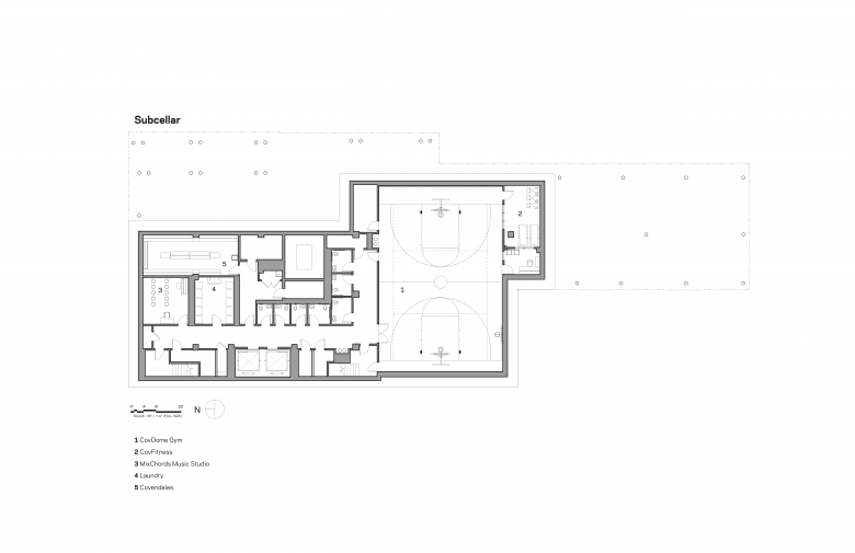
A gymnasium and small workout room occupy the lowest level of the building along with a music room where the youth can explore instruments and digital music production. Classrooms and meeting spaces occupy the third and fourth floors with the administrative offices on the fifth floor.

The lower five floors of the building contain the vital services, 60 residential rooms are situated on the top six floors. Throughout the building there are individual bathroom and bathing facilities to accommodate the gender identity of all who may come to Covenant House. This detail embodies the core values of Covenant House.

Photo: Adam Kane Macchia
What are the main ideas and inspirations influencing the design of the building?

The building is designed around themes that center on helping to heal the at-risk young adults it serves — welcome, safety, and respect. It also provides an oasis of health and calm in contrast to New York City’s streets.

Set amidst the gritty on-ramps of the Port Authority Bus Terminal as well as the new gleaming skyscrapers of Hudson Yards, the building is focused on nature and its power to heal and provide respite from its dense urban surroundings. Warm-toned, handcrafted brick is paired with bronze metal windows and accent paneling consciously eschewing its glitzy neighbors and replacing imagery of “institution” with that of “home,” welcome, and humanity. Inside, extensive use of wood and natural materials extends welcome and comfort. On the ground floor, an elegantly appointed café connects directly to a quiet courtyard patio, defying institutional norms.

The project’s defining gesture is the wide wood stair leading from the street entrance up to the building’s living room, which occupies the entire second floor and is awash in daylight. Pride Hall features hardwood floors, ceilings, and screen walls, and opens directly to a lushly planted terrace. Lifted above the street, this safe and peaceful garden space is the heart of the project and the literal and symbolic oasis around which it is designed: nature replacing pavement.

Photo: Adam Kane Macchia
How does the design respond to the unique qualities of the site?

In addition to the deliberate emphasis on nature and natural material choices made in response to its site and the project’s mission, the design is composed to add vitality and continuity to the public realm, and spaces of repose and calm for its users.

The building’s main facade on the north side sets back after five floors, providing street wall continuity for the block and creating ample views, daylight, and privacy for the residential floors above. To the south, a private courtyard patio connects to the street, and is overlooked by the landscaped terrace on the second floor. Sunlight floods both spaces. Above, the residential spaces are afforded sunny views over the landscaped spaces to the city beyond. Taking advantage of zoning allowances, the building extends several floors below grade to accommodate featured gymnasium and music spaces which do not require natural light.

Photo: Adam Kane Macchia
How did the project change between the initial design stage and the completion of the building?

Initially, Covenant House New York looked to develop a larger building though a partnership with the City of New York by including an adjacent site in the deal. When this concept proved to be too burdensome to all parties, Covenant House defined a more manageable path. They would develop the largest building they could on their own site that served the core of their mission and move some of their residents and their unique programs and services to other properties around the city. The initial building, conceived of to serve 380 youth, was reduced to serve 120. By placing significant large spaces below grade, the building floor area was maximized while the Zoning floor area was minimized. This allowed the development team to maximize the adjacent building area and offer Covenant House the best financial deal.

Email interview conducted by John Hill.

Photo: Adam Kane Macchia
Photo: Adam Kane Macchia
Important Manufacturers / Products:

  • Brick – Belden Brick, Glacier Grey – 16” 
  • Storefront – YKK YCW 750 and YES 45 
  • Windows – Mannix 6700 Series
  • Large Porcelain Tile Floor and Walls – Ergon Stone – Grey Flada
  • Lobby Stair Wood Wall – Rulon International Panel Grille, white oak
  • Bathroom Tiles – Mosa – floors – Ciot Vogue Ceramica - walls
  • Cafeteria, Lobby and Courtyard Wall Panels – Eqitone Cement panes
  • Cafeteria Ceiling Panels – Rulon International –Panel Grille, white oak
  • Pride Hall Wood Floor – Grato – French Oak
  • Pride Hall Carpet – Kinetex Foundry
  • Pride Hall Ceiling panels – Rulon Aluratone 930 – white oak
  • Gym Floor – Thor Performance Floor – Taraflex
  • Lobby – HM Swoop chairs – ERG tables
  • Cafeteria Seating – Leland Amadeus chairs, ERG tables with custom laminate tops 
  • Welcome Center – Raaks wall system, HM Swoop sofa, ERG tables and Leland Amadeus chairs
  • Health Clinic – Steelcase Convey, Ritter 225 Exam chair
  • Pride Hall Furniture – Allsteel rock, HM swoop sofa, Kimball tall table, BDI Sector media cabinets,
  • Residential Room Furniture – Foliot
  • Residential Lounge – All Steel Recharge sofa, ERG table
  • Classrooms – HM Trapezoid tables and Caper chair
  • Offices – Steelcase Currency
  • Office Seating -Human Scale Diffrient world chair

Drawing: FXCollaborative
Drawing: FXCollaborative
Drawing: FXCollaborative
Drawing: FXCollaborative
Drawing: FXCollaborative
Drawing: FXCollaborative
Drawing: FXCollaborative
Drawing: FXCollaborative

Related articles 

Other articles in this category