World Building of the Week
Eden
New Bailey is part of The English Cities Fund's transformation of central Salford, part of Greater Manchester. For its third building at New Bailey, Make Architects created a standout: Eden, an office building covered in a living wall. The architects answered a few questions about the recently completed building.
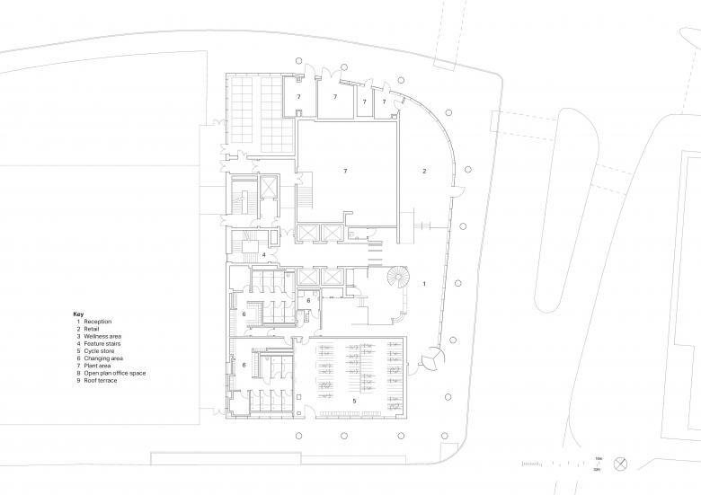
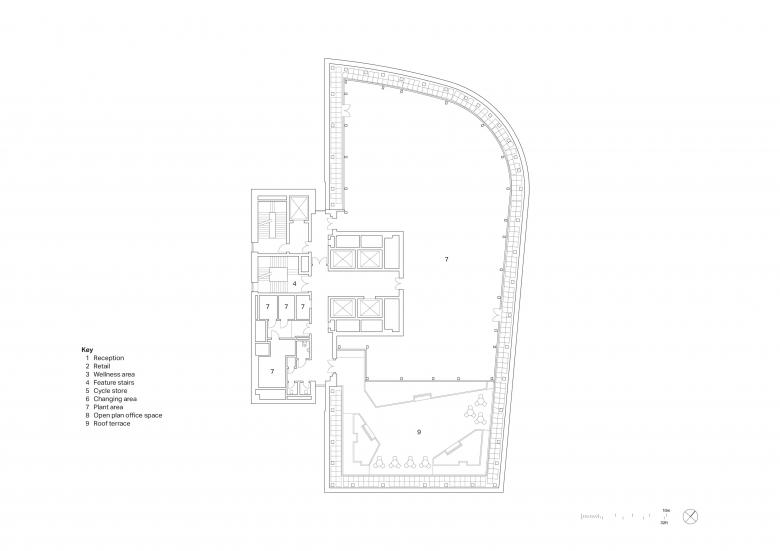
What makes this project unique?Eden’s stand-out feature is its living wall, which is the largest of its kind in Europe and brings significant urban greening to Salford. Designed in collaboration with green wall specialists Viritopia (formerly ANS Global), the living wall’s 350,000 plants were grown at Viritopia’s nursery in Chichester, West Sussex. From young plugs — some as small as a thumbnail — the plants were cultivated at the nursery and given time to mature before being installed onto the building in cassettes. As the plants grow and bloom across the seasons, the appearance of the building will change with them.
We knew from the outset that we wanted to do something a bit different, having designed two other distinctive buildings for the masterplan (Four New Bailey and Three New Bailey). The idea to include a green wall was conceived during Covid-19 lockdowns, when we were all craving closer connections with nature. We looked at precedent case studies, such as London Wall Place, and we thought a green wall could work in Salford.
Eden was developed on a former derelict surface car park and is bounded by a 10-story NCP car park to the west, plus the busy intersection of Irwell Street and Trinity Way on the northeast corner. The building’s massing was designed to maximize the internal office space over a small building footprint. The extruded side core facilitates large open-plan floor plates from levels 1–11, with uninterrupted internal views, while the rounded northeast corner mirrors the curvature of the Irwell Street gateway, addressing the geometry of this primary route and anchoring Eden as a city marker for this key junction. The ground floor is set back by two meters, creating a pedestrian-friendly colonnade space and reducing the building massing at the public level. The development has triggered important traffic-calming measures for Irwell Street, reducing the carriageways to accommodate better cycling infrastructure and give more prominence to pedestrians.
With the highest NABERS UK Design Reviewed Target Rating for a new-build development in the UK to date and the largest living wall in Europe, Eden is one of a handful of LETI Pioneer projects and has been designed in line with the UK Green Building Council Net Zero Carbon Buildings Framework definition to achieve net zero carbon in operation. English Cities Fund was instrumental in setting this sustainability agenda and seeking out ambitious certifications, including WELL and NABERS.
Looking ahead, Eden is targeting the 5.5-star NABERS Energy Rating once the in-use data is available (12 months after completion), and “green lease” agreements are already in place to ensure tenants are aligned with the net zero operational carbon vision for the building.
From the macro to the micro, countless decisions across the design and construction of Eden helped to balance carbon benefits with the cost plan. Marginal gains across every aspect of the design helped to reduce operational and embodied carbon and boost health and wellbeing. Working closely with sustainability consultants Cundall and client ECF, Make conducted over 20 studies to determine the most efficient building, balancing architectural, structural, MEP, environmental, and financial factors. These marginal gains shifted the design over the course of the project, but the key principle and design moves remained constant.
Email interview conducted by John Hill.
Location: Salford, England
Client: English Cities Fund
Architect: Make Architects, London
Project Manager: Chroma
Structural Engineer: Woolgar Hunter/ Civic
MEP/FP Engineer: Atelier 10
Landscape Architect: Reform
Contractor: Bowmer and Kirkland
Sustainability and Acoustic Consultant: Cundall
Cost Consultant: RPS
Facade Consultant: Wintech
Planning: Avison Young
Fire: OFR
Site Area: 1,644 m2 (17,696 sf)
Building Area: 10,684 m² (115,000 sf)

















