U.S. Building of the Week
Furioso Vineyards
From its establishment in 2014 until last year, Furioso Vineyards occupied a barn-like, easy-to-miss building with red siding. Renovated by Portland's Waechter Architecture, the winery's charred cedar screen now grabs the attention of those driving by, while glass walls invite them to sip some wine and gaze across the vineyards. The architects answered a few questions about the project.
Location: Dundee, Oregon, USA
Client: Furioso Vineyards
Architect: Waechter Architecture
Design Principal: Ben Waechter, AIA
Project Architect: Rand Pinson, AIA
Structural Engineer: Richmond So Engineers, Inc
MEP/FP Engineer: Interface Engineering
Landscape Architect: Randy Katz
Lighting Designer: Interface Engineering
Contractor: CD Redding
Construction Manager: Blane Hansen
Site Area: 9.7 acres
Building Area: 9800 sf Winery/Tasting/Barrel Room; 5200 sf Unconditioned Outdoor Space
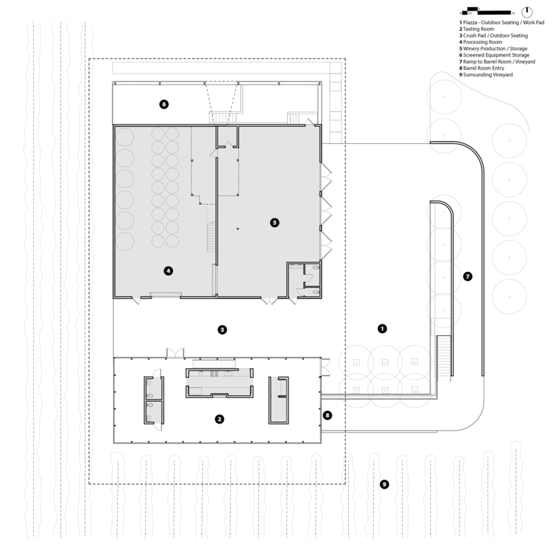
Furioso Vineyards is a new winery in Dundee, Oregon. For this project, Waechter Architecture performed a careful analysis of site conditions and re-envisioned the vineyard’s elements with a bold, new identity. Features of the vineyard now elegantly work together while creating distinct and complimentary atmospheres of their own. The program consists of a renovated winery, new tasting room, barrel room, equipment area, covered crush pad and a concrete piazza with a ramp to the barrel room below.
An expanded winery is re-clad in vertical charred cedar screen. This wood screen passes over opaque wall surfaces and open-air spaces. During the day the body of the building has a solid appearance. At night the screen takes on an ethereal, translucent appearance as the interior is backlit against the vertical cedar ribs. The winemaker’s office window punches this screen as an aperture for viewing.
The new tasting room, positioned to feel as if it is hovering above and within the vineyard, is open on all sides offering panoramic views to the vineyard foreground and distant vistas of the Willamette Valley beyond. Support spaces such as kitchen and bathrooms discreetly occur as fabric wrapped volumes - or boxes - that absorb sound as well as subdivide the larger space into smaller sitting zones. This provides the tasting room the feeling of an intimate living space within the vineyard.
A new courtyard - the piazza - serves as a workspace for the winery and an outdoor seating area for the tasting room. The southern end of the piazza is elevated above the vineyard creating a dramatic horizon as one approaches from the property entrance.
The aim of the project was to transform the existing winery and highlight the landscape from its hillside perch. A charred board and batten siding wraps the body of the building, concealing doors that open up to the piazza during harvest. The siding transitions to a wood screen on the north side of the building to hide winery equipment and becomes a lantern at night – a beacon on Worden Hill. A large, cantilevered metal roof hovers above the winery allowing breezes to vent the interstitial space. The roof hides mechanical venting and protects the body of the building during the winter months.
The vineyard has some of the oldest vines in Dundee. They extend deep into the volcanic rock below. The interior design is kept minimal to maintain focus on the exterior. Fabric wrapped boxes dampen noise to heighten the quiet focus on the landscape beyond. The expansive glass walls, living room-style seating and neutral palette highlight the colors of the vineyard as well as the deep red of the pinot noir for a unique, wine-tasting atmosphere. The new tasting room connects one to the history, the land, and the wine making process.
The construction timeline was hastened to open to the public during the summer months. In addition, the winery operated the processing room and crush pad during construction. These parameters were met by the design and construction teams despite the design constraints.
The vertical shou-sugi-ban board and batten siding gives the building a dark and aged texture, as if it was always there in the landscape. The oversized glass walls allow the viewer to feel as if they are immersed within vineyard. A large cantilevered steel and metal roof shades the tasting room during the summer months but allows sunlight to warm the room during winter months. It hovers above the wood body, expressing its lightness as a large wing and provides protection for the building and workers beneath throughout the seasons.
Email interview conducted by John Hill.
Related articles
-
-
The Three-Body Problem: Trapped in a Wave Sandwich
Eduard Kögel, Scenic Architecture Office | 13.04.2026 -
-







