Dan Brunn Architecture
Hide Out
The name given this residential renovation is a fitting one: A main feature of Los Angeles architect Dan Brunn's renovation of a 1975 Frank Gehry house is hidden behind a large pivoting wall. In addition to the "Hide Out," the project includes a sculptural wood stair that references Gehry as much as Brunn's client, artist James Jean. Dan Brunn Architecture answered a few questions about the project.
Location: Los Angeles, California
Client: James Jean
Architect: Dan Brunn Architecture
Design Principal: Dan Brunn, AIA
Structural Engineer: Salas Design Company
Landscape Architect: Kaisei-en
Interior Designer: Dan Brunn Architecture
Contractor: Realco Creations
Building Area: 3,600 sf
Completed: October 2016
See below for furniture and fixture sources.
What were the circumstances of receiving the commission for this project?
Architect Dan Brunn met the homeowner, artist James Jean, a few years ago at the urban art collective Pow! Wow! Hawaii, and the two immediately developed a friendship. While planning to move back to Los Angeles, Jean and his wife stayed with Brunn at his private residence for several weeks as they searched for a place to live. From the start, Jean was certain that Brunn would renovate his next home, however the search was challenging, until one day he found this gem originally designed by Frank Gehry and decided to move forward with renovation plans.
Please provide an overview of the project.
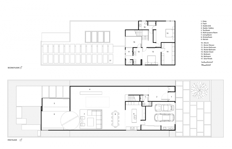
Brunn redesigned the 3,600-square-foot former Janss Family residence—a hub associated with the contemporary L.A. art scene in the 1970s and 1980s—by using his minimalist aesthetic, while incorporating design cues from the home’s original architect, Frank Gehry. The entire first floor was gutted to create an open-air plan to accommodate work and display space for Jean, as well as domestic necessities for his family. Interiors are arranged around an existing oversized rectangular skylight, and new windows were added to bring additional natural light into the kitchen and living areas. Brunn created a dynamic undulating staircase wall and utilized primary building materials—such as wood, concrete, and glass—as a nod to the architectural shapes and material palette famously used by Gehry at the time.
What are the main ideas and inspirations influencing the project’s design?
Brunn updated the home’s overall geometry with a combination of new materials to add depth. The entire first floor was gutted to negate the former tight spaces and create an open-air plan to double as work, display, and domestic spaces. Interiors were arranged around an existing oversized rectangular skylight to highlight the only architectural detail executed from Gehry’s original plan. The dark, dimly lit kitchen and living areas received additional windows to bring in an abundance of natural light.
At the owner’s request, Brunn designed a hidden multi-purpose space to provide a library, guest bedroom, views to the Japanese garden, and entertainment for friends and family. Living quarters upstairs required reorganization for seamless space flow and new storage areas.
How does the design respond to the unique qualities of the site?
An expressive stairway serves as the home’s sculptural statement leading from the entry into the living room, which slightly protrudes into the walkway. The shifting shapes and angles are in homage to Gehry as well as to Jean, who features flowing arabesques in his detailed work. A feeling of openness and continuum was instilled throughout the first-floor home/work space by creating a gallery-like setting for changing art displays. Brunn added new windows and re-thought Gehry’s rectangular skylight by outfitting it with stretch fabric to create an ambient glow, and installing LED lights to emit color.
A 14' x 12' pivoting wall at the far end of the house hides or reveals a multi-purpose room and library. A built-in murphy bed emerges from the floor-to-ceiling bookcase to transform the library into a guest bedroom. The library offers varied storage areas, shelving for books, and closed cupboards. Taking cues from Japanese tea houses, Brunn designed a wooden box-like volume within that space for a variety of activities: social gatherings, meditation, or music performance. A lush Japanese garden is visible and reachable through the glass sliders and features traditional plant species.
Upstairs, natural light seeps into the stairwell tunnel through a glass-enclosed, open-air meditative garden accessible through the master bathroom. Previously boxed in with no access to the outdoors, this area was designed as a garden space to acknowledge Gehry’s original intention to make the area an encased greenhouse. This respite organizes the second level, and expands the otherwise small landing.
How did the project change between the initial design stage and its completion?
The design didn’t change through the process; the initial renderings and concept matched the built structure.
What products or materials have contributed to the success of the completed project?
Hide Out’s staircase and box-like platform are both built of walnut wood, which add a natural element to the project. These areas punctuate the home and create warmth within interior spaces. A chandelier above the dining table by Stickbulb further complements these design features.
Email interview conducted by John Hill.
SOURCES
Living Room
Sofa: FLEXFORM “Groundpiece” designed by Antonio Citterio
Lounge Chairs: Vitra “Cité” designed by Jean Prouvé
Custom Coffee Table: CBM Woodworks
Side Table: Walter Knoll “Vladi” designed by EOOS
Dining Room
Dining Table: Arco “Slim Table” designed by Bertjan Pot
Dining Chairs: Arco “Cafe Chair” designed by Jonathan Prestwich
Dining Arm Chairs: e15 “HOUDINI - Arm Rest” designed by Stefan Diez
Pendant Light: Stickbulb “Sky Bang Chandelier”
Kitchen
Cabinets: Aster Cucine “Atelier”
Counters: Caesarstone
Appliances: Jenn-Air
Plumbing Fixtures: Hansgrohe
Guest Room/Library/Tea Room
Chair: Herman Miller “Eames Lounge Chair and Ottoman” designed by Charles and Ray Eames
Side Table: Walter Knoll “Vladi” designed by EOOS
Poufs: Muji “Body Fit Cushion”
Bedroom
Bed: Bensen “Nest Storage Bed” designed by Niels Bendtsen
Atrium
Stool: Heller “Twist Cube” designed by Frank Gehry
Lounge Chair: GloDea “X45”
Related articles
-
-
-
Spaces for Cars – And for People
Kennedy & Violich Architecture, Ltd. (KVA) | 02.03.2026













