U.S. Building of the Week
High Meadow Studio at Fallingwater
Every architect is familiar with Fallingwater, the iconic house that Frank Lloyd Wright boldly perched above a waterfall in Western Pennsylvania. But fewer know about the other pieces at Fallingwater: the Barn, which hosts wedding and conferences, and the Fallingwater Institute's classes, workshops, and residencies. Bohlin Cywinski Jackson has designed a couple buildings for the Institute, most recently the High Meadow Studio, which they answered a few questions about.
Location: Mill Run, Pennsylvania, USA
Client: Western Pennsylvania Conservancy
Architect: Bohlin Cywinski Jackson
Design Principal: Peter Q. Bohlin, FAIA
Project Architect: Gina Rossi, RA
Project Manager: Bill James
Project Team: Kent Suhrbier, AIA; Bill Loose, AIA
Structural Engineer: Common Ground
MEP/FP Engineer: Iams Consulting, LLC.
Contractor: Jendoco Construction Company
Civil Engineer: Common Ground
Building Area: 1,000 sf (enclosed addition); 800 sf (existing garage)
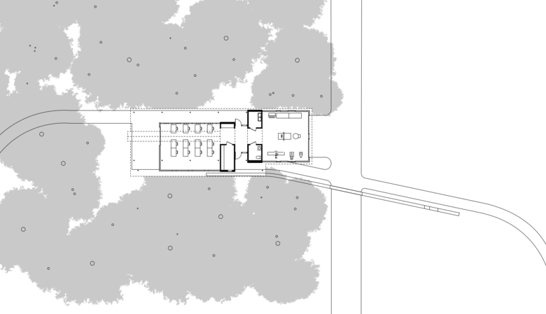
The High Meadow Studio at Fallingwater is the second phase of the High Meadow project for the Fallingwater Institute and Western Pennsylvania Conservancy. In 2014 Bohlin Cywinski Jackson was hired to design an addition to an original split-level cabin at High Meadow, which serves as accommodations for students of the Fallingwater Institute’s summer residency programs in art, architecture, and design. The High Meadow Dwellings doubled the existing capacity and added a covered porch space for dining and events. An addition to and renovation of an existing garage, the High Meadow Studio is a short walk from the High Meadow dwellings. Due to the success of the first phase, Bohlin Cywinski Jackson was retained as architect.
An existing garage along the edge of the woods had been previously utilized as a design studio for the summer programs at High Meadow. The small size limited the program’s capacity while the lack of natural daylight, views, and ventilation left the students disconnected from the adjacent meadow. The design team was challenged to create a new seasonal studio that would double the existing space, adding a fabrication shop, review space, storage, support services, a covered outdoor work area, and most importantly, a strong connection to the natural surroundings. Instead of demolishing the aging garage structure, the team leveraged the resources of the existing building, re-skinning it and re-purposing it, and adding a studio pavilion which extends into the woods behind the existing structure, positioned strategically between the mature trees, leaving the forest edge intact.
Previously utilized as the design studio for the summer programs, the garage’s size limited the program’s capacity while the lack of natural daylight, views, and ventilation disconnected the space from the adjacent meadow. To address these restraints, the design team created a new studio that doubles the existing footprint, adding a fabrication shop, review space, storage, support services, a covered outdoor work area, and most importantly, a strong connection to the natural surroundings.
The Western Pennsylvania Conservancy, entrusted to preserve and conserve Fallingwater and the natural and historic lands of the region, continues its mission through educational programs such as those hosted at High Meadow. Faithful to this function and mission, High Meadow Studio complements its rural setting with modest form, efficient materials, and honest details.
Through the process, the team identified select portions of the construction to be “self-performed” by the owner to streamline the construction.
The addition is a simple kit-of-parts, composed of prefabricated wood trusses and off-the-shelf components. The design leverages a natural ventilation strategy with occupant-controlled vents that draw in cool, forest air below the pin-up wall and across the studio.
- Plazit Polygal – Transparent/Translucent Facade Panels – Standard Grade Multi-Wall Polycarbonate
- Plazit Polygal – Ridge Skylight – Topgal Standing Seam System
- Overhead Door – Garage Doors – Aluminum Sectional Doors 511
- WRCLA Western Red Cedar – Siding – Architect Knotty Rustic Channel Profile
Email interview conducted by John Hill.
Related articles
-
A 21st-Century Museum in a 19th-Century Residence
Baird Architects | 16.02.2026 -
-
-










