AUX Architecture
Hollyridge Residence
Although "good bones" is an overused phrase (enough that it's the name of a reality TV show), it's a fitting argument for renovating a building rather than tearing down and starting anew. The Hollyridge House, in the shadow of the Hollywood Sign, is just such a residential project built upon good bones. But the house's contemporary flavor belies its history, giving the impression of new construction. AUX Architecture answered a few questions about the house with a very "LA" history.
Project: Hollyridge Residence, 2018
Location: Hollywood Hills, California, USA
Client: Withheld
Architect: AUX Architecture, Los Angeles
Design Principal: Brian Wickersham
Project Manager: Matthew Aulicino
Project Team: Jenny Barnish (Interior Design), Uriel Lopez (Designer)
Structural Engineer: Workpoint Engineering
Interior Designer: AUX Architecture, with staging by Meredith Baer
Contractor: JHK Contractors
Building Area: 2,849 sf
Please provide an overview of the project.
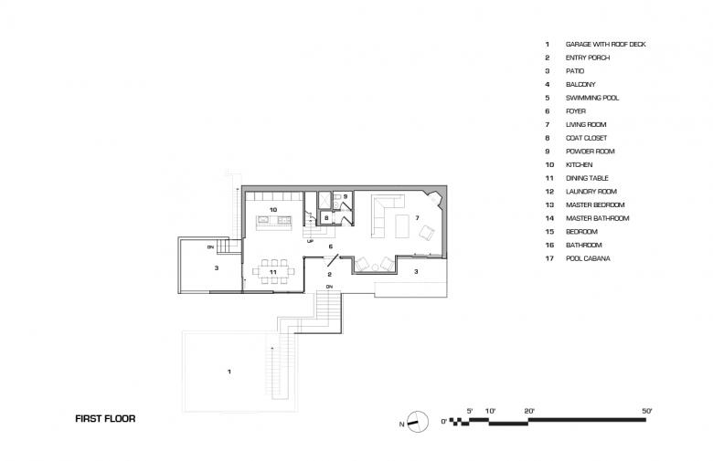
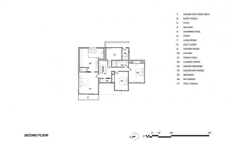
This is a renovation of a single-family residence that was originally built in 1989. Once owned by Red Hot Chili Peppers’ Anthony Kiedis, this two-story, three-bedroom residence built on its rock and roll past to join the most notable modern homes of the Hollywood Hills. This renovation transformed it from a mish-mash of architectural styles into a light-filled hillside home that captures enormous views of the nearby Hollywood sign.
What are the main ideas and inspirations influencing the design of the building?
The home had previously undergone multiple owners and renovations, giving it a mostly Southern California Mediterranean look with a Spanish tile roof and tiny windows. We worked within a budget to produce an impactful and transformative design without structurally changing the home’s rooflines. Our design used a strong contrast between a black exterior and a bright white, museum-quality interior.
How does the design respond to the unique qualities of the site?
The home is situated very close to the Hollywood Sign and the main focus was on opening the house up to the Hollywood Sign view, and emphasizing indoor-outdoor living with lighter and brighter spaces.
How did the project change between the initial design stage and the completion of the building?
Given that the project had an extremely compressed schedule, we arrived at the design very quickly and then worked with the builder to realize the initial concept.
What products or materials have contributed to the success of the completed building?
The home features glass walls by Fleetwood that open the house up to the Hollywood sign view and emphasize indoor-outdoor living, as well as Poliform kitchen and master closet, and Porcelanosa tile.
Email interview conducted by John Hill.
Related articles
-
-
The Three-Body Problem: Trapped in a Wave Sandwich
Eduard Kögel, Scenic Architecture Office | 13.04.2026 -
-









