The city of Jingdezhen in the province of Jiangxi is renowned beyond China since historical times for its porcelain production. More recently, the Imperial Kiln Museum realised by Studio Zhu Pei, has again drawn a lot of attention to the city. As does a new hotel designed by Vector Architects. Located close to the city centre in an old industrial district undergoing complete change, the Beijing architects took the existing buildings as the starting point for the transformation of a very tight site.
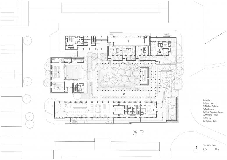
Among the architectural relics on the site were a long, narrow industrial building, machine rooms, a dormitory and a dilapidated pavilion. Camphor trees had since grown in the gaps between them, and their preservation became an important goal of the hotel transformation project. Additionally, it was the client’s wish that more than half of the completed spaces be open to the public.
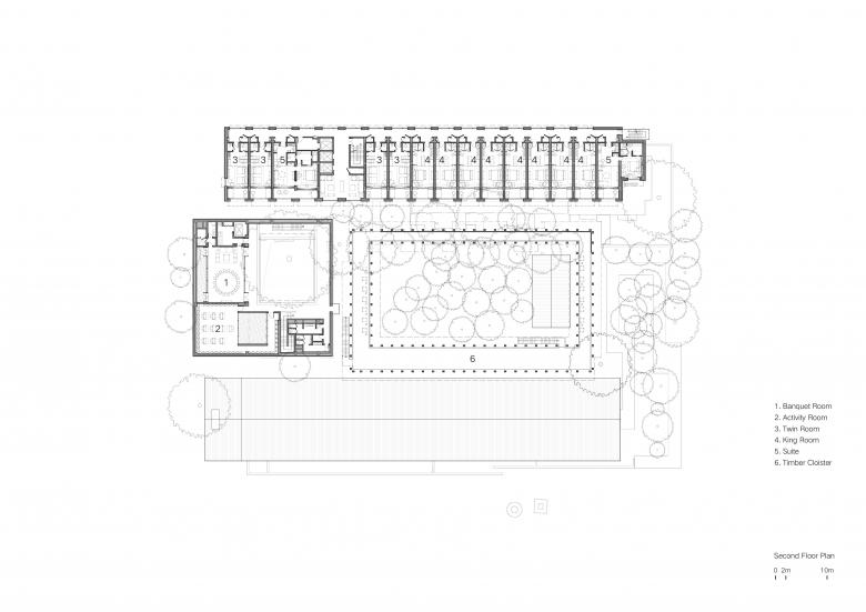
In their response to these parameters, the architects conceived all building volumes as expansions of the older building components and the wildly vegetated yard between them as a green oasis. A yard space where camphor trees have grown is created into an inner courtyard by inserting a two-story cloister of timber construction that provides access to the adjacent buildings on all four sides. The additional spaces of the hotel – the conference rooms and the restaurant – are arranged around this courtyard and connect to it at ground level. The two-story cloister and the courtyard of trees within it are open to the public and offer a high-quality spatial experience.
Due to the high building density on the site and the narrowness of the courtyard, visitors are always close to the building volumes; so materiality plays an important role. In these intimate situations it was important to create a harmonious connection between the wood of the cloister structure, the masonry of the existing buildings and their extensions, and the transparent elements, while still ensuring privacy.
On the northern edge of the building assemblage an art gallery is housed on the ground floor of the former dormitory building and is accessible from the alley. The walls of the dormitory building have been preserved on the first two floors. Located on three floors above it are the hotel rooms, with their balconies opening onto the inner courtyard. The entrance to the complex is on the eastern side (via an outer courtyard), where visitors are greeted by a grove of trees and folded canopies; beyond which is the inner courtyard is a tea pavilion on the eastern side and a multifunctional room of the conference building closing the western side.
The restaurant is accommodated in the former factory hall fronting on to the courtyard along the south edge of the site. Here, the external walls were retained as a reinforced and insulated structure to which a new raised metal roof was added. Through roof lighting and full height openings to the inner courtyard, the architects created a pleasant spatial atmosphere that also pays homage to the industrial past.
The choice of new materials and their colours were informed by the red and orange tones of the original buildings. The outer walls of the new buildings are made of kiln and clay bricks, as per the existing buildings. The brick materiality of the outer skin harmonizes with the warm colour of the wooden structure in the inner courtyard and in this way is reminiscent of the history of porcelain production in Jingdezhen. The concrete used elsewhere in the building complex also has a warm colour.
The building assemblage, that combines hotel uses with other publicly accessible functions, creates a new experiential space in which nature, architecture, hospitality and culture come together. Through their approach to its design, Vector Architects provides visitors to an otherwise dense urban atmosphere with an immersive retreat that merges history with contemporary needs. The complex simultaneously results in a new urban block that set high architectural and urban design standards that impact far beyond this location. Here individual stays by hotel guests overlaps with temporary shared activities by visitors from the neighbourhood, forming an integrated urban structure that shows how a contemporary hotel use can become part of a new urban culture. Both the external open spaces of the hotel and the publicly accessible interior functions are designed in the spirit of a shared living room, so as to provide a relaxing experience within the densely built-up neighbourhood.
Location: No.150, Xinchang West Road, Jingdezhen, Jiangxi, China
Architecture/Interior/Landscape design: Vector Architects
Principal architect: Dong Gong
Project architect: Zhang Han
Site architects: Liu Yaduo, Xue Zhengnan
Construction management: Zhao Liangliang, Li Jinteng
Project team: Guo Tianshu, Yan Xu, Gou Fanlin, Liu Yaduo, Li Jinteng, Ma Xiaokai, Mao Bo, Weng Qicheng, Liu Shida, Andre Chedid, Ai Xin, Li Mofei, Sun Yingyi, Gao Yudi, Guan Shipeng, Tao Wei, Li Jiahui
Ceramic art avenue project architect: Zhang Jie
EPC lead: An-design Architects
Project architect: Hu Jianxin, Zhang Bingbing
Architects: Wu Wenxue, Wang Zhi, Wang Yongping, Zhong Kai
Structural design: Zhang Jueyang, Liu Yahui, Bi Xin
MEP design: Yang Yanan, Wang Juan, Guo Chunshuang, Feng Zhanwei, Shi Xiaofeng, Li Hui
Landscape design: Li Siyu, Yu Mingyu, Yang Xu
Façade consultant: An-design Architects, LongBang Construction Co., Ltd.
Lighting consultant: X Studio, School of Architecture, Tsinghua University
Timber structural consultant: IStructure & CROWNHOMES
Intelligent building consultant: BOE
Signage design: Beijing SEED Cultural Media Co., Ltd.
Client: Jingdezhen Towyi Cultural Development Co., Ltd.
Construction contractor: Shanghai Greenland Construction (Group) Co. Ltd., Suzhou Gold Mantis Construction Decoration Co. Ltd., Shanghai Fair Face Concrete Technology & Development Co. Ltd.
Structure system: Frame structure, Steel frame structure, Timber structure
Materials: Coloured fair-faced concrete, glass, terra cotta brick, stainless steel, laminated timber
Floor area: 8290 m2 (above ground 6347 m2/ underground 1943 m2)
Footprint area: 2400 m2
Site area: 6130 m2
Design period: 2019.6–2021.8
Construction period: 2020.11–2023.12
Related articles
-
-
A Loop for the Arts: The Xiao Feng Art Museum in Hangzhou
Eduard Kögel, ZAO / Zhang Ke Architecture Office | 15.12.2025 -
-
-

















