U.S. Building of the Week
House of Flowers, Flowers Vineyard & Winery
The remote Flowers Vineyard & Winery has produced popular Pinot Noir and Chardonnay wines for nearly 30 years on California's rugged Sonoma Coast. The opening of the House of Flowers last year just a few miles from downtown Healdsburg has made their wines more accessible. Walker Warner Architects answered a few questions about their transformation of an old winery into the House of Flowers.
Location: Healdsburg, California, USA
Client: Flowers Winery
Architect: Walker Warner Architects
- Lead Principal: Mike McCabe, LEED AP
- Principal: Brooks Walker, LEED AP
- Senior Project Manager: Sharon Okada, LEED AP
- Project Team: Matthew Marsten, Hana Bittner, Darcy Arioli, Vivi Lowery
Landscape Architect: Nelson Byrd Woltz Landscape Architects
Consulting Local Landscape Architect: Alexis Woods Landscape Design
Lighting Designer: Anna Kondolf Lighting Design
Interior Designer: Maca Huneeus Design
Contractor: Cello & Madru Construction Company
Kitchen Consultant: Trimark Federighi Design Inc.
Audio/Visual: Marchand Wright & Associates
Acoustical Engineering: Charles M. Salter Associates
Reclaimed Wood Sculpture: Arborica
Site Area: 13.5 acres
Building Area: 15,700 sf
See bottom for important manufacturers / products
We were fortunate to have collaborated with the owners previously on several other projects including the Quintessa Winery estate in Napa Valley. When the owners expanded their portfolio to include Flowers Vineyards and Winery, they reached out to us to create a unique wine tasting experience for the House of Flowers.
Flowers Vineyards & Winery was looking for a venue to showcase their sustainably produced wines from the extreme Sonoma Coast within a more easily accessible setting that expressed their nature-based ethos. After securing an estate with an aging and deteriorated winery in Healdsburg, a complete renovation and expansion became the perfect union of context and intent. By visually refining and partially remaking the existing structures, simplifying the palette and abstracting the traditional vernacular detailing, the architecture honors the local agrarian context while curating an extraordinary experience for its guests.
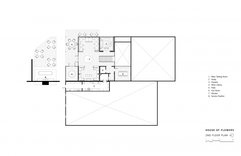
The visitor experience was reconfigured and expanded to include a variety of intimate gathering areas to savor Flowers’ Sonoma Coast wines both inside as well as outside. Upon entering the visitor center, guests are led up the main stair to the primary tasting room on the second level which includes the dining room and the living room areas as well as more private spaces for VIP guests. The gardens are framed by existing refurbished rammed-earth walls that bring the experience into sharper focus. The resulting spaces unfold as a series of quiet eddies intended for gathering, tasting wine, and celebrating nature. The site occupies the boundary between the gridded vineyard and agricultural fields of the Russian River and is situated amongst the oak-grassland foothills leading up to the coastal redwood forests that surround Flowers’ estate vineyards on the extreme Sonoma Coast. The terraced gardens feature plant communities indicative of each surrounding ecological typology. New board-formed concrete walls were added to the landscape as needed, serving as a counterpoint and augmenting the series of exposed archaeologies. Together, landscape and architecture combine to provide a quiet refuge, a place to celebrate community and friends through the experience of wine.
The challenge was how to evolve the existing collection of facilities and preserve the natural legacy while ensuring that the venue could meet the expectations of today and become a destination in its own right, all with an eye to budget. “Our approach was deceptively simple,” notes Brooks Walker, principal at Walker Warner Architects. “Let nature dominate and use architecture to frame the experience. Ultimately, it’s about the experience of this place.”
Set within a redwood grove, the existing buildings were largely disconnected from their rich landscape. The strategy was to find ways to reconnect visitors to the landscape while reimagining what was a series of simple industrial buildings. This reinvigorated journey began by investing the site with a sense of orientation. New pathways lead visitors from the parking area to the updated visitor center. Previously a warehouse with modest wine tasting facilities, House of Flowers provides guests with an orientation to the site and introduces the Flowers’ story. As with the other existing on-site structures, House of Flowers has been stained a shadowy black—inspired by the deep shade of the surrounding redwood grove—to help the buildings recede into the site and allow the landscape to become the focus.
Tucked discretely into the landscape, the transformation involved reconfiguring spaces within the existing footprint to place more emphasis on the visitor experience versus production areas. In addition, the ceiling height was increased to add volume and light to the interiors while still creating a cozy and inviting atmosphere. “The idea was always to make people feel comfortable as if they were visiting a friend’s home in the countryside,” notes Maca Huneeus, principal at Maca Huneeus Design. “Hence we made a library, a fireplace area, a living room and a terrace. We kept the materials elemental to give it an authentic country vibe."
The renovation knits building with topography, resulting in a multi-level facility that preserves the modest vernacular forms while providing seamless access to the stunning views and gardens afforded by the hilltop. The airy hilltop structure serves as a transition to the spacious gardens and provides sheltered seating and amenity spaces, including an outdoor wood-fired oven. The interiors are bright thanks to bleached cypress siding, completing the yin-yang (dark-light) relationship of outside to inside. “The architectural expression is understated,” notes Mike McCabe, lead principal at Walker Warner Architects. “It isn’t about making a statement. It’s about creating a place that can unify the values that are important to the Flowers’ brand—celebrating nature and local context with what’s important to the site and the community.” The desire, note the Flowers owners, was to “create an environment where guests feel like they are entering our home, experiencing wines crafted without compromise and shared without pretension.”
The site is challenging in that we were dealing with an existing condition, the movement of winery production vehicles, guest vehicles and ultimately pedestrian traffic within the visitor center and gardens had to be carefully choreographed. We had a strong desire to have the guests enter the visitor center by walking on paths through the shady redwood grove. Due to the one floor of vertical elevation change from the redwood grove to the upper tasting room and main gardens, we had to create spaces that could accommodate guest reception and facilitate a graceful transition to the upper level. Once upstairs, the guest has the potential to be guided to a variety of different experiences ranging from internal and cozy by the fireplace to outdoor and secluded in the garden.
The cultivated flower garden celebrates the relationship between people and land and embodies the agrarian nature of Sonoma vineyards and their dependence on the surrounding ecologies. Flowers reflects this harmony in their sustainable agricultural production methods and it is carried throughout the landscape design through a strategic plant palette that supports pollinator species and the utilization of low-impact maintenance strategies. “In the terraced plantings the visitor is immersed in distinct California ecologies: Redwood Forest, Oak Woodland, and Chaparral landscapes, with views of the vineyards and distant ridges of the Mayacamas Mountains on the horizon,” states Thomas Woltz, principal at Nelson Byrd Woltz Landscape Architects.
Initially, the clients conceived of this project as more of a garden project with a light remodel of the existing building, fresh paint, etc. However, as we worked closely with them to understand the program and develop the vision for the first widely accessible home for the Flowers brand, they realized that the project would be more extensive. The turning point came early in schematic design when we suggested that to achieve their goals for the guest experience, half of the roof of the existing building should be raised by three feet so that guests would have a more connected and open relationship to the landscape. Without this change, the low seven foot tall doors and windows created a space that was dark and internal.
Our sustainability approach was to preserve most of the existing structure and site walls rather than building anew. This enabled most of the original structure to be "recycled" and gave focus to the design efforts, elevating what was already present. Passive energy strategies — low-cost, high-impact — were maximized and included taking advantage of daylight, ventilation (operable skylight and large windows) and shade (exterior wood slats serve as a veil while the surrounding redwood grove offers additional shade). Sustainability is reinforced through several large, monumental functional wood installations made of salvaged logs by artist Evan Shively with Arborica.
Email interview conducted by John Hill.
- Bald cypress doors: Northstar Woodworks
- Bald cypress interior wall paneling and ceilings: ARC Wood & Timbers
- Light fixtures: Decorative Glass Light fixtures by Bocci
- Skylight: Skylight by Amari
- Custom steel railing: Complete Fabrications
- Pre-finished oak flooring: Monarch Plank
- Stone tile fireplace cladding: Island Stone
- Gas fireplace: Element 4
- Aluminum windows and doors: Amari
- Concrete pizza oven island and restroom vanity: Sonoma Cast Stone
- Ceramic tiles: Ann Sacks
- Restroom lighting: Areti, "Epic 2"
- Brass sink faucets: Kallista












