Concrete
Jersey City Urby
One of the most distinctive new towers visible from the west side of Manhattan across the Hudson River is Jersey City Urby, which looks like a number of blocks stacked slighly askew. More than just a new residential tower, it is one of the first so-called Urby projects, which combine residences with a communal program geared around art, science, food, and recreation. Amsterdam's Concrete is responsible for the design of all Urby projects – inside and out. The architects at Concrete answered a few questions about Jersey City Urby.
Project: Jersey City Urby, 2016
Location: Jersey City, New Jersey
Client: Ironstate Development, Hoboken, and Mack-Cali/ Roseland Residential Trust
Concept: Ironstate (David Barry) and Concrete
Architecture, Interior Design, Landscape Design: Concrete, Amsterdam, NL
Project Team: Erikjan Vermeulen, Rob Wagemans, Cindy Wouters, Matthijs Hombergen, Jolijn Vonk, Sofie Ruytenberg, Ana Bissau Pereira, Jakob Kunst, Wouter Slot, Jesse Nolte, Robert Schellekens, Kayla Lee
Executive Architect: HLW, New York (Edward Shim, Rui Borges)
Executive Landscape Architect: MKW + Associates, LLC, Rutherford NJ
Structural Engineer: Desimone, New York
MEP Engineer: AMA Consulting Engineers P.C., New York
General Contractor: AJD Construction Co, Leonardo
What were the circumstances of receiving the commission for this project?
In 2009, Concrete was approached by Ironstate to develop a better rental-housing product for New York’s densely populated areas. "Better" was defined as a product that more adequately meets the needs of the modern urban resident, offers higher value for the money and facilitates a more positive way of living. In order to create the difference on the american rental housing market Ironstate looked for an architect outside of the US, and choose Concrete after several interviews with different offices.
The answer for this new housing product that Concrete and Ironstate came up became Urby, a housing brand rather then a one-of project. The first Urby location was opened last year in Staten Island and after Jersey City, now construction is underway at two more locations in Harrison, New Jersey, and Stamford, Connecticut.
We created architecture from the inside out by identifying needs of the inhabitants and translating that into creating the best apartments possible. After that we started to work on the communal program before ever thinking about the architecture of the buildings. The result is a people- and user-focused experience for our tenants and an architecture that tries to express that.
Please provide an overview of the project.
Jersey City Urby houses 762 rental apartments in a 69-story tower, with two more towers planned for a second development stage. Jersey City Urby is located right on the Hudson River next to Exchange Place Path station in the heart of Jersey City. The complex boasts stunning views of downtown Manhattan and is a five-minute PATH ride away from New York’s World Trade Center.
The architectural design of the building reflects the playful and organic nature of the Urby brand, focusing on openness, space and connection. The tower is made up out of stacked blocks, creating a vertical neighborhood and an expressive and playful structure.
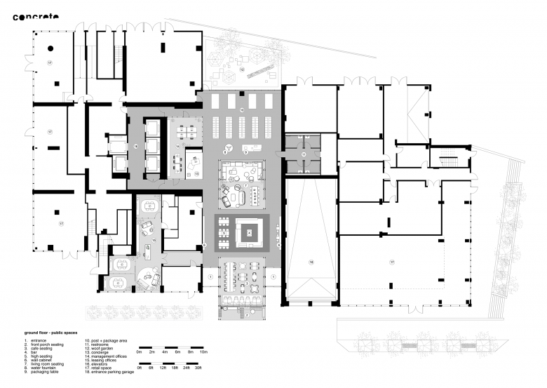
Urby buildings have been designed to create natural opportunities for neighbors to meet. Every building is entered through a publicly accessible entrance café instead of a lobby. The communal residential spaces are actively programmed to foster interactions between neighbors and include a kitchen, a gym, gardens and a pool. Jersey City Urby offers its residents an artistic program and it even has an in-house scientist. The available services vary per location based on local needs and resident demographics.
Urby apartments are available in S, M and L. Compact in size to keep monthly rates down, all apartments feel relatively large and spacious thanks to the clever use of the available square footage, big windows and bright lighting plans. With plenty of built-in storage space, fully equipped kitchens and bathrooms, plus pre-installed Wi-Fi, Urby apartments set a new standard in ready-to-move-in rental housing.
The Urby concept and brand have been created by Concrete and Ironstate Development. Concrete is responsible for all of Urby’s design – from the architecture of the building to all of its interiors, urban landscape and decoration.
What are the main ideas and inspirations influencing the design of the building?
The architectural design of the building reflects the playful and fresh "new kid on the block" nature of the Urby brand and focuses on views, space and connection. The layout of the tower revolves around an efficient core with elevators and stairs in the heart, and 12 apartments per floor wrapped around the center. By extending some of the floors by 7 ft, the dimensions and nature of the apartments vary. At cantilevering floors, studios (S-units) can turn into one-bedrooms (M), while corner one-bedrooms can become two-bedroom L-units. The result is a diverse offer of twelve different units that range from 400 to 1,000 sqare feet. Besides creating diversity, the cantilevering floors form striking blocks in the building’s architecture, creating towers that look as if they were built by a child with wooden blocks.
How does the design respond to the unique qualities of the site?
Once the scheme is finished we will have three towers on a large plot. In order to break down the scale, a cross street was extended over the plot, breaking it up in two pieces and creating better connections to the urban fabric. By creating not only public functions in the base of the building, but also transforming the typically private lobby into a publicly accessible entrance/cafe, we bring the neighborhood into the building and create the opportunity for neighbors and residents to meet and interact. The entrance creates an instant feel of homecoming for the residents as well as the cafe visitors.
Furthermore the towers offer great views over the hudson river and towards Manhattan. The three towers are organized and placed on the plot as such that all of the units can benefit from these great views.
In terms of architecture the area is characterized by mono functionality in pretty non-descript glazed office towers. Urby brings new uses and life into the area, which is represented by the loosely stacked blocks and dynamic architecture contrasting the glazed offices.
How did the project change between the initial design stage and the completion of the building?
Not at all in terms of architecture. The interiors, especially the communal program for the residents, changed over the course of the project. In learning from our Staten Island project to collaborations with local venues and institutions, and the fact we got a better grip on the demographics of the area, we finally ended up with extensive and heavily programmed communal activities and spaces. Next to the entrance cafe, which is run by local coffee hero 9BAR, we have an artist-in-residence program with Mana Contemporary (Jersey City’s most influencual modern art institute) and we have a scientist in residence (Paul Hofmann) the CEO of the Liberty Science Center. There are communal events and activities organized around these for the residents to join, plus there is communal program and events in the communal kitchen, the outdoor kitchen, the gym and on the outdoor pool area. All these activities led to a permanent design investigation in what we plan for, and where and how to position these optimally in the building.
Email interview conducted by John Hill.















