U.S. Building of the Week

Karsh Alumni and Visitors Center

Centerbrook Architects & Planners | 11. May 2020
Photo: Peter Aaron/OTTO
Project: Karsh Alumni and Visitors Center, 2019
Location: Durham, North Carolina, USA
Client: Duke University 
Architect: Centerbrook Architects & Planners 
  • Design Principal: Mark Simon, FAIA
  • Project Manager: Alan Paradis, RA
Structural Engineer: LHC Structural Engineers 
MEP/FP Engineer: Dewberry 
Landscape Architect: Stephen Stimson Associates 
Lighting Designer: Cline Bettridge Bernstein Lighting Design Inc. 
Construction Manager: LeChase Construction 
Civil Engineer: HDR Others 
Acoustic: Acentech 
A/V: KONTEK Systems Inc. / T1V
Code Consultant: Philip R. Sherman, P.E. 
Cost Estimator: Vermeulens
Site Area: 4.25 acres
Building Area: 48,000 sf
Photo: Peter Aaron/OTTO
Please provide an overview of the project.

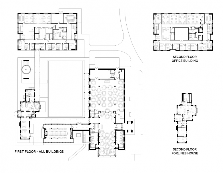
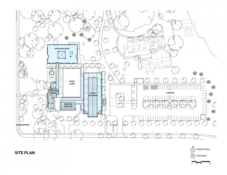
This is an alumni and visitors' center with alumni association offices located just outside the main entry to Duke University’s renowned Gothic Revival West Campus. It is adjacent to admissions buildings and thus welcome students of both the past and future. It is located in a semi-residential neighborhood, including a number of traditional houses designed by the original campus architects Julian Abele and Horace Trumbauer. This suggested that the large complex be broken into smaller pavilions to maintain rhythm and scale. These surround a celebration courtyard that recalls the classic contained spaces of the campus beyond. The whole is surrounded by woods, in keeping with Duke’s self-vision as a "University in the Forest."

Photo: Peter Aaron/OTTO
What are the main ideas and inspirations influencing the design of the building?

Duke asked that its Alumni Center reflect Duke imagery and traditions, without pure replication. The complex had to look both forward and backward – to Duke’s historic campus and an ambitious and adventurous future. The visitors’ center Gothic wood arches support modern glass skins alongside Duke stone exteriors. The Duke stone Forlines House is integrated into the whole by a modern wood cloister surrounding the central court. A simple rectangular two-story office building completes the enclave.

Photo: Peter Aaron/OTTO
How does the design respond to the unique qualities of the site?

The forest and hilly topography come up to the exterior of the buildings in many places, leaving the flat open exterior "room" of the complex for human activity, while providing an idyllic setting overall.

Photo: Peter Aaron/OTTO
How did the project change between the initial design stage and the completion of the building?

The complex was originally located across the street, but that site proved to be too restricted. We studied many iterations of the main events building to find a form that magically pleased both the traditionalists and modern loving alumni. Early options were seen to be ‘too barn-like’ or ‘too churchy’ or just too modern.

Photo: Peter Aaron/OTTO
Was the project influenced by any trends in energy-conservation, construction, or design?

The building meets Duke’s current standards, comparable to LEED silver, using both substantial insulation and plentiful windows, strategically located, to maximize daylighting with minimal heat gain. Displace air mechanical systems are used where feasible.

Photo: Peter Aaron/OTTO
What products or materials have contributed to the success of the completed building?

A variety of mullion caps provide texture and life to the glass curtain walls. Duke’s own stone, used throughout its West Campus and quarried nearby, creates a solid base suggesting permanence and protection. Precast panels on the exterior upper walls of the Events Building reflect the patterns found on similar material in the neighboring campus. Zinc roofing is brought to grade on the end walls of the meeting pavilion, where the glass wings and solid center ‘rhyme’ with the glass center and solid wings of the main pavilion. A number of Duke’s gothic windows are reproduced in perforated wood panels (of Duke’s own timber) along the side walls of the events hall; these provide acoustic softening to accommodate a variety of activity from concerts to lectures to passing crowds.

Email interview conducted by John Hill.

Photo: Peter Aaron/OTTO
Photo: Peter Aaron/OTTO
Photo: Peter Aaron/OTTO
Drawing: Centerbrook
Drawing: Centerbrook
Drawing: Centerbrook

Other articles in this category