US Building of the Week
L. Gale Lemerand Student Center
With curved walls making a welcoming embrace and forming a large green space, the L. Gale Lemerand Student Center acts as a gateway to Daytona State College, accentuated by a large bronze portal aligned with the main campus drive. Ikon.5 architects answered a few questions about the project.
Location: Daytona Beach, Florida, USA
Client: Daytona State College
Architect: ikon.5 architects
- Design Principal: Joseph Tattoni, FAIA
- Managing Principal: Arvind Tikku, AIA
- Technical Principal: Charles Maira, AIA, LEED AP
MEP/FP Engineer: OCI Associates
Landscape Architect: Prosser, Inc.
Lighting Designer: S+S Lighting Design
Interior Designer: ikon.5 architects
Construction Manager: Perry-McCall Construction, Inc. - CMAR
AV/IT/Security: TLC Engineering for Architecture
Photographers: Brad Feinknopf, Joni Hofmann
Site Area: 3 acres
Building Area: 74,000 sf
The Board of Trustees of Daytona State College desired to create a student center as the gateway to the campus that would transform the college’s appearance to the community of Daytona Beach and better represent its mission to advance the economic development of Daytona Beach and Volusia County Florida. The existing campus turned its back on Daytona with inward looking and internally accessed buildings surrounded by parking lots between the public vehicular roads and the campus. This new student center was to transform the public appearance and experience of the campus by being a gateway between Daytona State College and its adjacent community thereby strengthening town-and-gown relationships. An RFP (Request for Proposals) was posted, and given the far reaching goals of the Board, the design committee had a broad search. ikon.5 architects was selected after a formal RFP submission and interviews.
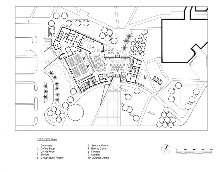
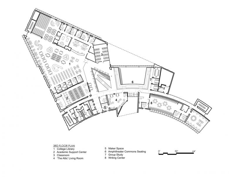
The L. Gale Lemerand Student Center is a 74,000-square-foot three-story new building at the entrance to Daytona State College that establishes an iconic portal to the campus and provides a central dedicated gathering space for a primarily commuter-based student body. The program of the student center is an inventive mix of traditional social and study spaces (group study rooms, casual meeting areas, dining, café, events center, etc.) and work force transition spaces to better prepare students for successful employment (career services, tutoring and mentoring center, writing center, the college library, etc.). This blend of social, study and mentoring spaces are intended to give students support for transition to the work force and offer a place for potential employers to showcase student work.
Internally, a three-story commons overlooks the campus quadrangle and serves as the campus living room and allows for the showcasing of student work. A rich mix of program spaces keeps these commuter students on campus all day and into the evening. Dining, a coffee shop, gaming lounge, and group study rooms ring the student center commons. An amphitheater on the second and third floors cantilevers into the commons and looks out onto the campus quadrangle. The amphitheater provides a theatrical experience giving students the ability to see and be seen, thereby reinforcing a sense of community and belonging. Other program components housed in the student center include a 500-person events center, student club and organization offices and workspace, classrooms, career services, the writing center, and the college library. The educational and recreational programs enhance student life at Daytona State College and provide critical support services for transition to the work force.
The site is surrounded by vast surface parking lots facing International Speedway Boulevard, a main arterial road that connects Daytona’s famed beachfront with the rest of Florida. The campus turns its back on Daytona with inward looking and internally accessed buildings surrounded by these parking lots between the boulevard and the campus. This new student center was to transform the public appearance and experience of the campus by being a gateway between Daytona State College and its adjacent community thereby strengthening town-and-gown relationships. The design responds to this unique site condition and aspirational goal to change the campus's relationship to the town by creating an organically curving coral stone and bronze wall that faces International Speedway Boulevard and embraces the visitor like two outreached arms forming a landscaped welcome lawn at the campus entry. Rising from the center of the gently curving wall is a bronze portal framing the opening to the student center and giving passage to the main quadrangle and campus beyond. This composition of elements and regional materials establishes an outward presence to the campus along Daytona’s International Speedway Boulevard and expresses an openness and welcome to the community.
Additionally, the biggest structural challenge for this project was related to a site condition that required cantilevering two stories of the student center over a major campus pedestrian pathway that connected the campus parking lots with the center campus quadrangle. The student center footprint impeded the pre-existing pedestrian connection between parking and the quadrangle. To retain this important connection, we lifted the building above grade and cantilevered a portion of the second and third floors over the pedestrian pathway. The challenge was creating a rigid frame that would not want to overturn while transferring lateral forces. The solution was to create a Vierendeel truss at the southeast corner of the building, before the cantilevered portion of the floor, and to attach the side of the truss to a freestanding stair tower. The structural frame of the stair tower was a reinforced cage or frame that acted like a mast supporting the truss which supported the second and third floors and allowed pedestrian to move freely beneath on grade.
The final composition of the student center was a result of a collaborative design process that guided and incorporated the objectives of the design committee. The design committee was made up of the student representatives (president and vice president of student government), faculty from student support services, college administrators, college trustees, and councilmen from Volusia County. This diverse and rich board was charged with shepherding the design process. During the process, we offered multiple options for meeting their aspirations and enclosing the program. This design committee selected the final concept; however, the giant portal in the center of the entry facade was a direct contribution from the committee and was not part of the original concept. During schematic design, the councilman from Volusia County, who sat on the committee, expressed an interest in having this project more aggressively express its openness to the community. He suggested that a formerly proposed tower, in concept design, was not appropriate as an expression of welcome and openness because it had defensive and isolating historic origins. He instigated a discussion about the appropriateness of a welcoming element that would transform Daytona state College’s appearance in the community. From these conversations a ninety-five-foot-high bronze portal developed as an iconic symbol along International Speedway Boulevard that figuratively and literally connects the center of campus with the surrounding community.
The design of transparent south-facing building wings, like embracing arms to express welcome and openness, also presented a significant design challenge for combatting solar heat gain in the harsh Florida environment. We took the opportunity to design image-forming bronze solar screens and a naturally ventilate bronze rain screen facade to reduce heat gain and demand load on the cooling systems. Custom bronze perforated solar screens are veiled over large, glazed areas of the south and west facades to limit heat gain and glare while allowing views outward from the classroom, tutoring center, and career services. Other sustainable strategies include the use of pre- and post-consumer recycled materials, reclaimed rainwater for irrigation, photo optic lighting, and high-efficiency heating ventilation and air conditioning systems.
The materials that contributed to successfully manifesting the design idea were:
- Custom fabricated precast concrete panels that were colored and textured (by Gate Precast) to replicate natural Floridian coquina/coral stone for the large wall surfaces;
- Custom bronze perforated solar screen panels (by Bunting Architectural Metals) veiled over the large aluminum and glass curtainwall areas to reduce heat gain on the building and allowed the occupants views outside.
Email interview conducted by John Hill.

















