US Building of the Week
Lantern Studio
The aptly named Lantern Studio, which houses a scooter workshop and other spaces for a creative couple, glows at night through a wall of slatted wood. Flavin Architects answered a few questions about the backyard retreat in suburban Wellesley, near Boston.
Location: Wellesley, Massachusetts, USA
Client: Kathy and Ed Kelly
Architect: Flavin Architects
- Design Principal: Colin Flavin, AIA
- Project Manager: Howard Raley, AIA
- Project Architect: Doug Ludgin, AIA
Structural Steel: Kelley Welding
Landscape Architect: Wagner Hodgson Landscape Architects
Contractor: Brookes + Hill Custom Builders
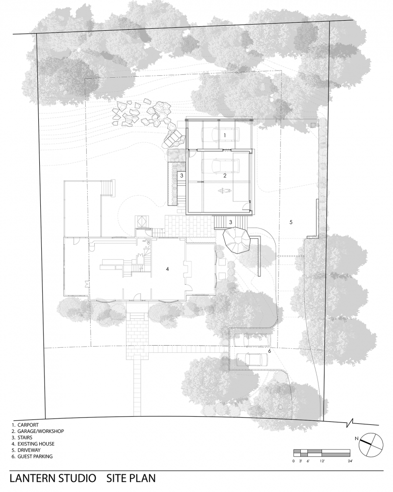
Site Area: 0.46 acres
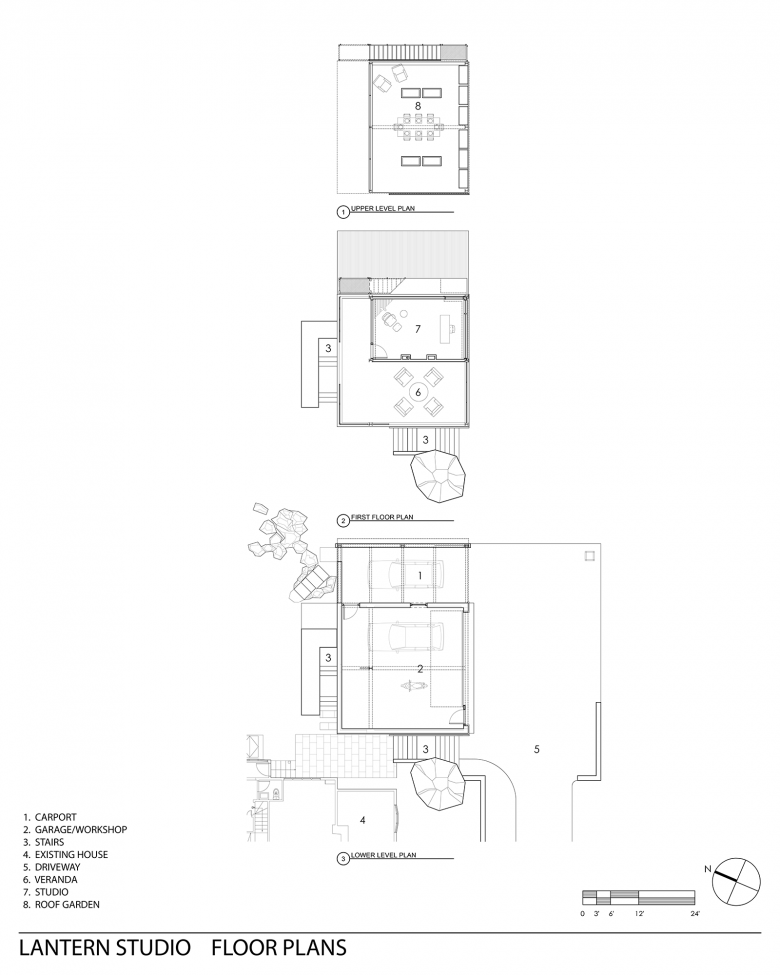
Building Area: 2,608 sf
Flavin Architects conceived a retreat built of steel, wood, and concrete. We situated the structure in an existing garden behind a Dutch Colonial home in Wellesley, Massachusetts. While it is visible from the street, the setback respects the context: suburban houses host their accessory garages behind primary dwellings. The three-story, free-standing garden building offers a sanctuary from the busy day-to-day life of the home. The structural steel frame of the building is left exposed. A mahogany screen drapes the street-facing side of the structure, creating privacy for the client and catching the dappled light that filters through the surrounding trees.
This free-standing garden building is conceived as a creative sanctuary from the busy day-to-day life of the home. Working from the idea that our best and most creative work is done in a calm space with minimal distractions, each level of the building is a retreat for the client’s creative passions of antique Vespa scooter restoration, writing, antique fountain pen repair, and vegetable gardening. The lowest level, bermed into the sloping site contains the 673-sf garage workshop to repair antique Vespa scooters. Additional covered parking is provided under an adjacent carport with exposed steel beams topped with metal corrugated roofing. On the middle floor, set a few steps above the backyard, is the only fully conditioned space, the 252-sf writer’s retreat, also serves for repairing fountain pens. The balance of the middle floor is an open-air veranda, which gets its privacy from the street by a 3-story mahogany screen. The top level is a 590-sf roof deck, providing a haven for vegetable gardening, away from deer and squirrels that plague ground-level. An outdoor dining table and chairs surrounded by planters inspires farm-to-table entertaining.
The building is placed directly behind a spectacular glacial erratic boulder. The boulder becomes the focal point of the backyard entrance while the monolithic stone stairs wind directly behind it. Low grasses are planted around the boulder, in keeping with the manicured gardens typical of the neighborhood. The landscape to the rear of the lot is left raw and wild, with rock outcroppings that nature can overtake in time.
Inspiration for the roof deck was found in the roof terrace of Villa Savoye, Le Corbusier and Pierre Jeanneret’s 1931 masterpiece. Rather than leave the third level completely exposed, the steel frame continues upward to reinforce the idea of an outdoor room.
The east and west elevations of the steel frame are draped with a curtain of slender mahogany strips, that screen the nearby busy road from the veranda and roof deck. The appearance of the building changes throughout the day; the wood screens are back lit in the morning sun and front lit in the afternoon with dappled light filtered through the adjacent tree canopies. At night the wood screens glow like a lantern.
Email interview conducted by John Hill.
- Doors & Windows: Loewen
- Pedestal flooring system: Bison Innovative Products
- Steel railing cables: Feeney, Inc.
- Garage door: Garaga Inc.
Related articles
-
Spaces for Cars – And for People
Kennedy & Violich Architecture, Ltd. (KVA) | 02.03.2026 -
-
-
-












