Schwartz and Architecture
Lichen House
Lichen prevalent on the Oaks on an 8.5-acre site in Glen Ellen, north of San Francisco, inspired the design of the aptly named Lichen House. Schwartz and Architecture (S^A) designed a T-shaped plan to fit the site and roof overhangs with metal fins that create lichen-like shadows. The architects answered a few questions about the Lichen House.
Project: Lichen House, 2017
Location: Glen Ellen, California, USA
Architect: Schwartz and Architecture
Design Principal: Neal J. Z. Schwartz
Project Team: Wyatt Arnold, Christopher Baile, Erik Bloom, Laura Huylebroeck
Structural Engineer: iAssociates
Energy Consultant: Loisos + Ubbelohde
Landscape Architect: Surface Design, Inc.
Lighting Designer: PritchardPeck Lighting
Interior Consultant: Standard Studio, LLC
Contractor: Eames Construction, Inc.
Site Area: 8.52 acres
Building Area: 3,500 sf
What were the circumstances of receiving the commission for this project?
S^A had developed a custom, but lower budget small home in Sonoma in response to what we were seeing developing in the Pre-Fab industry. Many people with unique sites in nature but with limited budgets were considering pre-fabricated construction models but ultimately became disenchanted with them in their inability to really customize the design to particular sites. The client for the Lichen House visited this smaller home, the Hydeaway House, and was interested in how it was able to tailor itself to the site with an economy of means. Originally planned to be a smaller vacation home, over the course of the project, the house came to be seen as a more full-time residence and thus the scope and expense expanded.
Please provide an overview of the project.
For this home in the Sonoma Valley, the complex symbiotic relationship between the site’s Ramalina lichen and its Oak trees hosts provides inspiration for a design hyper-attuned to the nuances of nature. The Lichen House works in concert with nature’s mechanisms, attempting to expand our understanding of them through the man-made.
What are the main ideas and inspirations influencing the design of the building?
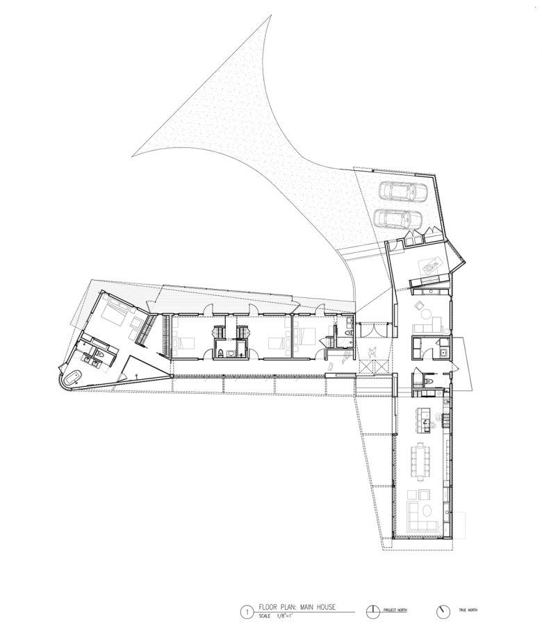
The Lichen House is nestled among the fog and oaks in the hills above California’s Sonoma Valley. The free-ranging branches of the site’s mature trees support veils of draping Ramalina Lichen that filter sunlight, capture moisture and nutrients for their host oaks, and remove pollutants from the air through photosynthesis. A hypersensitive organism, lichen is a bellwether for the environmental health of this unique microclimate.
The precise symbiotic relationship between species of lichen and their host environment provides inspiration for an architecture specifically tailored to its site — both as a response to it and an expansion of its best attributes. The lichen’s ability to freely seek out and extend its net toward sustainable conditions also inspires a fluidity of movement and gesture in the architecture. We harness this opportunistic mindset to allow the building form to find its geometric shape.
How does the design respond to the unique qualities of the site?
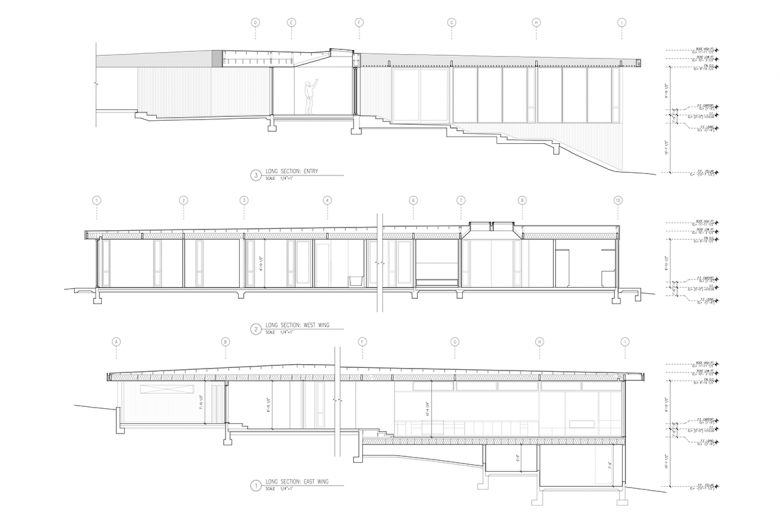
The home’s ends pull toward long expansive views to the south and west with the freedom to precisely dial in orientation to focal points in the landscape. Each room is then carefully tuned to its own spatial “microclimate” considering privacy, views, solar orientation, quality of light and air flow. A series of gardens and open spaces work in concert with each zone of the house's interior. The roof’s southern edges are filled with a series of undulating metal fins, which are both a formal reference to the surrounding lichen’s geometry as well as a spatial reference by recreating the filtered dappled light of the lace lichen’s net.
Was the project influenced by any trends in energy-conservation, construction, or design?
Integral to the concept and design of the Lichen House is a porous and breathable building envelope accepting, filtering, and processing external conditions much like the lichen that inspires the design. The site's abundant lichen only thrives under specific advantageous environmental conditions, morphing its orientation, porosity and geometry to suit its site — a practical and functional metaphor for our own building performance goals.
Beginning with the strategic solar orientation and geometry, the Lichen House owes its form to passive thermal tactics — the maximization of daylight and expansive southern views protected by a deep overhanging shade trellis. The lichen trellis filters the high summer sun and allows solar heat gain in the winter when the sun is low in the sky. Inspired by the breathable filter of the lichen's net, a south facing unconditioned hallway space with a series of operable windows along the private wing of the home serves as an interstitial buffer zone. This buffer zone simultaneously protects the sleeping quarters from direct southern exposure, dampening heat loss and heat gain while also promoting natural airflow — effectively minimizing the conditioned floor area and required heating/cooling loads of the house.
Similarly, the roof itself acts as a protective buffer zone. Taking its formal cues from the slopes required to direct the flow of rainwater run-off, the resultant roof form of low sloping ridges and valleys is vented though the fascia, pulling heated air out through the attic cavity. The cushion of cooled air within the attic buffers and protects the conditioned spaces of the home below. At the end of each roof valley, the run-off plunges off the roof through a scupper and is directed to an underground cistern and used to irrigate adjacent landscaping.
While designed around passive strategies, the mechanical systems of the Lichen House aim to maximize efficiency within the porous envelope. Heating is achieved through a multi-zone hydronic radiant heating system in the floor slab powered by an electric high-efficiency boiler. This is backed up by a series of split ductless heating and cooling units in each sleeping area. Breaking the conditioned areas of the house into a manageable network of actively conditioned spaces allows for a highly efficient and flexible home. Additionally the home is powered by a 5.5Kw solar PV array sized to offset the electrical demands of the home with a "net zero" energy use goal.
What products or materials have contributed to the success of the completed building?
All the materials were selected to blend in with the natural surroundings, weather naturally, and demand little maintenance. In particular, the Lichen Trellis went through many incarnations — from steel to concrete to aluminum. In the end, a series of lightweight aluminum fins were used because of their durability and ability to easily bend, creating the lichen-like shadow patterns. Working from our template, the fabricator laid out the panels and then used a series of strategically placed pop rivets to achieve the design.
Email interview conducted by John Hill.
Related articles
-
-
The Three-Body Problem: Trapped in a Wave Sandwich
Eduard Kögel, Scenic Architecture Office | 13.04.2026 -
-











