US Building of the Week
Louis Armstrong Center
More than fifteen years in the making, the Louis Armstrong Center is the final piece of the campus of the Louis Armstrong House Museum in the neighborhood of Corona, Queens, where jazz great Louis Armstrong lived for nearly thirty years. Caples Jefferson Architects answered a few questions about their design of the recently inaugurated Louis Armstrong Center.
Location: Corona, Queens, NY, USA
Clients: Dormitory Authority of the State of New York (DASNY), City University of New York (CUNY), Queens College, Louis Armstrong House Museum
Architect: Caples Jefferson Architects
- Design Principals: Everardo Jefferson and Sara Caples
- Project Architect: Michael Behrman
MEP/FP Engineer: WSP
Lighting Design, Acoustics and A/V: Arup
Interior Designer: Caples Jefferson Architects
Contractor: Paul J. Scariano, Inc.
Construction Manager: Hill International
Sustainable Design: Steven Winter Associates
Graphics and Exhibit: C&G Partners, Potion Design, Art Guild
Site Area: 5,000 sf
Building Area: 14,000 sf
See bottom for Important Manufacturers / Products.
It was an open RFP (request for proposals) issued by DASNY in 2006. Over forty firms responded. There were there rounds of selection and our firm was awarded the project at the conclusion of this process.
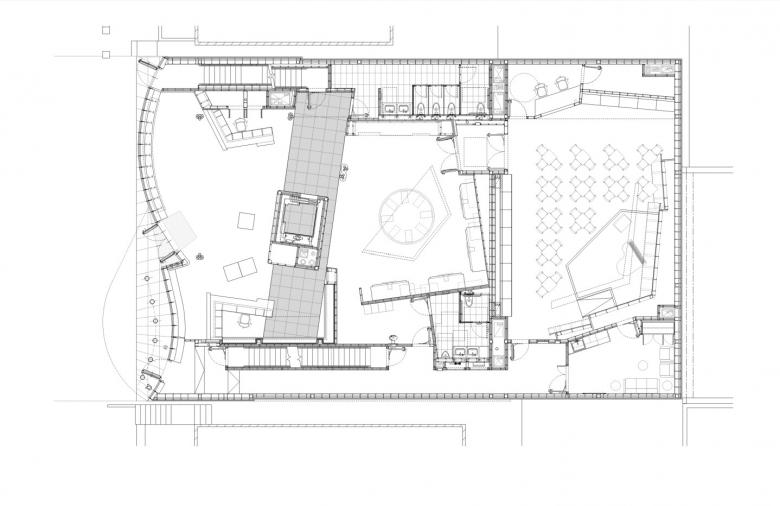
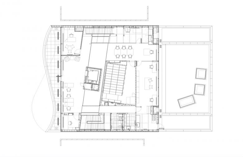
Designed by Caples Jefferson Architects, the new Louis Armstrong Center at the internationally renowned Louis Armstrong House Museum in Corona, Queens, is a place for education, entertainment, and research. It is the permanent home for the 60,000-piece Louis Armstrong Archive (the world's largest for any jazz musician) and a 75-seat venue for performances, lectures, films, community events and educational experiences. The Center also features Here to Stay, an exhibition curated by multimedia artist Jason Moran, which explores Armstrong’s five-decade career as an innovative musician, rigorous archivist, consummate collaborator and community builder.
Inside the building, visitors move sequentially through greeting and exhibit spaces lit by daylight cutting in and out through the windows. A vast archival collection of recordings, manuscripts, and personal artifacts is housed on the second floor, along with a reading room for visiting researchers and offices for museum staff.
The Center also includes The Jazz Room, a deep-red-and-mahogany music room where live musicians can rehearse and perform. The space is topped by a tilted roof plane whose flowering green roof is viewed from the conservator's workroom. Armstrong’s legacy is honored not only by the many interactive exhibits, but by the live performances and open rehearsals that welcome the visitor in this culminating space.
Located across the street from the existing House Museum, the new 14,000-square-foot building is the final piece of a larger campus that includes the home itself, Armstrong’s garden, and now the Center, designed as an interpretation of Armstrong’s infinite love of music.
Guests are welcomed to the Center by a large canopy and front wall, which create an urban forecourt that defines the building within the community and invites visitors in. The curving facade and the counterpoint of the curving canopy inflect back towards Louis and Lucille’s home across the street. Their home, their garden, and the new center form a complex facing each other on the block where Louis Armstrong lived.
In a neighborhood comprised of modest two-story houses, the firm kept the building in the scale of its surroundings, while creating an urban precinct that notes the singular work of the man whose music underlies so much of what we listen to today. The center simultaneously fits in and stands out — a paradox that reflects Armstrong’s life and work.
Through a process of working with the museum and with the surrounding neighborhood, the project developed this form and layout fairly early in the process. Our clients were so committed to the design, they preserved it through many challenges including a zoning change and a construction process greatly extended by the pandemic.
When the building design was complete, almost fifteen years ago, it was indeed advanced in its sustainable aspects ranging from a fully sealed skin and rainscreen stucco walls, to green roofs and the curtainwall with its embedded cooling metal mesh screening. Even in 2023, it merited a LEED Silver rating.
The curved front wall is a faceted flat-glass facade that utilizes metal fins — a lesson from Gestalt psychological theory — to create the illusion of curving. This perceived curvature recalls both the rough jazz and love of lyricism that were Armstrong’s leading achievements.
Within tall, double-glazed glass units, a layer of woven brass mesh reflects the neighborhood by day and acts as a beacon to evening performances at night. The brass coloring mirrors the instruments Armstrong surrounded himself with, also appearing on the underside of the undulating canopy and in the incipits on the paired interior columns.
Email interview conducted by John Hill.
- Facade cladding: Curtain wall, custom, Alutech; Metal panels, Revere Copper Freedom Gray; Canopy soffit, AIA Sheet Metal, custom bronze panels
- Flooring: Dyed polished concrete, Ameripolish
- Carpeting: Near and Far by Interface
- Exterior Doors: Schüco
- Interior Doors: Lambton flush wood doors
- Ceilings: Acoustical plaster ceiling system, Even Better by Fellert; Acoustical panel millwork: Micro-perforated panels by RPG
- Glazing: AKMA Glass Company
- Roofing: Flat Seam Metal, Zinc-coated copper, Freedom Gray by Revere Copper; Protected Membrane Green Roof Assembly, Barrett Roofing and Green Roof Technologies
- Interior lighting: USAI, we-ef, iGuzzini, Lumenpulse
- Interior furniture: Knoll, Steelcase
- High Density Storage System: Spacesaver












