U.S. Building of the Week

LR2 Residence

Montalba Architects | 23. March 2020
Photo © Kevin Scott
Project: LR2 Residence, 2018
Location: Pasadena, California, USA
Client: Withheld
Architect: Montalba Architects
  • Design Principal: David Montalba
Structural Engineer: John Labib and Associates 
MEP/FP Engineer: PBS Engineers 
Landscape Architect: EPT Design 
Lighting Designer: Sean O’Connor Lighting 
Interior Designer: Brandon Quattrone 
Contractor: Sarlan Builders 
Civil Engineer: Orlando and Associates, Inc.  
Waterproofing Consultant: Roofing and Waterproofing Forensics, Inc. 
Surveyor and Soils Engineer: Irvine Geotechnical, Inc.  
A/V Consultant: Marconi Radio 
Building Area: 4,200 sf 
Photo © Kevin Scott
What were the circumstances of receiving the commission for this project?

The project was commissioned to us by a past client, one whom the firm previously designed another home for. This project was designed as a creative home base, separate from their primary residence.

Photo © Kevin Scott
Please provide an overview of the project.

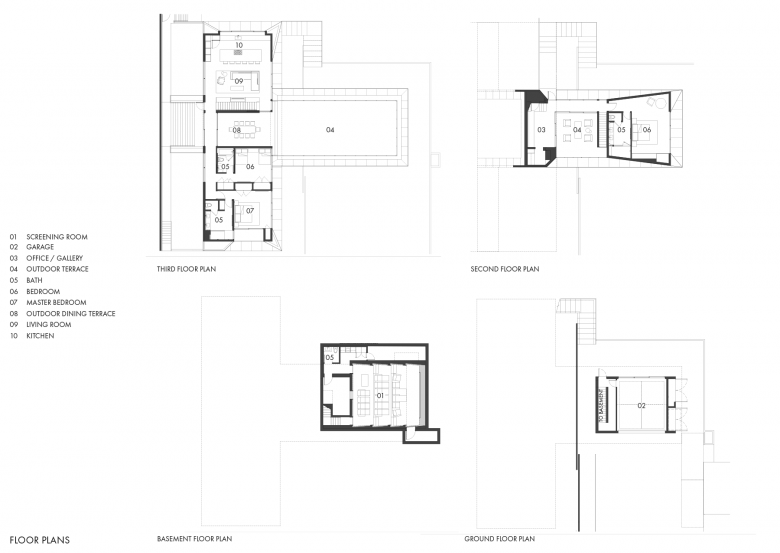
The LR2 Residence overlooks Pasadena and its adjacent mountains from its hillside perch. This new 4,200-square-foot house is made up of several distinct living volumes and programs. In response to the client’s desire to retain a significant portion of the existing flat pad between adjacent slopes, the volumes are stacked to create a rotated series of rectangular masses abutting the hillside, each with its own take on indoor/outdoor space. Outdoor breezeways, porches, courtyards, covered walkways and an immense rooftop deck extend the reaches of the limited floor area to the natural chaparral and views beyond. The house includes guest suites, a home office, gym, and theatre screening room, as well as abundant outdoor spaces, all taking in views of the surrounding hills and valley. 

Photo © Kevin Scott

LR2’s programmatic elements peel away from the primary group of building blocks and shift to follow the rough slope of the hillside terrain. The intended entry sequence flows with the landscape, guiding visitors along a reaching sidewalk that extends under the mass of the building. The compression of the resulting space offers a unique arrival experience incorporating the natural creek just beyond front door, which is nestled on the second floor. 

Photo © Kevin Scott
What are the main ideas and inspirations influencing the design of the building?

A “matchbox” concept is the driving force behind the design of this studio residence in Pasadena. The layered volumes step downhill, creating open spaces between the structures for integrated planting areas, covered terraces, and dual linear water features for passive cooling. 

Photo © Kevin Scott
How does the design respond to the unique qualities of the site?

The design embraces the natural grade of the hillside and flows with the landscape of the site. Throughout the residence indoor and outdoor spaces flow together, almost becoming indistinguishable. The entry space flows with the landscape, guiding visitors along a reaching sidewalk that extends under the mass of the building. The compression of the resulting space offers a unique arrival experience incorporating the natural creek just beyond the front door, which is nestled on the second floor.  Following the natural grade of the property, the front stairs create an arching path to a bridged entry portal, all the while showcasing panoramic views of the house. As the front door opens, the dark, angular façade of paneled concrete gives way to a light-filled interior of soft wood and bright white finishes. Upon entering, visitors find themselves within an indoor/outdoor living space. Once inside the residence, stairs descend to a private screening room or ascend to the third floor living spaces.  

Photo © Kevin Scott
How did the project change between the initial design stage and the completion of the building?

Throughout the process, the project was refined in terms of its systems, engineering and detailing but we were fortunate to preserve much of the same ideas and intent from the conception phase through construction. Its complexity increased along the way, but that is not apparent in the end result.

Photo © Kevin Scott
Was the project influenced by any trends in energy-conservation, construction, or design?

With sustainability and energy-conservation in mind, the home was designed with a series of covered exterior areas, shaded with cross ventilation that allow the building levels to support each other as the temperatures rise in the building. Furthermore, a solar system was designed for the rooftop and with its integration to a battery backup of Tesla Power walls intended to support the home off the grid if need be in the future.

Photo © Kevin Scott
What products or materials have contributed to the success of the completed building?

The exterior skin is made of Swisspearl concrete panels that we used as an alternate to a blackened steel panel to save weight and provide a open skin on the exterior of the building as it acts as a rain screen clad system. Another contrasting material was plywood as the entire interior including the floors are all made of plywood panels, which was an attempt to highlight the studio like spirit of the home and its use as a creative home base.

Email interview conducted by John Hill.

Photo © Kevin Scott
Photo © Kevin Scott
Photo © Kevin Scott
Photo © Kevin Scott
Drawing: Montalba Architects

Related articles 

Other articles in this category