US Building of the Week

McDonald’s Disney Flagship

Ross Barney Architects | 21. September 2020
Photo: Kate Joyce Studios
Project: McDonald’s Disney Flagship, 2020
Location: Orlando, Florida, USA
Client: McDonald's Corporation
Architect: Ross Barney Architects
  • Design Lead: Carol Ross Barney, FAIA, HASLA
  • Senior Project Manager: Ryan Giblin, AIA, LEED AP BD+C
  • Design Team: Mordecai Scheckter, AIA, LEED AP; Yifan Liang, AIA; Ryan Gann; Itzi Velazquez; Jason Vogel; Shinya Uehara
Architect and Engineer of Record: CPH Corporation
Landscape Architect: Ross Barney Architects (Misa Inoue, ASLA)
Structural Engineer: Goodfriend Magruder Structure
MEP Engineer: WSP
Lighting Designer: Schuler Shook
General Contractor: Southland Construction
Building Area: 8,024 sf (interior), 5,965 sf (exterior patio)
Photo: Kate Joyce Studios

The McDonald's Disney Flagship aims to become the first Net Zero Energy quick service restaurant and in doing so represents McDonald’s commitment to building a better future through "Scale for Good." Incorporating visible and impactful symbols of change, the restaurant uses architecture and technology to firmly place itself in the future.

Under a canopy clad in solar panels, the restaurant is a sustainable and healthy response to the Florida climate. Energy consumption is reduced by optimizing building and kitchen systems. On site generation strategies include: 18,727 square feet of photovoltaic panels, 4,809 square feet of glazing integrated photovoltaic panels (BiPV), and 25 off-the-grid parking lot lights produce more energy than the restaurant uses.

Photo: Kate Joyce Studios

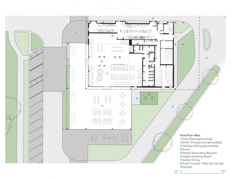
Taking advantage of the humid subtropical climate, the building is naturally ventilated roughly 65% of the year. Jalousie windows, operated by outdoor humidity and temperature sensors, close automatically when air-conditioning is required. An outdoor "porch" features wood louvered walls and fans to create an extension of the indoor dining room.

A robust education strategy was a goal of the project. The architecture itself becomes a narrative tool in addition to interior wall graphics, interactive video content, and gaming unique to this location. The restaurant teaches visitors of all ages how to be more dedicated environmental stewards at a building, system, and individual scale.

Photo: Kate Joyce Studios

As an energy intensive building typology and arguably an enabler of automobile culture, the McDonald’s Disney Flagship explores its role as a sustainable steward; revolutionizing an industry to be more thoughtful, strategic, and impactful.

Located within the Walt Disney World Resort, this iconic McDonald’s has made a statement to visitors for over 20 years. The original Happy Meal inspired 1998 design by Venturi Scott Brown utilized narrative storytelling that inspired the 2020 re-make. Instead of focusing on history, the new restaurant firmly places itself in the future.

Photo: Kate Joyce Studios

McDonald’s believes that as one of the world’s largest restaurant companies, they have the responsibility and opportunity to take action on some of the most pressing social and environmental challenges in the world today. Operating 37,000 restaurants in over 100 countries around the world, serving 69 million people each day, every change makes a big difference. McDonald’s has committed to prevent 150 million metric tons of C02 equivalents (CO2e) from being released into the atmosphere by 2030, a reduction of 36% from a 2015 base year.

Photo: Kate Joyce Studios

The design team took inspiration from McDonald’s "Scale for Good." This initiative goes beyond the impact of buildings and utilizes the United Nation’s Sustainable Development Goals to provide a holistic and ambitious impact at a global scale. From partnering with farmers on sourcing to improvements in packaging/recycling; to a commitment to provide healthier menu options and an acknowledgment that for many employees this is a stepping stone for personal development. As outlined in the Scale for Good strategy: "Everyday all around the globe, McDonald’s is putting people, processes and practices into place to make sustainable the new normal – for our business, society, and the world at large."

Photo: Kate Joyce Studios
Photo: Kate Joyce Studios
Photo: Kate Joyce Studios
Site Plan (Drawing: Ross Barney Architects)
First Floor Plan (Drawing: Ross Barney Architects)
On-site power generation (Drawing: Ross Barney Architects)
Outdoor comfort (Drawing: Ross Barney Architects)
Landscape strategy (Drawing: Ross Barney Architects)

Related articles 

Other articles in this category