US Building of the Week
Narrow House
Narrow House is an apt name for this townhouse in Brooklyn that is situated on a lot that is approximately half as wide as a typical lot. The architects at Only If searched out such a "leftover" space, ending up with a light-filled, open space just eleven feet wide. The architects answered a few questions about Narrow House.
Location: Bedford-Stuyvesant, Brooklyn, New York
Client: Karolina Czeczek & Adam Frampton
Architect: Only If
- Design Principals: Karolina Czeczek & Adam Frampton
- Project Team: Matthew Davis, Jedy Lau, Francesca Pagliaro, Jon Siani, Yue Zhang
MEP/FP Engineer: Plus Group Consulting Engineering PLLC
Lighting Designer: Dot Dash
Site Area: 1,333 sf (124 m2)
Building Area: 2,815 sf (262 m2)
See bottom for Important Manufacturers / Products.
The project was self-initiated, developed, and is occupied by the architects themselves, who acquired the undervalued land in 2015. In this sense, the project also seeks a model of architectural agency, beyond the client-architect service model, to produce experimental forms of housing. "Finding a vacant lot in New York City was the outcome of six-month-long search for undervalued, unusual, or leftover spaces that could become space for living," says Adam Frampton, principal of Only If. "When we found the vacant lot we knew it had potential, but we were unsure if it could be developed as-of-right under the zoning. We had to take a risk."
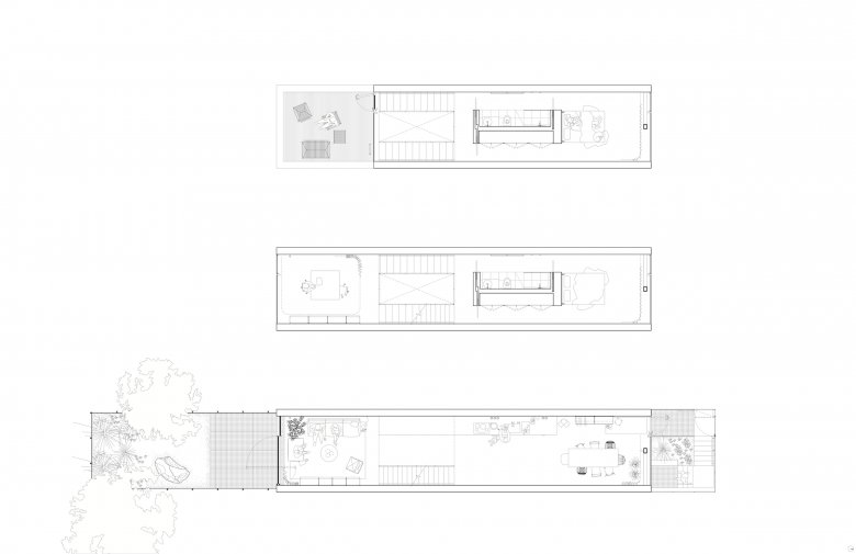
Located in the Bedford-Stuyvesant neighborhood of Brooklyn, the Narrow House is situated on an atypical New York City lot measuring 13’-4” wide by 100’ deep — slenderer than the normative 25-foot-wide zoning lot. Despite its non-conformity, the site met other specific criteria which enabled development of the vacant lot. Since 1961, the Zoning Resolution has generally prohibited new residential buildings on lots less than 18 feet in width.
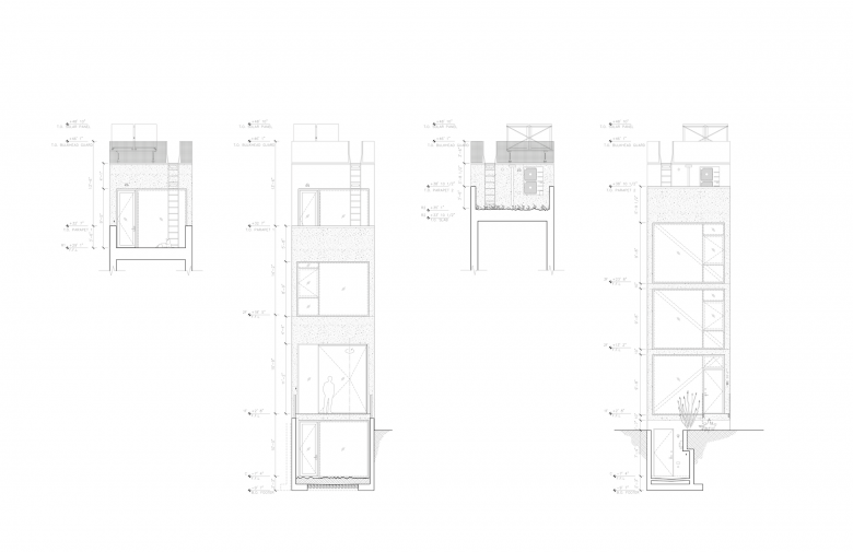
Aside from two lateral walls, the house is characterized by an absence of interior walls, rooms, and corridors. The openness — exactly 11’ clear inside — enables daylight penetration throughout, but also an unusual lack of separation. In lieu of walls, the split-level section creates spatial distinctions between different domestic functions. The vertical void inside the central, perforated steel staircase becomes a lightwell, further introducing daylight towards the middle of the plan.
The ground floor is raised slightly above street level. It provides open space for living, eating, and cooking. A 28-foot-long bar volume, finished in black perforated metal, black stained oak, and black terrazzo, accommodates kitchen components. At the rear of the ground floor, an oversized glass pivot door opens to the rear yard, extending the living space to the outside. Upstairs, different levels provide for two bedrooms and a work study, which could be converted into an additional third bedroom. The bedrooms are separated from other spaces through a plywood volume, containing bathrooms, closets, and pocket doors for privacy.
In parallel to this project, Only If had been researching residual, vacant, and irregular lots throughout New York City. A 2017 exhibition by the architect at the Shenzhen Biennale identified and cataloged 3,600 such lots, 600 of which were owned by the city. The architect was also a winner of an open international competition organized by the AIA New York and New York City Housing Preservation and Development (HPD) to develop 23 city-owned vacant, irregular lots, including an identical, vacant lot directly adjacent to this one. The Narrow House represents a specific architectural proposition but is also a prototype for infill and a polemic on the greater potential for architectural invention in constrained residual urban spaces.
On such a constrained site, the main problem in the design of the Narrow House is not form or outward appearance, but rather daylight and circulation. In fact, the zoning regulations mostly dictate the exterior volume of the building, which is primarily finished in black stucco. The remainder of the facades, facing the street and rear yard, consists of glass curtain wall, which maximizes daylight to the inside and is detailed flush to the adjacent stucco. "Because of its large format windows, the landscape has an unexpected presence inside the house," says Karolina Czeczek, principal of Only If. "The change of seasons, shadows, colors, and movement of the trees keep us very aware of the natural environment, in an otherwise densely built neighborhood."
Physical models were critical in the early design of the project. The plan and section were mirrored several times during this process. Later, a large-scale, 1/2” = 1’-0” (1:24) model was instrumental in terms of testing space, proportions, and daylight. After the construction of the large-scale model, most dimensions were established and fixed. However, development of details and materials were more iterative. There were several versions of curtain wall and windows studied extensively in construction documents. The exterior of the project was changed from, initially, a galvanized metal rain screen, and realized in black stucco with silicone carbide stones sprayed into it. Eventually the interiors were articulated in a more neutral palette, with several moments of warmth, such as the plywood volume on the 2nd and 3rd floor. "As both architects and owners of the project," Czeczek says, "we had unusual control over the interrelationship between design decisions and cost."
The all-electric project is tightly sealed, utilizing spray-foam insulation, and has an energy recovery ventilator (ERV) system. High performance windows and glass doors are double and tripled glazed, respectively, and have low emissivity coatings. Domestic hot water is generated from rooftop solar panels.
The lateral walls consist of reinforced concrete masonry units (CMU), and floors are composite concrete and corrugated metal deck. Based on the lot width, the clear span of floors is close to the maximum limit of the structure without requiring additional beams or support. Floors throughout are topped with a poured polyurethane finish, and the structure is exposed on the ceilings. Without interior shear walls, the building is braced at the front and rear façade for lateral stability. Three diagonal steel braces are also exposed behind the front facade.
Email interview conducted by John Hill
- Flooring: Bolidt Poured Polyurethane
- Rear Pivot door: Grupo Sosoares OS-Pivotante System
- Curtain wall / windows: YKK
- Exterior glass doors: Ikon Windows MB86 triple glazed
- Bathroom fixtures: CEA Italy, Axor / Hansgrohe, Alape, Kaldewei












