World Building of the Week
New York Korea Center
Fifteen years in the making, the New York Korea Center opened its doors in June as the new home of the Korean Cultural Center New York. Located on East 32nd Street, just east of Manhattan's busy Koreatown, the eight-story building features a figural volume that rises behind a clear glass facade. The architects at SAMOO Architects & Engineers' New York office answered a few questions about the project.
What were the circumstances of receiving this commission?This was an international competition in 2009 issued by the Ministry of Culture, Sports and Tourism of the Republic of Korea.
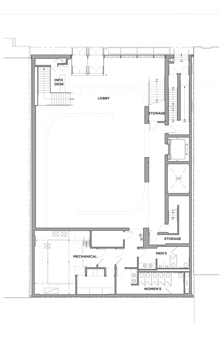
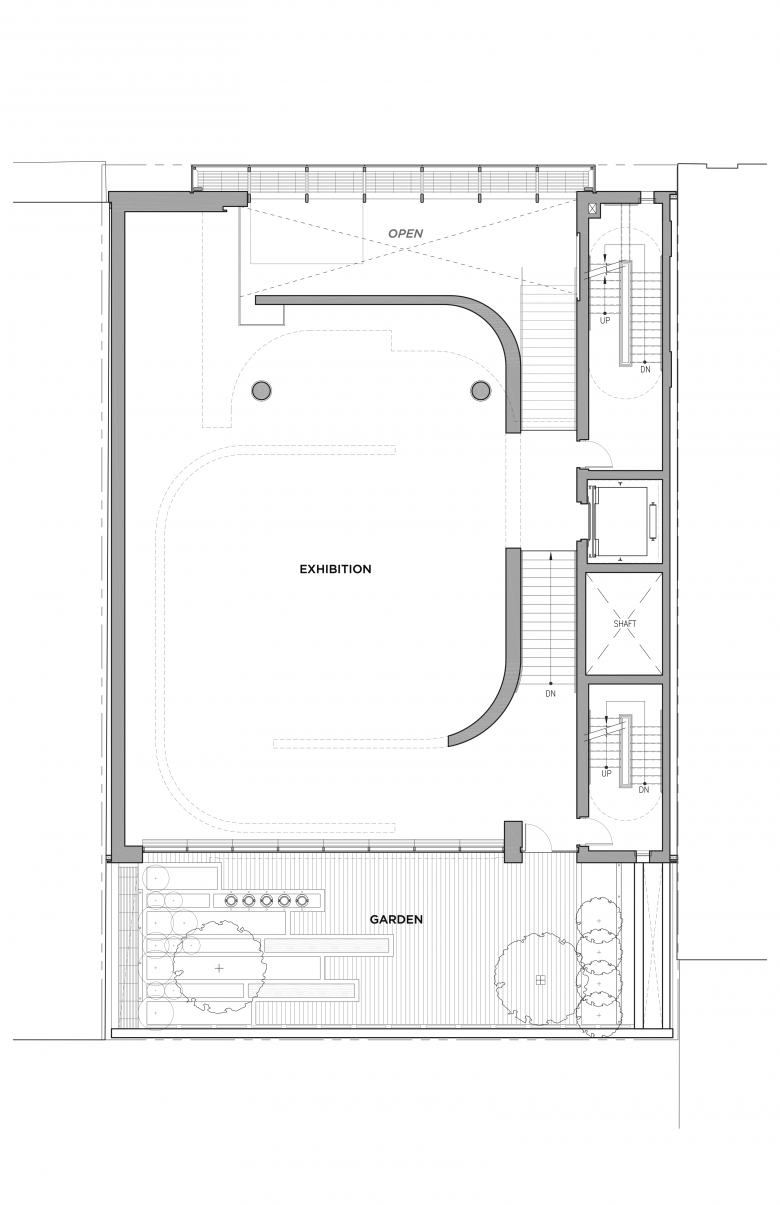
New York Korea Center is the new home for the Korean Cultural Center in New York City. The eight-story, 36,500 square foot cultural center offers spaces for exhibitions, performances, lectures, etc., and provides an international gateway to Korean culture, tourism, and events. The new facility occupies a 6,400-square-foot site on East 32nd Street between Park and Lexington Avenues, extending the vibrancy of Manhattan's Koreatown to the Murray Hill neighborhood.
The design of the Korean Cultural Center is defined by unique sculptural figures that embody the dynamic characters of Korean culture in its form and materiality. A transparent glass facade frames the three illuminated sculptural figures within — artisan plaster representing the subtle colors and textures of Korean Celadon, terracotta’s crude but simple materiality, and milled wood reflecting the tradition of Korean architecture.
Defined by zoning parameters of New York City, the five-story-high glass box atrium displays three dynamic figures that symbolize the beauty of Korean traditions. These icons, which embody the unadorned simplicity of Korean culture, serve as a venue that communicates the culture of sustainability inherent in the aesthetic consciousness of Korea. The iconic figures also embrace the building's three distinct zones: soaring public spaces, semi-public cultural lecture rooms and library, and private administrative offices.
The artisan plaster wall that surrounds the lower exhibition floors represents the graceful colors and textures of Korean celadon, and incorporates the minute cracks that are often seen on its surfaces. The wood screen wall that encompasses the library, cooking class and lecture room floors extend from the open atrium into the interior spaces and symbolize the traditions of Korean architecture. The rough but simple textures of the terra cotta screen on the upper floors represent Korea’s rich pottery culture, and offers privacy for the administrative offices.
The transparency of the facade opens the building’s activities to street life and energizes the surrounding area. The multilayered architectural composition of glass/structure/vessels enriches the experience of its visitors and creates a welcoming space for the community. The transparency of the storefront at street level allows for clear visual connections to the ground floor, which focuses on exhibits related to current popular trends in Korean culture, including music, movies, food, technology and TV dramas — a phenomenon known as the “Korean Wave.” Visitors can also enjoy the library and gardens, as well as performances in its 200-seat theater.
Although the programming of the floors went through slight modifications through the design process, the design concept of the three figures and overall transparency were maintained from the competition scheme to construction.
Email interview conducted by John Hill.
Location: 122 East 32nd Street, New York, NY, USA
Client: Ministry of Culture, Sports and Tourism, Republic of Korea
Architect: SAMOO Architects & Engineers, SAMOO Architecture PC
Executive Architect: Kouzmanoff Bainton Architects
Structural Engineer: Rosenwasser Grossman Consulting Engineers PC
Civil Engineer: Langan Engineeering
MEP/FP Engineer: Syska Hennessy Group
Landscape Architect: SWA/Balsley
Lighting Designer: L’Observatoire International
Facade: Front Inc.
Facade Maintenance: Lerch Bates
Theater Consultant: Fisher Dachs Associates
Acoustics: JaffeHolden
Building Envelope: James Gainfort
Cost Estimating: VJ Associates
Signage: 2X4 Inc.
Code Consulting: Milrose Consultants
Contractor: KSK Construction
Site Area: 6,418 sf (596 m2)
Building Area: 36,546 sf (3,399 m2)
Important Manufacturers / Products:
- Exterior Glazing: Schuco International
- Wall Panels: Fiber C Panels by Rieder
- Terra Cotta Screen: Baguette Screen by Shildan Inc.
- Custom Artisan Plaster Wall: Art-in-Construction, Brooklyn, NY

















