Berg Design Architecture
North Sea
Although Hurricane Sandy, which hit the coast of the US Northeast in October 2012, has had a lasting impact on the lives of people in its path and the future of coastal areas, it hasn't made much of a dent in the desire for waterfront living. A couple whose house was devastated by the hurricane built a new house facing the water – the Long Island Sound instead of the Atlantic Ocean. Adhering to FEMA floor regulations, the modern house designed by Berg Design Architecture embraces its coastal locale and creates a striking presence from the street. The architects answered a few questions about the project.
Location: Southold, New York
Client: Robert and Margaret Bombara
Architect: Berg Design Architecture
Design Principal: John Berg
Project Manager: Alex Chaintreuil
Project Team: John Conway, Vanessa Estrada
Structural Engineer: Armus Engineering
MEP/FP Engineer: Kolb Mechanical
Interior Designer: Margali & Flynn Designs
Contractor: Seifert Construction
Site Area: 25,000 sf (0.57 acre)
Building Area: 2,500 sf
Please provide an overview of the project.
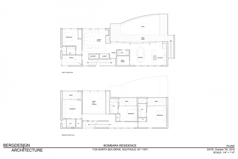
Berg Design was approached by retired empty nesters whose primary residence at Howard Beach was devastated by Hurricane Sandy. Their decision to build a new beach house on the North Folk of Long Island represented a new beginning. Hurricane Sandy had taught the couple to be brave in the face of adversity and to place less value on material possessions. With these important lessons in mind and broad instructions for a "modern, sleek beach house," a residence with interlocking interior and exterior space was designed that seamlessly connected to the landscape. At roughly 2,500 square feet, the home has an astounding four bedrooms with en-suite bathrooms, a home office, double-height living room, kitchen and dining area, including a 32-foot-wide sliding glass door opening and small swimming pool.
What are the main ideas and inspirations influencing the design of the building?
The extremely tight building size and siting restraints from local zoning and state coastal codes were the design team’s greatest challenges but also informed the design principles for the house.
How does the design respond to the unique qualities of the site?
The house is so close to the water that one feels as if they are on a boat. This theme is especially apparent in the upstairs bedrooms; all have private balconies which add to the "cabin" feel. The finished roof deck has been coined the "observation deck" and all rooms have sweeping views of the Long Island Sound.
How did the project change between the initial design stage and the completion of the building?
Following directions from the client, the first design presentation presented essentially the building which you see today. Originally thought as too modern for their tastes, five minutes into the presentation she said, "that is exactly what we want."
What products or materials have contributed to the success of the completed building?
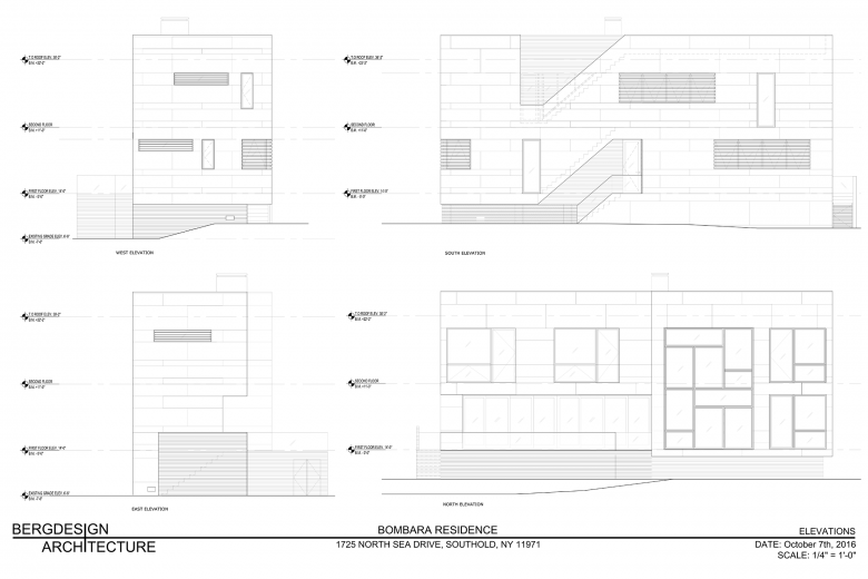
The materials used on the building are all high-tech and durable to stand the test of time. The exterior skin is an innovative fiber cement panel from Germany that does not need to be painted or maintained. It also prevents rot and deterioration by allowing an inch of deep air space between the panels and the building. This “rain screen” system allows the building to breathe and dry out in harsh weather conditions. Natural cedar wood siding accents offer a material counterpoint to the pure white panels. The windows are heavy anodized aluminum frames with energy efficient double pane glazing separated by argon gas and a low e coating. The building was also built in line with FEMA flood regulations.
Email interview conducted by John Hill.
Cabinetry Design/Installation: East End Country Kitchen
Fiber Cement Panels: Equitone
Doors and Windows: Solar Innovations
Lighting: Lutron
Handrails: AGS Stainless
Related articles
-
-
-
The Three-Body Problem: Trapped in a Wave Sandwich
Eduard Kögel, Scenic Architecture Office | 13.04.2026 -
-









