Portland State University Stott Center Renovation + Viking Pavilion
From the outside, the function of the Viking Pavilion added to Portland State University's renovated Stott Center makes itself known: The arena's stadium seating is expressed in a wood wall facing the campus green space. Woofter Architecture answered a few questions about the project.
Location: Portland, Oregon, USA
Client: Portland State University
Architect: Woofter Architecture
- Design Principal: Jonathan Bolch
- Project Architect: Willis DeWitt
- Project Manager: Miles Woofter (also Principal-in-Charge)
- Project Team: Rosanne Lynch, Colin Christensen
- Project Team: Andy Barnard, Lee Sterrett, Anthony Loughran
MEP Engineers: PAE (Mech/Plumbing), Glumac (Electrical)
Landscape Architect: Lango Hansen Landscape Architecture
Lighting Designer: Luma
Contractor: Fortis Construction, Inc
Civil Engineer: KPFF
Branding and Graphics: Downstream
Specifications: m.thrailkill.architect
Sustainability: Brightworks
A/V Consultant: WJHW
Food Service: Duray – J.F. Duncan Industries
Building Area: 142,000 sf
The project was awarded following a competitive public RFP (Request for Proposals) process that included submission of written proposals and then interviews with shortlisted firms.
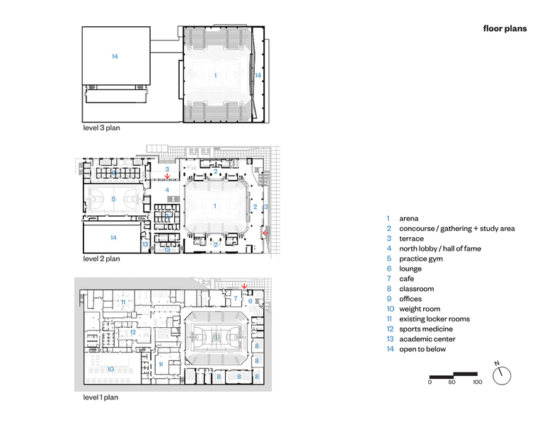
Located on Portland State University’s urban campus at the south end of the historic South Park Blocks, this project involved the revitalization and expansion of PSU’s Peter W. Stott Center. Designed in close collaboration with Sink Combs Dethlefs (now Perkins+Will), the 142,000-sf project completely transformed the existing outdated, inward-focused building, originally constructed in 1966, into a vibrant and welcoming facility that supports a wide range of functions including academics, athletics, and general student use. The centerpiece of the project is the Viking Pavilion, a multi-use arena that hosts events ranging from competitions to concerts to commencements.
The LEED Gold project encompasses areas of renovation and new construction, with the majority of new construction on the eastern, park-facing half, including the new arena and a new exterior. This serves to shift the center of the building’s use and activity to directly engage the Park and the heart of campus. In addition to the arena, new program areas include a diverse range of student gathering and study areas, general use classrooms, and a cafe. Renovations prioritized spaces that benefit all student-athletes, including sports medicine, an academic center, and a new athletics weight room located in a repurposed natatorium.
The multi-use facility with public lobbies, concourses, and lounges is configured to be used daily by students and the entire campus community while also accommodating athletic competitions, symposia, and graduations. Unlike typical venues that sit dark between events, this facility is envisioned as both a campus and civic amenity that is always active with use.
At the heart of the project is the Viking Pavilion, a flexible new multi-use arena that seats 3,000 for games and 3,400 when the lower bleachers are retracted for events. The arena is designed to further promote engagement and connection between interior and exterior spaces, with its upper seating separated from the lower by the main entry level concourse. This creates views into and across the arena from throughout the building as well as the Park and other exterior public spaces.
The atmosphere of the new arena is both intimate and intense, providing a loud home court advantage for the Vikings and creating a distinctive and memorable spectator experience with great views to both the court and to the Park Blocks.
The exterior design of the Viking Pavilion expresses the civic importance of the facility with a simple form that celebrates its unique nature as a multi-use community resource. In place of the existing blank brick walls, generous areas of glazing are carefully distributed to reveal the form of the arena within and to connect the energy and use of the building’s public spaces with the park and campus beyond. Similarly, the site design and public spaces of the building are envisioned as a sequence of spaces that extend the space of the park into the building and the life of the building into the park.
The arena is designed to further promote this engagement and connection between interior and exterior spaces, with its upper seating separated from the lower by the main entry level concourse. This creates views into and across the arena from throughout the building as well as the Park and other exterior public spaces.
Cladding the hovering upper volume of the arena within the building’s new main lobby is a wood wall stretching the entire length of the 200-ft-long space. Designed to evoke the hull of a Viking ship in honor of the University’s mascot, its undulating form of reclaimed is visible from the Park and campus both day and night.
With its location at the southwest corner of Portland State University’s campus, the Stott Center/Viking Pavilion site stretches from the heart of the campus to its edge: from the South Park Blocks to Interstate 405. Because of the barrier formed by the highway, primary pedestrian access to the site is from the Park Blocks to the east and SW 10th Avenue to the north.
To reinforce these existing pedestrian connections and to engage and activate the most prominent corners and adjacencies of the site, two generous new building entries were created at the eastern, Park-facing half of the building, and the existing north entry was maintained and enhanced.
At the southeast, a new accessible main entry was created adjacent to the nearest public street, SW College Street, providing a convenient drop-off and activating a corner of the site that was previously underutilized. This entry leads directly to the main public concourse that encircles and overlooks the arena. Located at the mid-level of the arena seating, the concourse is configured to take advantage of its position between two unique environments: the interior events venue and the exterior space of the campus and Park. The design of the concourse varies on each side of the arena to resonate with and respond to both to its interior use and its exterior adjacency. At the east concourse, a lounge space was created overlooking both the arena and the Park. A covered exterior terrace extends this space to the exterior, providing a series of cascading seat walls and further engaging the Park with the activity of the building. At the north concourse, informal study spaces are created at the corners, overlooking the existing north terrace, SW Hall Street and PSU’s Library (Millar Library) next door to the north. At the south concourse, exterior street-level glazing unites the activity of the interior with the adjacent public street.
A new accessible entry was also created at the northeast corner, giving direct exterior access to Level 1 and the arena event floor. This transformed what was formerly a basement-like space into an active public area with an at-grade connection to the Park. Adjacent to this new entry a student lounge/informal study space was created on the corner, linked both visually and physically with the Park Blocks, Millar Library, and the concourse above. An open internal stair connecting the arena level with the concourse level runs parallel to the Park and is mirrored with an exterior site stair that links the northeast corner of the site to the new terrace. Additionally, this corner contains a café to further activate this corner both day and night.
The project was delivered using Integrated Project Delivery method (IPD-lite) strategies with core members of the owner, design, and construction teams collocated at a dedicated team space created within Fortis Construction’s Portland office. The process continued throughout construction with representation from the owner and design teams collocated with Fortis Construction in the on-site trailer. This close collaboration between owner, design team, and contractor was essential to project success.
Email interview conducted by John Hill.
Related articles
-
-
The Three-Body Problem: Trapped in a Wave Sandwich
Eduard Kögel, Scenic Architecture Office | 13.04.2026 -
-















