U.S. Building of the Week
Ridge House
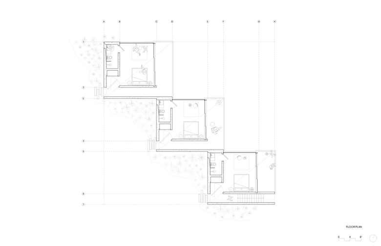
Three staggered concrete volumes follow the gentle slope of a property in Sonoma, California, their roofs lifting up to views of the sky and a canyon. The guesthouse, designed by Mork Ulnes Architects, is also a sturdy house that was put through a test last year. Casper Mork Ulnes explained by answering a few questions.
Location: Sonoma, California, USA
Client: Withheld
Architect: Mork Ulnes Architects
- Design Principal: Casper Mork-Ulnes
- Project Manager: Alicia Hergenroeder
- Project Team: Greg Ladigin, Lexie Mork-Ulnes, Kyle Anderson, Erling Berg, Phi Phan, Signe Madsen, Simon Reseke, Monika Lipinska, Kristina Line
MEP/FP Engineer: Interface Engineering
Landscape Architect: Surface Design
Lighting Designer: Revolver Design
Interior Designer: The Office of Charles de Lisle
Contractor: Nordby Signature Homes
Concrete Supplier: Partners Contracting, Inc.
Site Area: 18.43 acres
Building Area: 1,400 sf (840 sf conditioned)
We had previously designed an extensive remodel for a house in Sonoma. When the house was sold, the new owners enlisted us to design a pool and a guest house.
In this compact Sonoma guesthouse, three board-formed concrete sculpted volumes carve into dry earth, suspending guest rooms over a plateau’s edge. The building is composed of three small volumes that step down with the changing grade, nesting into the site’s natural contours so that the mass of the building is softened into the hillside. Concrete blends with the rich, rusty colorations of the property’s rock, warmer concrete retaining walls, and a dynamic landscaped setting to enhance the impression of its rootedness. A continuous, multi-gabled roof joins the private units into a coherent whole. Solid concrete walls and roof shield the interior from the sun during the harshest times of day. The roof’s oblique ridges direct views from within the house out to the remarkable hills beyond and shade the windows to protect from the intensity of the summer sun.
Views, the natural landscape, and topography were the design drivers for the project.
While the project is firmly rooted on the entrance side of the building, it perches on the ledge of the ridge and reaches outwards towards the canyon and sky on the view side. The guesthouse’s siting, form, and materiality craft dramatic – yet peaceful spaces within the three concrete volumes to give private access to the view.
The initial concept of the building did not greatly change, with the exception of structural design that developed through the detail design phases through collaboration with the structural engineer and contractors. This affected the way the buildings meet the ground plane.
We see a turn to simplicity and a desire for serene environments from clients who come to us seeking a refuge from daily life. With that in mind, we attempted to keep the materials and color palette to a bare minimum so that the focus of the guesthouses was a serene place to enjoy the views of the canyon and the peacefulness of the environs. With regards to energy conservation, radiant heating and cooling were deployed in addition to utilizing the thermal mass of concrete.
As the project was almost entirely built of concrete – chosen for its permanence and fire resistant qualities – the project was literally tested with the Sonoma County wildfires of 2018.
Email interview conducted by John Hill.















