BORO Architects, Cochineal Design

Seaport District Townhouse

BORO Architects, Cochineal Design | 13. November 2018
Photo: Bjorg Magnea

Project: Seaport District Townhouse, 2018
Location: 267 ½ Water Street, New York City, USA
Client: Andreas Giacoumis
Architect: BORO Architects
Design Principal/Project Architect: Darrin Krumpus
Project Team: Abby Richardson, Jimmy Counts
Interior Designer: Cochineal Design
Structural Engineer: Christie Engineering, P.C
MEP/FP Engineer: Levin Engineering
Contractor: August Construction
Metal facade fabrication and installation: Gotham Metalworks
Millwork design consultants: HenryBuilt

Photo: Bjorg Magnea

What were the circumstances of receiving the commission for this project?
The owner and architect had worked together previously on smaller-scale projects. This was their first collaboration on ground-up construction.

Please provide an overview of the project.
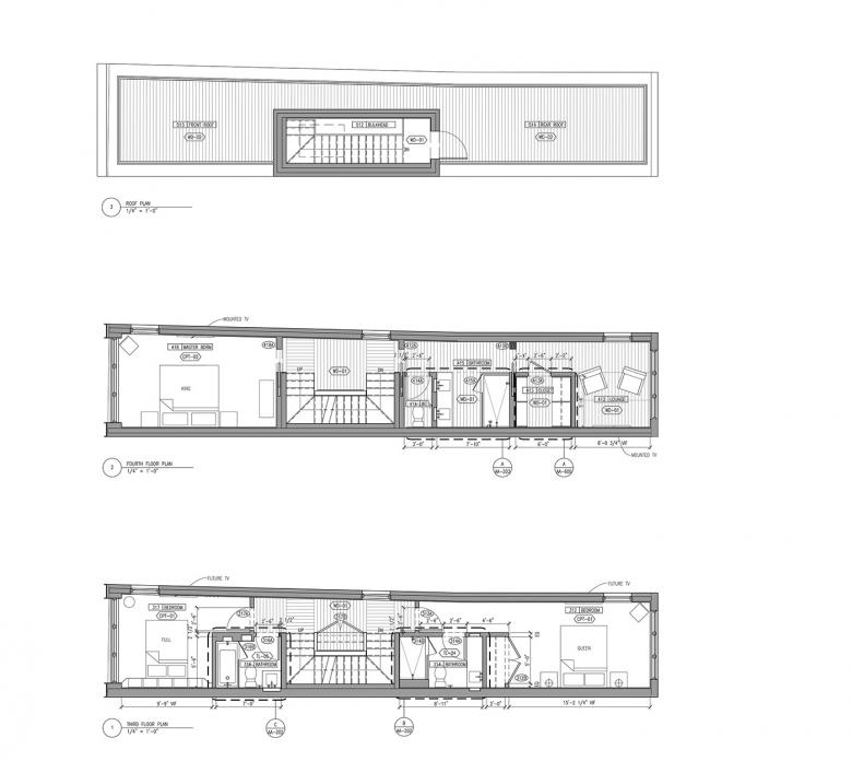
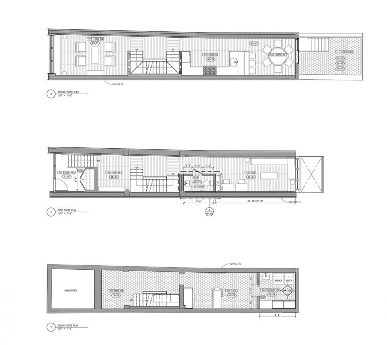
This unique property is situated on a lot that is 12 feet wide by 60 feet deep, half the width of a standard Manhattan townhouse lot. The developer saw potential in the small parcel and built a four-story townhouse.
 
The home is a 3 bedroom, 3.5 bath, four-story, 2700-square-foot townhouse with a rooftop with Ipe decking, a grille, and seating area, as well as a full basement, a gym and a large-sized laundry room. The interior design — inspired by an art gallery concept — is airy, full of light, and space-conscious. The result is a spectacular brand new single-family home with views of the Brooklyn Bridge from both the fourth floor and rooftop.

Photo: Bjorg Magnea

What are the main ideas and inspirations influencing the design of the building?
The narrowness of the house lent itself to a consistent quarter-inch reveal. This fine detail throughout the space forms baseboards, trims, stair profiles, handrails, door jambs, and window casings. Ash-wood floors and white walls contrast with silhouetted windows while concrete counters mingle with custom encaustic tiles and oil-rubbed bronze fixtures. Rather than adding carpeting, rotations in wood flooring suggest new thresholds and pocket doors serve as dividers when desired.

Photo: Bjorg Magnea

What are the main ideas and inspirations influencing the design of the building?
The architect located the staircase at the center of the building, emitting natural light from both ends of the house into all rooms. Windows are located between the studs and pipes; windows connect the stairwell to the naturally lit corridor. To open up the space, the house has 10-foot ceilings; custom 98-inch-high pocket doors were designed that draw the eye up and allow pieces to be moved in and out of spaces more easily. When the pocket doors are open, the house feels like one long open gallery space. When doors close, the custom oil-rubbed bronze hardware add simple, sophisticated decoration.

Photo: Bjorg Magnea

What products or materials have contributed to the success of the completed building?
The facade of the Seaport District Townhouse blends into the surrounding neighborhood featuring a façade made of painted steel and zinc panels inspired by the seaport-era cast-iron finishes. Located in a landmark neighborhood, the facade exudes an industrial feel, with a unique zinc exterior finish that delineates it from its neighbors while giving a nod to the historic neighborhood’s industrial past.

Email interview conducted by John Hill.

Photo: Emma Tannenbaum
Photo: Emma Tannenbaum
Photo: Emma Tannenbaum
Photo: Emma Tannenbaum
Third Floor, Fourth Floor, and Roof Plan
Cellar, First Floor, and Second Floor Plan

Related articles 

Featured Project 

Atelier KI JUN KIM

House by the Wall

Other articles in this category