US Building of the Week

SOMA Residence, Artist Gallery & Studio

Dumican Mosey Architects | 5. October 2020
Photo: Cesar Rubio Photography
Project: SOMA Residence, Artist Gallery & Studio
Location: San Francisco, California, UA
Client: Withheld
Architect: Dumican Mosey Architects
  • Design Principal: Eric Dumican
  • Project Manager: Renato Jose
  • Project Team: Adam Chisholm, Julita Lisewska
Structural Engineer: Provest Structural Engineering
Acoustical Engineer: Charles M Salter Associates Inc.
Waterproofing Consultant: Blanco Architecture Inc.
Environmental Consultants: John Carver Consulting; AEI Consultants
Contractor: Interspace Builders, Inc.
Site Area: 5,000 sf
Building Area: 8,000 sf
Before
What were the circumstances of receiving the commission for this project?

An internationally exhibited artist and her family reached out to us, wanting to refurbish a large two-level building with a small rear courtyard. An industrial building-turned-auto repair garage, the existing building was dark, rundown, and pungent with grease, but destined to become a custom studio, gallery, and home for her family. 

Photo: Cesar Rubio Photography
Please provide an overview of the project.

The existing historic industrial-use building provided a unique canvas for this carefully considered adaptive re-use project in the rapidly evolving SOMA neighborhood of San Francisco. Historic elements of the front facade were restored and refurbished, while new modernist infill elements were introduced at the ground level, creating a dynamic relationship between new and old as experienced from the street and pedestrian level.

Photo: Cesar Rubio Photography

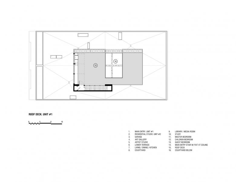
Because of the considerable amount of space available for the project — about 4,500 square feet on each level — the program was organized by floor. The ground floor includes a two-car garage, residential guest unit, and new art gallery and studio. The second floor was transformed into a full-floor "NYC-style" residential loft focused toward a new 20'x20' convertible courtyard carved into the existing floor plate with a motorized operable glass roof and expansive upper-level roof deck. A rooftop terrace — covering about a quarter of the total roof surface — is big enough for a barbecue with friends, sunbathing, or playing with the children.

Photo: Cesar Rubio Photography
What are the main ideas and inspirations influencing the design of the building?

As a multidisciplinary artist, the client felt that the project needed extensive interplay between art, sculpture, and contemporary architecture. She specifically wanted the qualities of light, space, texture, materiality, and flow to holistically connect these components.

Photo: Kirsten Hepburn Photography
How does the design respond to the unique qualities of the site?

A unique constraint for the site was the project's status as a historic industrial-use building, which required certain elements of the existing façade to remain unchanged. The resulting design merges clean modern expression with the building's industrial shell, creating a seamless transition from interior to exterior and from new to old.

Photo: Cesar Rubio Photography
What products or materials have contributed to the success of the completed building?

With the existing historic facade painted black, the predominant colors are those of the interior materials. The ground floor features white plaster walls and concrete flooring, while the upper residential floor incorporates warm-toned timber ceilings and a stand-out custom detail: a flame-red 1965 Fiat 500, suspended upside-down from the ceiling. Such unique touches are only to be expected in an artist's home.

Email interview conducted by John Hill.

Photo: Kirsten Hepburn Photography
Photo: Cesar Rubio Photography
Drawing: Dumican Mosey Architects
Drawing: Dumican Mosey Architects
Drawing: Dumican Mosey Architects

Related articles 

Other articles in this category