US Building of the Week

Starter Home* No. 3, 4514 S. Saratoga

OJT (Office of Jonathan Tate) | 13. August 2018
Photo: William Crocker
Project: Starter Home* No. 3, 4514 S. Saratoga (2017)
Location: New Orleans, Louisiana, USA
Client: Withheld
Architect: OJT (Office of Jonathan Tate), New Orleans
Project Team: Robert Baddour, Sabeen Hasan, Lauren Hickman, Jessica O'Dell, Jonathan Tate 
Structural Engineer: Walter Zehner
Contractor: Edifice Builders
Site Area: 1,000 sf
Building Area: 1,540 sf
Photo: William Crocker

What were the circumstances of receiving the commission for this project?
4514 S. Saratoga is another iteration of Starter Home*, an entry level housing program using inventive land strategies coupled with design to develop homeownership opportunities in urban neighborhoods. Like other homes in this program, it is based on the reclamation of an otherwise vacant and unused substandard parcel. The project, unlike previous versions, originated as a commission by private clients interested in replicating the program.

Photo: William Crocker

Please provide an overview of the project.
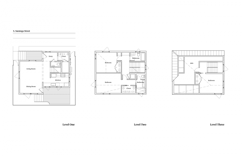
4514 S. Saratoga is a three bedroom, two-and-a-half-bath home in the Uptown neighborhood of New Orleans. This home was designed with the intention of minimizing the building footprint while maximizing the outdoor space of a substandard residential lot in New Orleans.  However, the precondition and zoning requirements of the site generated by necessity a scheme that moves up, not out. Spatially, the programmatic elements were fulfilled by moving to three stories, utilizing the height allowances of the neighborhood. Exterior finishes illustrate expansion with increased altitude by staggering vertically and eliminating obvious floor plate locations and stepping out and away from the exterior.

Photo: William Crocker

What are the main ideas and inspirations influencing the design of the building?
The overall form, ambiguously reminiscent of a traditional home, was devised to manipulate the perception of its true height and scale. The massing moves up and out, reflecting the open-space requirements of the first floor and the need to maximize permitted buildable area on the remaining floors. This is further reinforced with the detailing of the exterior cladding. Like other Starter Home* projects, 4514 S. Saratoga needed to utilize a ubiquitous and cheap material. In this case conventional cementitious panels were detailed to step out at controlled intervals to obscure the height of floor plates. Vertical batten strips, placed at varying widths, were misaligned to reinforce the stepped banding. From the street the upper floor is encapsulated in the volume of the roof, with the eve line no higher than a typical two-story home. The form opens up towards the rear and side to allow windows into the third-floor room. This peaked portion of the home, while not immediately present from its own street front, is seen along adjacent streets in an intentional interaction with the adjacent rooftop dormers, uncannily present though not entirely clear where it belongs.

Photo: William Crocker

How does the design respond to the unique qualities of the site?
In keeping with the generalized precepts of speculative development, 4514 S. Saratoga is a standard three-bedroom, two-and-a-half-bath home. The limited site area — about a third the size of a traditional parcel in New Orleans — required the program to be stacked vertically and efficiently. An entry stoop was carved from the ground floor footprint and served to internally organize the main living spaces. A back porch and a small yard occupy the limited space required by setbacks.

Photo: William Crocker

What products or materials have contributed to the success of the completed building?
Like other Starter Home* projects, 4514 S. Saratoga needed to maximize a ubiquitous and cheap material. In this case, a slight stepping of the skin composed of Hardi board and batten reinforces the constraints of the lot as well as challenge it’s perceived scale.  Openings respond to standard window proportions, allowing for off the shelf purchasing and thereby increasing the home’s accessibility to a first time homebuyer. 
 
Email interview conducted by John Hill.

Photo: William Crocker
Photo: William Crocker
Photo: William Crocker
Photo: William Crocker
Photo: William Crocker
Drawing: OJT
Model: OJT
Model: OJT
Floor Plans (Drawing: OJT)
Sections (Drawing: OJT)

Related articles 

Other articles in this category