US Building of the Week

Studio 1334

debartolo architects | 8. February 2021
Photo: Roehner Ryan
Project: Studio 1334 (2019)
Location: Phoenix, Arizona, USA
Client: debartolo architects
Architect: debartolo architects
  • Design Principal: Jack DeBartolo 3 FAIA
  • Project Architect: Jeff Kershaw
  • Interiors: Tricia DeBartolo
  • Project Team: Mike Roth
Structural Engineer: Rudow + Berry
MEP/FP Engineer: Associated Mechanical Engineering
Landscape Architect: debartolo architects
Electrical Engineer: Woodward Engineering
Interior Designer: debartolo architects
Contractor: the construction zone / Pratt Construction
Civil Engineer: Cypress Civil
Site Area: 10,000 sf 
Building Area: 5,000 sf
Photo: Roehner Ryan
What were the circumstances of receiving the commission for this project?

After renting studio space for over twenty years, the architects wanted to find a building (warehouse) where they could use a large open space as a design laboratory, an environment where they could invent, explore and test ideas. The 1935 building became available and the owners were very interested in relocating to downtown Phoenix, into an adaptive reuse project that would redeem an older warehouse building.

Photo: Roehner Ryan
Please provide an overview of the project.

After renting space for over twenty years, the owner-architect couple purchased the 80-year-old warehouse on one of the grittiest streets east of downtown Phoenix. The goal was to transform the raw building into their own architectural studio. With a varied history as a mechanic shop, body shop, and storage facility, the largely brick structure was most admired for its simple form — a 50’ x 100’ rectangle. A clear height of 12 feet, exposed trusses, and an open plan made it the ideal container for the creative workshop and design laboratory.

Photo: Roehner Ryan

The work of the studio is deeply rooted in place with several adaptive reuse projects of significance in their portfolio. The building on Van Buren was another opportunity for the studio to redeem a building and fill it with new life. Working on a lean budget and a short schedule, the project was completed and occupied in July 2019.

As part of the revitalization of the downtown core of Phoenix, this project is exemplary in how to revive a city through modest adaptive reuse of existing buildings. The studio of debartolo architects will continue to make it their focus to create extraordinary places and spaces — sometimes even from the mundane and ordinary.

Photo: Roehner Ryan
What are the main ideas and inspirations influencing the design of the project?

The main idea that inspired the design was the building as a vessel of light with a contrasting dark exterior skin. This reuse of the existing structure required a cleaning out and simplification of the interior and replacement of the windows on the exterior. Knowing that the area is transition, creating a building that could be opened up in the daytime and closed down in the evening was critical to the design. In addition, the idea of utilizing simple steel and glass to define the interior envelope within the exterior skin was key in defining two porches at the north and south ends of the building. Pulling the interior façade of the interior space into the building created these transitional spaces for impromptu meetings, a margin between the city and the studio, and for shade space during the hotter summer months. Inside, the walls are made from a palate of materials emblematic of an architect's sketch model: modular 4’x8’ panels of unpainted MDF, homasote, and hot rolled steel are interchanged to define the separate spaces.

Photo: Roehner Ryan
How does the design respond to the unique qualities of the existing building?

The large open space of the building and its geometric simplicity was the major incentive for the remodel. The architects wanted a space that was extremely flexible. The quality of light inside and connection to the city and outdoors were other critical components the owners valued. Existing large openings at the north and south ends of the building created the connection to the city while the high east/west clerestory windows track the time through shifting light and shadow throughout the day.

Photo: Roehner Ryan
How did the project change between the initial design stage and its completion?

During construction, the recessed porch on the north end of the building became larger as the actual space was realized and there was an obvious interest in making these spaces even more flexible and useful.

Photo: Roehner Ryan
Was the project influenced by any trends in energy-conservation, construction, or design?

Instead of placing the poly-iso insulation on the interior side of the walls, the architects chose to exterior-insulate (exsulate) the existing brick structure on the south and west sides, resulting in an exposed brick wall on the interior with a metal skin on the exterior and a higher performing wall system.

Photo: Roehner Ryan
What products or materials have contributed to the success of the completed project?

  • Homasote PINacle Board
  • Duravit Plumbing Fixtures
  • MDF (all furniture and wall panels)
  • Sequentia Translucent Corrugated Panels

Email interview conducted by John Hill.

Site Plan (Drawing: debartolo architects)
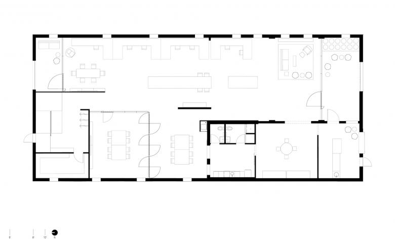
Floor Plan (Drawing: debartolo architects)
South Elevation (Drawing: debartolo architects)
Details (Drawing: debartolo architects)

Related articles 

Other articles in this category