US Building of the Week
The Church
In 2018 artists Eric Fischl and April Gornik bought a 19th-century church in Sag Harbor, New York, hiring the firm of Lee Skolnick to help them transform it into a new arts center serving the East End of Long Island. The architects answered a few questions about the recently completed adaptive reuse project.
Location: Sag Harbor, New York, USA
Client: The Church
Architect: SKOLNICK Architecture + Design Partnership
- Design Principal: Lee H, Skolnick, FAIA
- Project Architect: Jason Hudspeth
- Project Manager: David Vimont, AIA
- Project Team: Shaad Zaidi
Landscape Architect: Hollander Design Landscape Architects
Lighting Designer: THE SEED
Contractor: Moises Cerdas Builders, LLC; Thomas Lettieri (contractor prior to Moises Cerdas)
Surveying Services: F. Michael Hemmer, LS, P.C.
Furniture Millworker: Thomas Brokish
Municipal Sewer Engineer: Bryan Grogan
Elevator Installer: Northern Lifts Elevator Company
Site Area: 20,000 sf
Building Area: 12,000 sf
We have been fortunate to work with many artists throughout the course of our studio’s existence. This has included painters, sculptors, photographers, writers, composers, film makers, actors and dancers. They are great collaborators who understand the appeal of the creative process, thinking out of the box, and the value of attention to meticulous detail. In that realm, no artists have been as consistent in coming back to work together as the painters Eric Fischl and April Gornik. We have designed their homes and their studios, as well as collaborating on several community-directed arts projects.
Another key phenomenon underpinning our practice is the search for projects where we can create something of substance and service to the community, whether a small town, a big city or neighborhood. These projects might be in our own backyard or thousands of miles away on the other side of the earth. And they may be museums, science centers, schools, libraries, children’s hospitals, or other places of gathering, playing or learning.
So it was not surprising, though nonetheless gratifying, to be invited by Eric and April to work together on The Church, a brilliant concept for the sharing of creativity and an invaluable resource to the village of Sag Harbor and to the broader community of the East End of Long Island.
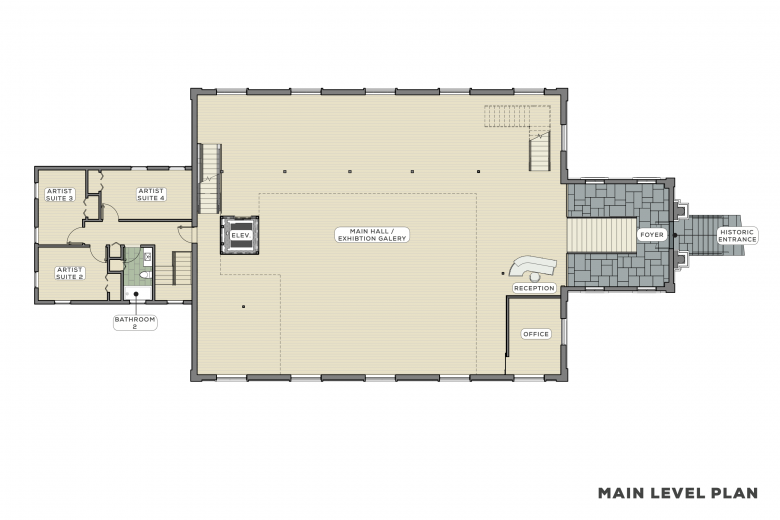
The Church, located in Sag Harbor, New York, is a 12,000-square-foot comprehensive adaptive reuse and restoration project that returns the once shuttered religious structure back to the community as a vibrant center for creativity. Developed in close collaboration with the clients, the reimagined facility features an artists-in-residence program with on-site accommodations, flexible making spaces, exhibition galleries, resource library, and public garden.
The original 1836 sanctuary housed the Methodist Church of Sag Harbor until 2008, when the congregation relocated to a nearby facility. After multiple attempts to renovate the structure fell short, our team assisted the clients by developing their unique vision into what will become a central creativity hub in the community.
Our approach recognizes the rich history of the facility, while celebrating contemporary interventions that facilitate a transcendence of typology. Demolition from prior restoration attempts revealed rustic wood framing throughout, and maintaining this exposure set up a compelling dialogue between past and present, allowing for the sublime geometry of the original structure to emerge in dramatic relief.
Additions to the space are expressed to accentuate their formal integrity while complementing original elements, and a revelation of light-filled volumes and rich material textures characterizes the spatial experience. Portraits of notable East End artists painted by our client, Eric Fischl, have been transferred to translucent film and mounted within the windows of the exhibit space to both welcome visitors and to emanate as illuminated beacons of the community. They present themselves as a modern interpretation of traditional stained-glass windows.
At the ground floor, the space has been completely opened up to create a flexible studio and making space that is embraced on all sides by 22-inch-thick stone masonry walls. New spatial volumes inserted into this raw creative space are clad in reclaimed wood lath, accentuating their formal differentiation while complementing the historic wood framing. Window and door openings around the perimeter bring ample light into the space, highlighting the richness and texture of the natural materials. To the south, the doors open to a sunken terrace and public garden.
The mezzanine level is expressed as a floating element between the main floor and the soaring roof trusses above and achieves lightness by presenting itself as a slender plane clad in pale white oak finishes and a high-contrast white underside. Interconnection between all levels is facilitated by a crystalline glass elevator and minimal steel and wood stairways, with both providing another counterpoint to the rustic qualities found in the original wood framing.
Email interview conducted by John Hill.
- Facade cladding: Liberty Cedar (manufacturer) / Atlantic White Cedar Bevel Siding / custom stain paint finish
- Doors: Marvin (manufacturer) Aluminum Clad French Door / (description): outswing French doors with egress hardware
- Windows: Marvin / Aluminum Clad Contemporary Casement / wood windows with aluminum clad exterior finish
- Roofing: GAF / Timberline HD / asphalt fiberglass shingles
- Interior lighting: Luminis Lighting (interior ambient); USAI Lighting (downlights); Intense Lighting (track lighting); Ecosense (cove lighting)
- Lighting Controls: Lutron
- Hardware: Baldwin (locksets); Yale (closers and exit devices)
- Elevator: Savaria (Northern Lifts & Westhampton Architectural Glass)














