US Building of the Week
The M-shaped Bungalows
The archetypal gable form has provided fodder for contemporary architects for decades, often used as a shorthand expression of the idea of “home.” The repeated gables of the M-shaped Bungalows are appropriate, because the multi-family project is offered up as an alternative to single-family houses and it fits within a historical district made up primarily of bungalows. Architect Sin Hei Kwok answered a few questions about the project.
Location: Phoenix, Arizona, USA
Client: Sin Hei Kwok, acting as developer and owner
Design Architect: Sin Hei Kwok
Associate Architect: Karl Sippel
Structural Engineer: Struktur Studio, LLC
MEP/FP Engineer: Otterbein Engineering
Construction Manager: Sin Hei Kwok
Site Area: 6,600 sf
Building Area: 4,300 sf
The architect acted as developer. From choosing a site to entitlement, programs, design and construction, all were the responsibility of the architect.
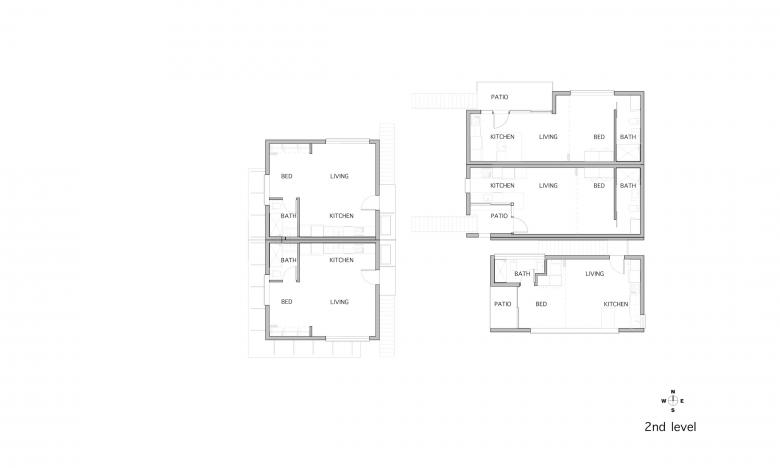
The M-shaped Bungalows is an urban infill project located in Garfield Historic District, a half-mile from downtown Phoenix, Arizona. It is a for-rent, nine-unit multifamily housing project.
Phoenix is infamous for urban sprawl, where low density development is built within a car-dependent environment. This project attempts to demonstrate a denser multifamily development on an urban infill lot where a typical developer would place an unsustainable single-family house.
In order to fit into the neighborhood of single-family houses, the buildings pull apart into two masses and a community open space is created. The M-shaped roofs are references to the surrounding historic houses and bungalows built in 1920s. Surrounding houses always have front porches facing the street. Those front porches are important elements, allowing social interaction between residents and their neighbors. We integrated front porches into our design with a cantilevered concrete slab.
With multi-family development, where space is always limited, the challenge is to make every occupant feel a sense of privacy, the quality of space, and natural light in the units. In order to achieve these goals, individual entrances are located in various locations on the site and without looking at each other. Also, each occupant has their own private patio and deck to promote outdoor living. There are seven different floor plans out of nine units emphasizing the uniqueness of each space. Full-height glazing and sliders are used in various locations, allowing natural light to come into the bathrooms and kitchens. Windows and patios frames view of downtown, Camelback Mountain, and South Mountain.
We wanted to choose a material that could be applied to the roof and walls to give a sense of continuity. Concrete was our first choice, but it was too expansive. Asphalt shingles with wood framed wall was chosen at the end to achieve the continuity look with the cost consideration.
Email interview conducted by John Hill.













